Apartment Via Porta Parma 12, Sarzana
€ 130.000Appartamenti - Appartamento a Sarzana
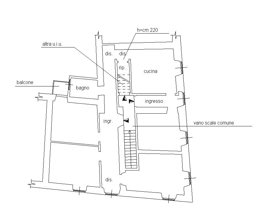
Sarzana, a pochi passi dal centro, zona semicentrale, proponiamo ampio appartamento da ristrutturare, caratterizzato da metrature generose e ambienti ben distribuiti. L’immobile, posto al piano primo, è composto da una grande cucina abitabile, luminoso soggiorno, corridoio, tre spaziose camere da letto, balcone, bagno e disimpegno. Grazie alla superficie e alla disposizione interna, la proprietà si presta perfettamente sia come interessante opportunità di investimento, con la possibilità di frazionamento in due unità abitative, sia come abitazione principale da personalizzare e riorganizzare secondo le proprie esigenze. Si avvertono i signori clienti che gli indirizzi inseriti all'interno dell'annuncio sono puramente indicativi e non rispecchiano la realtà. Questa indicazione vuole essere un ausilio nell'individuazione della zona pur rispettando la privacy dei venditori.
Main data
| Reference | 001577 |
| Ad date | 26/01/2026 |
| Contract | Sale |
| Typology | Apartment |
| Surface | 124 m2 |
| Locals | more than 5 (3 bedrooms, 3 other), 1 bathroom |
| Plan | 1 totals |
| Number of balconies | 1 |
Costs
| Price | 130.000 € |
| Price per m2 | 1.048 €/m2 |
Energy efficiency
| Year built | 1967 |
| Energy rating | G |
Floor plans
Address and map
Via Porta Parma 12, Sarzana
Mortgage calculation
Selling price:
Advance
20,00
Mortgage
80,00
Rate: -+
Payment: 372 per month
The results are an indicative estimate based on the data entered and do not constitute a financial offer.
Advertiser
Immobiliare Porta Parma
Via Porta Parma 12, Sarzana
Show Phone
Show Mobile
Call
CONTACT

