Two-room apartment Via Matteotti, Sanremo
€ 220.000
LIVING HOME REAL ESTATE propone in vendita un grazioso appartamento situato nel cuore pulsante di Sanremo, in Via Matteotti, a pochi passi dal celebre Teatro Ariston e da tutti i principali servizi della città.
Limmobile è posto al quinto piano di un elegante edificio storico dotato di ascensore.
Lappartamento si presenta in buono stato manutentivo e viene venduto completo di arredamento su misura. Le spese condominiali sono estremamente contenute, pari a soli 25 mensili.
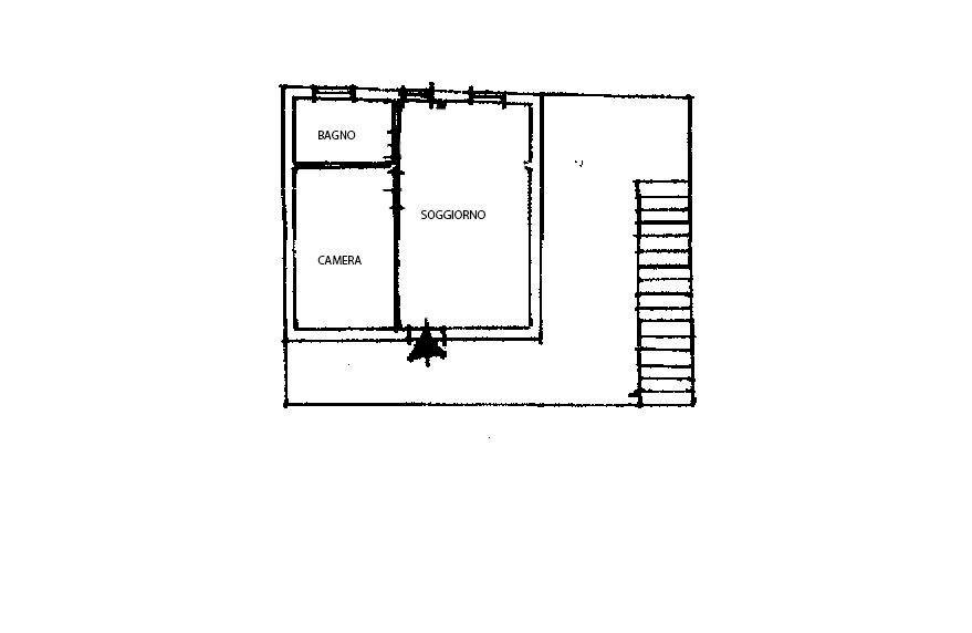
Lingresso si apre su un ampio e luminoso locale arredato con gusto e dotato di cucina a vista. Un ambiente studiato per garantire massima funzionalità e unottima ottimizzazione degli spazi.
La zona notte è sapientemente separata da una parete attrezzata, che assicura privacy e comfort. Completa la proprietà un bagno finestrato fornito di doccia e tutti i sanitari.
Il riscaldamento è autonomo e lappartamento è dotato di impianto inverter per la climatizzazione caldo/freddo, garantendo comfort in ogni stagione.
Grazie alla sua posizione centralissima, lappartamento è ideale per chi desidera vivere a due passi da negozi, ristoranti, servizi e attrazioni culturali, godendo appieno di tutto ciò che Sanremo ha da offrire.
In sintesi, una soluzione perfetta per chi cerca un immobile funzionale, ben curato e pronto da abitare nel cuore della città. Ottimo anche come investimento o casa vacanze.
Prezzo richiesto: 220.000
Rif. annuncio: SB18
Per maggiori informazioni o per prenotare una visita:
Living Home Real Estate - Via Matteotti 178, 3° piano Sanremo
Fisso 0184 845943 | Mobile 338 1558896
[email protected]
Limmobile è posto al quinto piano di un elegante edificio storico dotato di ascensore.
Lappartamento si presenta in buono stato manutentivo e viene venduto completo di arredamento su misura. Le spese condominiali sono estremamente contenute, pari a soli 25 mensili.
Lingresso si apre su un ampio e luminoso locale arredato con gusto e dotato di cucina a vista. Un ambiente studiato per garantire massima funzionalità e unottima ottimizzazione degli spazi.
La zona notte è sapientemente separata da una parete attrezzata, che assicura privacy e comfort. Completa la proprietà un bagno finestrato fornito di doccia e tutti i sanitari.
Il riscaldamento è autonomo e lappartamento è dotato di impianto inverter per la climatizzazione caldo/freddo, garantendo comfort in ogni stagione.
Grazie alla sua posizione centralissima, lappartamento è ideale per chi desidera vivere a due passi da negozi, ristoranti, servizi e attrazioni culturali, godendo appieno di tutto ciò che Sanremo ha da offrire.
In sintesi, una soluzione perfetta per chi cerca un immobile funzionale, ben curato e pronto da abitare nel cuore della città. Ottimo anche come investimento o casa vacanze.
Prezzo richiesto: 220.000
Rif. annuncio: SB18
Per maggiori informazioni o per prenotare una visita:
Living Home Real Estate - Via Matteotti 178, 3° piano Sanremo
Fisso 0184 845943 | Mobile 338 1558896
[email protected]
Main data
| Reference | SB18 |
| Ad date | 25/01/2026 |
| Contract | Sale |
| Typology | Apartment |
| Surface | 34 m2 |
| Locals | 2 (1 bedroom, 1 other), 1 bathroom, kitchen on sight |
| Plan | 5 from 5 totals |
| Occupied | Free |
| Garage | Absent |
| Furniture | Complete |
Costs
| Price | 220.000 € |
| Price per m2 | 6.471 €/m2 |
Energy efficiency
| Status | Good |
| Heating | Autonomous |
| Energy rating | F |
| Energy Performance Index (IPE) | - |
Floor plans
Address and map
Via Matteotti, Sanremo
Ad without map,
try asking the advertiser for the position
try asking the advertiser for the position
Mortgage calculation
Selling price:
Advance
20,00
Mortgage
80,00
Rate: -+
Payment: 629 per month
The results are an indicative estimate based on the data entered and do not constitute a financial offer.
Advertiser

Living Home Real Estate
Via Giacomo Matteotti 178, Sanremo
Show Phone
Show Mobile
Call
CONTACT

