Four-room apartment Via Alessandro Paoli 1, Milano
€ 3.000 per month
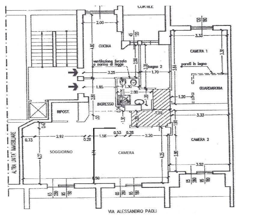
Quattro locali in affitto Via Alessandro Paoli, Milano Isola- Bosco Verticale Allinterno di un palazzo signorile, proponiamo in locazione un prestigioso quadrilocale di 150 mq, sito al terzo piano con ascensore. La soluzione si compone da un ingresso, ampia zona living, cucina abitabile dotata di ogni comfort, tre spaziose camere da letto di cui una con annessa cabina armadio, due bagni di servizio, due balconi e due comodi terrazzini, che offrono uno sfogo di totale relax. Limmobile, internamente, si presenta in ottime condizioni e rifinito con cura in ogni dettaglio, offrendo ambienti eleganti, moderni e accoglienti. E' presente: aria condizionata in ogni ambiente infissi in doppio vetro in alluminio pavimentazione teak insonorizzato controsoffitto insonorizzato tapparelle elettriche riscaldamento centralizzato Grazie al piano alto e all'esposizione, lappartamento gode di una straordinaria luminosità e di un silenzio raro, garantendo il massimo comfort abitativo nel cuore della città. Il condominio dispone di un enorme e grazioso giardino privato dove è possibile posteggiare biciclette e moto/motorini. Il canone mensile richiesto è di 3.000,00 oltre 300,00 di spese condominiali comprensive di riscaldamento per un totale di 3.300,00 Alla firma del contratto di affitto si richiede un versamento di 9.000 pari a tre mensilità, a titolo di deposito cauzionale. L'affitto dell'appartamento è riservato solo ed esclusivamente a potenziali inquilini ottimamente referenziati in grado di dimostrare un'ottima capacità reddituale.
Main data
| Reference | CBI135-2826-2800 |
| Ad date | 23/01/2026 |
| Contract | Rent |
| Typology | Apartment |
| Surface | 150 m2 |
| Locals | 4 (3 bedrooms, 1 other), 2 bathrooms, kitchen habitable |
| Plan | 3 from 5 totals |
| Occupied | Free |
| Garage | Absent |
| Furniture | Absent |
Costs
| Price | 3.000 € per month |
Energy efficiency
| Status | Partially restored |
| Heating | Centralized |
| Energy rating | B |
| Energy Performance Index (IPE) | - |
Floor plans
Address and map
Via Alessandro Paoli
1, Milano
Ad without map,
try asking the advertiser for the position
try asking the advertiser for the position
Advertiser
Call
CONTACT


