Four-room apartment via Giotto, hamlet Milano 3, Basiglio
€ 445.000Quadrilocale in vendita
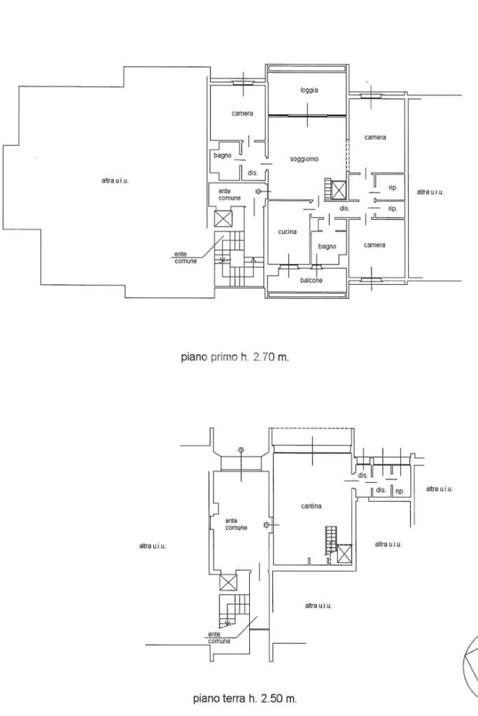
Proponiamo in vendita quadrilocale con hobby di 181mq in residenza centrale. L'appartamento, posto su due livelli, gode di una seconda entrata esclusiva direttamente dall'atrio dell'edificio. Si compone di un ampio soggiorno con loggia fronte parco, una sala da pranzo, cucina abitabile con balcone, due camere da letto matrimoniali, due bagni, di cui uno finestrato, cabina armadio e un comodo ripostiglio. Al piano inferiore, un locale hobby da personalizzare ed un pratico box doppio collegato.
Main data
| Reference | 61165802 |
| Ad date | 22/01/2026 |
| Contract | Sale |
| Typology | Apartment |
| Surface | 181 m2 |
| Locals | 4 (4 other), 2 bathrooms |
| Plan | 1 from 6 totals |
Costs
| Price | 445.000 € |
| Price per m2 | 2.459 €/m2 |
| Condominium fees | €500,00/month |
Energy efficiency
| Year built | 1981 |
| Heating | Centralized |
| Energy rating | F |
| Energy Performance Index (IPE) | - |
Floor plans
Video
Address and map
via Giotto, Basiglio - hamlets Milano 3
Mortgage calculation
Selling price:
Advance
20,00
Mortgage
80,00
Rate: -+
Payment: 1.273 per month
The results are an indicative estimate based on the data entered and do not constitute a financial offer.
Advertiser
Call
CONTACT

