Three-family Villa Via Carlo Garrè snc, Savignone
€ 621.600Indipendente - Trifamiliare a Savignone
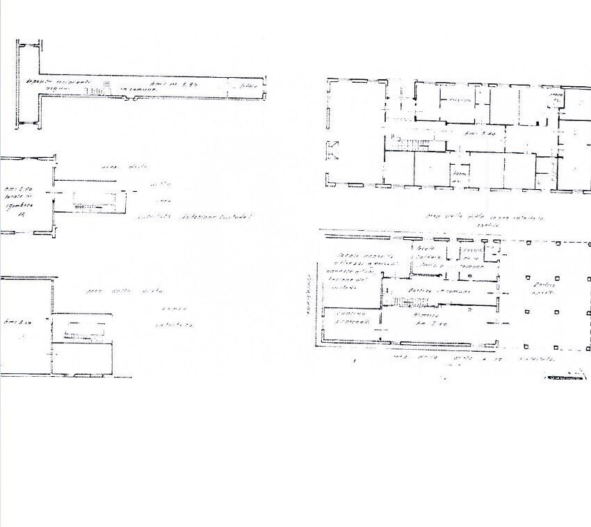
Piena ed intera proprietà della villa sita in Savignone (GE), Via Carlo Garrè, composta da edificio costituito da un piano seminterrato e più piani fuori terra, composto da due abitazioni semi indipendenti, sottotetto, locali posti nel seminterrato con una taverna, bagno, autorimessa, cantina locale caldaia, oltre a giardino di pertinenza di ampia metratura, ove sorge un campo da tennis e locale seminterrato di alloggiamento di serbatorio per riserva idrica, edificio destinato a cappella religiosa di famiglia e edificio ad uso magazzino/ricovero animali con annesso terreno al cui interno sorge un fabbricato. - Il Prezzo visualizzato è la Base d'Asta in quanto l’immobile è oggetto di esecuzione immobiliare venduto tramite Asta Giudiziaria. - L'immobile aggiudicato, viene venduto libero e sgombro da persone cose ed ipoteche nello stato di fatto e di diritto in cui si trova. - Non rappresentiamo il Tribunale, ma lavoriamo nell'esclusivo interesse del potenziale acquirente per garantire un acquisto sicuro. - I consulenti di ASTE ITALIA ti assisteranno in tutte le attività dell'iter giudiziario dalla visita dell'immobile fino alla consegna chiavi. - Contatta il nostro Servizio Clienti , i nostri operatori sono a disposizione per chiarire i molteplici dubbi per partecipare alle ASTE.
Main data
| Reference | GE325/24LU-2001-26-1600 |
| Ad date | 03/11/2025 |
| Contract | Sale |
| Typology | Three-family Villa |
| Surface | 1113 m2 |
| Locals | more than 5 (32 bedrooms, 13 other), 8 bathrooms |
| Plan | 4 totals |
Costs
| Price | 621.600 € |
| Price per m2 | 558 €/m2 |
Energy efficiency
| Energy rating | G |
Floor plans
Address and map
Via Carlo Garrè snc, Savignone
Mortgage calculation
Selling price:
Advance
20,00
Mortgage
80,00
Rate: -+
Payment: 1.778 per month
The results are an indicative estimate based on the data entered and do not constitute a financial offer.
Advertiser
DOMY ONLINE S.R.L.
Via San Lorenzo 5/41, Genova
Show Phone
Show Mobile
Call
CONTACT

