Three-room apartment Via Tito Minniti 32, Lecce
€ 1.500 per monthAppartamento - Trilocale a Lecce
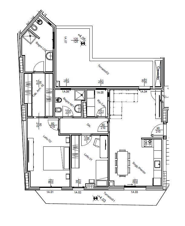
GRIMALDI STORE LECCE Vico dei Fieschi 16, 73100 Lecce Splendido trilocale in zona Mazzini, all'interno di elegante stabile attualmente in costruzione In via Minniti, angolo via 95° Reggimento Fanteria, in zona centrale e ottimamente servita, proponiamo in locazione elegante appartamento di nuova costruzione, situato al primo piano di un moderno edificio dotato di ascensore. L’immobile si distingue per ambienti ampi e luminosi e per una distribuzione interna funzionale e ben studiata. L’ingresso conduce a una spaziosa zona giorno doppia con angolo cottura a vista, ideale per la vita quotidiana e per momenti di convivialità. La zona notte è composta da due camere da letto, di cui la stanza padronale dotata di bagno en suite e cabina armadio, oltre a un secondo bagno a servizio dell’abitazione. Completano la proprietà un comodo ripostiglio ad uso lavanderia e un ampio terrazzo a livello, perfetto per vivere gli spazi esterni in totale privacy. L’appartamento è nuovo, rifinito con materiali di qualità e dotato di impianti di ultima generazione. La classe energetica A4 garantisce elevati standard di efficienza e un significativo contenimento dei consumi. Soluzione ideale per chi ricerca un’abitazione moderna, elegante e pronta da abitare, in una posizione strategica e ben collegata della città. GRIMALDI STORE LECCE 0832 1902429 / 393 9035134 [email protected]
Main data
| Reference | 1500MINNITI |
| Ad date | 16/12/2025 |
| Contract | Rent |
| Typology | Apartment |
| Surface | 188 m2 |
| Locals | 3 (2 bedrooms, 1 other), 2 bathrooms |
| Plan | 1 totals |
| Number of terraces | 1 |
| Number of balconies | 1 |
Costs
| Price | 1.500 € per month |
Energy efficiency
| Year built | 2025 |
| Energy rating | A+ |
| Energy Performance Index (IPE) | - |
Floor plans
Address and map
Via Tito Minniti 32, Lecce
Advertiser
Nike Immobiliare S.r.l.
Via Vico dei Fieschi 16, Lecce
Show Phone
Show Mobile
Call
CONTACT

