Villa Alessandria
€ 298.000
ALESSANDRIA CASALBAGLIANO: in zona residenziale in contesto ben abitato, si propone in vendita VILLA LIBERA 3 LATI disposta su un unico livello abitativo oltre mansarda alta e rifinita e AMPIA TAVERNA.
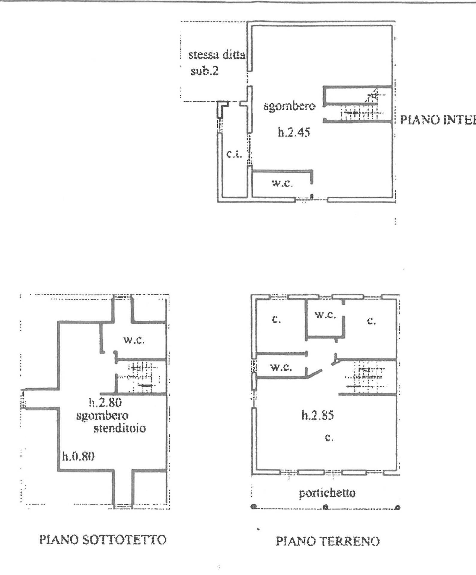
Piano abitativo principale composto da: ingresso su disimpegno, salone, cucina abitabile, 2 camere da letto matrimoniale di cui una con bagno in camera e secondo bagno.
Mansarda completamente finita con 2 camere da letto e bagno.
Ampia Taverna composta da cucina abitabile, salone ampio con camino a legna, salotto secondario con angolo bar, ampio bar, locale lavanderia e vano tecnico con centrale termica collegato ad un BOX AUTO singolo.
Impianto fotovoltaico da 6kw con accumulo 12kw che alimenta la caldaia ibrida. CONSUMI BASSISSIMI. Addolcitore per l'acqua. Impianto di climatizzazione idronico collegato alla caldaia ibrida alimentati dai pannelli fotovoltaici. Tetto rifatto completamente nel 2021 insieme alla sostituzioni degli infissi in PVC doppio vetro e delle persiane. Facciata rifatta da poco.
Ampio cortile esterno con attacchi cucina e vari punti acqua. Veranda amovibile sul retro della proprietà.
298.000,00 - Rif. 43
A.P.E. Classe 'A2' EPgl,nren (kWh/m2anno): 33.18
Per informazioni e visite contattare GIERRE immobiliare 0131.218521
Piano abitativo principale composto da: ingresso su disimpegno, salone, cucina abitabile, 2 camere da letto matrimoniale di cui una con bagno in camera e secondo bagno.
Mansarda completamente finita con 2 camere da letto e bagno.
Ampia Taverna composta da cucina abitabile, salone ampio con camino a legna, salotto secondario con angolo bar, ampio bar, locale lavanderia e vano tecnico con centrale termica collegato ad un BOX AUTO singolo.
Impianto fotovoltaico da 6kw con accumulo 12kw che alimenta la caldaia ibrida. CONSUMI BASSISSIMI. Addolcitore per l'acqua. Impianto di climatizzazione idronico collegato alla caldaia ibrida alimentati dai pannelli fotovoltaici. Tetto rifatto completamente nel 2021 insieme alla sostituzioni degli infissi in PVC doppio vetro e delle persiane. Facciata rifatta da poco.
Ampio cortile esterno con attacchi cucina e vari punti acqua. Veranda amovibile sul retro della proprietà.
298.000,00 - Rif. 43
A.P.E. Classe 'A2' EPgl,nren (kWh/m2anno): 33.18
Per informazioni e visite contattare GIERRE immobiliare 0131.218521
Main data
| Reference | 43 |
| Ad date | 21/01/2026 |
| Contract | Sale |
| Typology | Villa |
| Surface | 250 m2 |
| Locals | more than 5 (4 bedrooms, 5 other), 4 bathrooms, kitchen habitable |
| Plan | On several levels |
| Construction type | Average |
| Occupied | Free |
| Garage | Single |
Costs
| Price | 298.000 € |
| Price per m2 | 1.192 €/m2 |
Energy efficiency
| Status | Excellent |
| Heating | Autonomous |
| Heating Power Type | Photovoltaic |
| Energy rating | A2 |
Floor plans
Address and map
Alessandria
Ad without map,
try asking the advertiser for the position
try asking the advertiser for the position
Mortgage calculation
Selling price:
Advance
20,00
Mortgage
80,00
Rate: -+
Payment: 852 per month
The results are an indicative estimate based on the data entered and do not constitute a financial offer.
Advertiser

Eurocasa Gierre Immobiliare
Corso Acqui 83, Alessandria
Show Phone
Show Mobile
Call
CONTACT

