Terraced Villa Viale Italia, Follonica
€ 669.000Semindipendente - Villa a schiera a Follonica
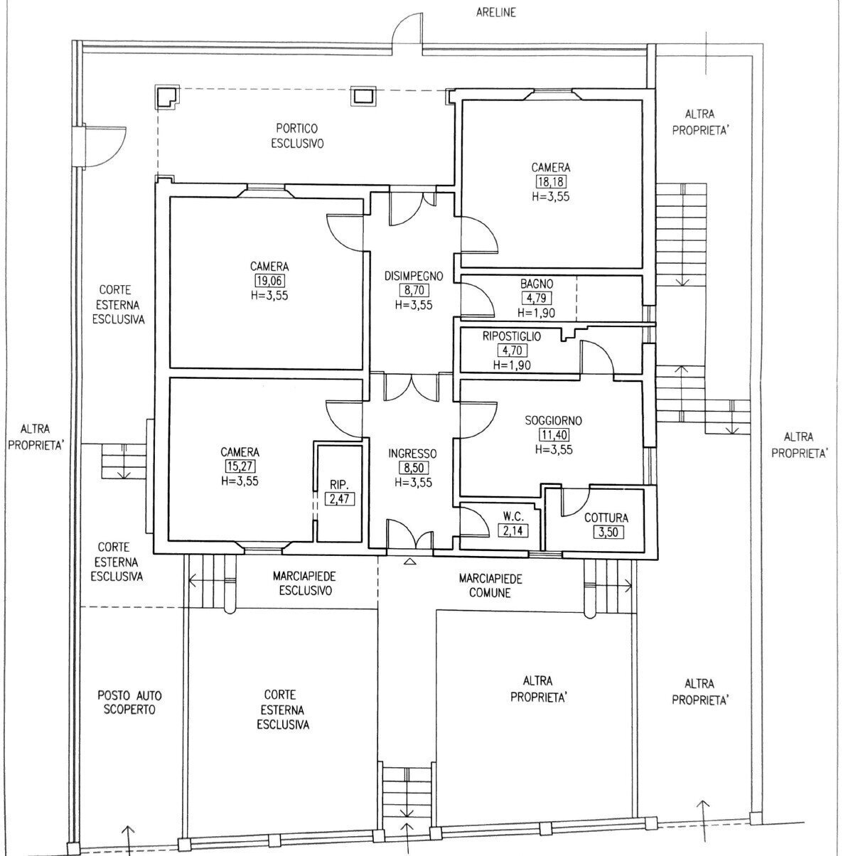
a26010 - FOLLONICA/VIALE ITALIA: IMMOBILIARE BELVEDERE propone in vendita ampio e caratteristica villa bifamiliare (100mq ca) dei primi anni del '900 composta da: ingresso, soggiorno, cucinotto, tre confortevoli camere da letto matrimoniali con due servizi e due ripostigli uno dei quali adattato a lavanderia oltre portico di circa 16mq, giardino/corte ad uso esclusivo e posto auto di proprietà di 12mq ca. L'immobile è dotato di tripla esposizione, è situato in posizione strategica con la particolarità dell'accesso diretto alla spiaggia tramite il portico dell'abitazione da cui è possibile ammirare splendidi tramonti. Ideale per affitti stagionali con ottime possibilità di rendita date le tre camere matrimoniali, i doppi servizi ed il posto auto. Termosingolo Classe Energetica G
Main data
| Reference | a26010 |
| Ad date | 12/01/2026 |
| Contract | Sale |
| Typology | Terraced Villa |
| Surface | 100 m2 |
| Locals | 5 (3 bedrooms, 2 other), 2 bathrooms |
| Plan | 1 totals |
| Number of parking spaces | 1 |
Costs
| Price | 669.000 € |
| Price per m2 | 6.690 €/m2 |
Energy efficiency
| Year built | 1910 |
| Energy rating | G |
Floor plans
Address and map
Viale Italia, Follonica
Mortgage calculation
Selling price:
Advance
20,00
Mortgage
80,00
Rate: -+
Payment: 1.913 per month
The results are an indicative estimate based on the data entered and do not constitute a financial offer.
Advertiser
Call
CONTACT

