Independent house Viale delle Mimose 41, Gallipoli
€ 175.000
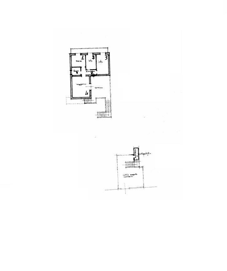
A Gallipoli, nella splendida località di Baia Verde, disponibile una graziosa villetta con ampi spazi esterni. L'immobile si sviluppa tutto al primo piano e con una superficie di circa 105 mq coperti si compone di un ingresso, una spaziosa zona living, una cucina abitabile, due camere da letto ampie e luminose, un bagno, un balcone e una veranda che consente di trascorrere momenti di vero relax. Al piano superiore vi è una terrazza con vista panoramica sulla quale poter soddisfare qualsiasi tipo di esigenza. Al piano terra vi è un giardino privato e un posto auto scoperto. Una soluzione esclusiva per chi desidera vivere in una casa indipendente a due passi dal mare. LE PRESENTI INFORMAZIONI, I RENDER E LE PLANIMETRIE SONO MERAMENTE INDICATIVE E NON COSTITUISCONO ELEMENTI CONTRATTUALI.
Main data
| Reference | 156 |
| Ad date | 19/01/2026 |
| Contract | Sale |
| Typology | Independent house |
| Surface | 120 m2 |
| Locals | 5 (2 bedrooms, 3 other), 1 bathroom, kitchen habitable |
| Construction type | Signorile |
| Occupied | Free |
| Number of parking spaces | 1 |
| Furniture | Absent |
Costs
| Price | 175.000 € |
| Price per m2 | 1.458 €/m2 |
Energy efficiency
| Status | Good |
| Heating | Autonomous |
| Heating Power Type | Gpl |
| Energy rating | G |
| Energy Performance Index (IPE) | - |
Floor plans
Address and map
Viale delle Mimose
41, Gallipoli
Ad without map,
try asking the advertiser for the position
try asking the advertiser for the position
Mortgage calculation
Selling price:
Advance
20,00
Mortgage
80,00
Rate: -+
Payment: 500 per month
The results are an indicative estimate based on the data entered and do not constitute a financial offer.
Advertiser
Tommaso Provenzano IMMOBILIARE
Via Kennedy 1, Gallipoli
Show Mobile
Tommaso Provenzano IMMOBILIARE
Show Phone
Call
CONTACT

