Independent house Via del Forno 50, Ortezzano
€ 39.000
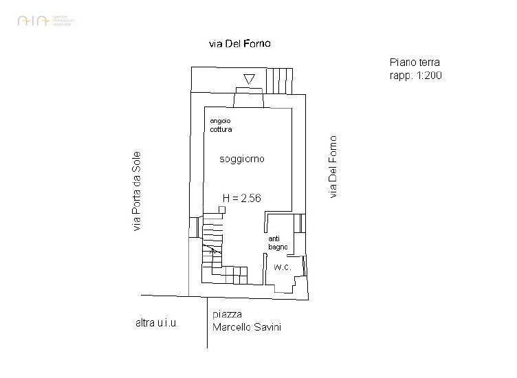
Casa indipendente, abitabile, ottimo affare!!! Caratteristica casa cielo-terra in pieno centro storico, dislocata su tre livelli per complessivi 105 mq circa. Ciascun piano ha dimensione di circa 35 mq: al piano terra troviamo l'ingresso, soggiorno con angolo cottura e camino ed un bagno, tramite scala interna si accede al piano primo con due spaziose camere da letto matrimoniali una dalle quali ha l'uscita sul balconcino da cui si gode di una bellissima vista sul delizioso centro storico di Ortezzano con alcuni scorci panoramici sulla vallata. Al piano sottostrada si accede esternamente e troviamo locali adibiti a fondaco/cantina. L'unità immobiliare in oggetto si presenta in discrete condizioni: il piano terra è stato ristrutturato da pochi anni mentre il piano primo presenta caratteristiche meno recenti ma ben conservate. La proprietà dispone di pavimentazione in monocottura, persiane e porte interne in legno così come gli infissi con vetro singolo e scuri, portoncino di ingresso in legno e impiantistica funzionante eventualmente da aggiornare alle recenti normative. L'unità si presenta quindi in condizioni vivibili senza necessità di interventi straordinari. L'abitazione e posta in aderenza su un angolo con altro fabbricato similare, ma comunque completamente autonoma come struttura ed ingresso. Ottima soluzione per vivere stabilmente o come casa per le vacanze data l'ottima posizione a metà strada tra i Monti Sibillini (35 Km) ed il mare (25 Km). Ottimo rapporto qualità prezzo!!!
Main data
| Reference | 33915 |
| Ad date | 17/01/2026 |
| Contract | Sale |
| Typology | Independent house |
| Surface | 105 m2 |
| Locals | more than 5 (2 bedrooms, 4 other), 1 bathroom, kitchen kitchenette |
| Plan | On several levels, 3 totals |
| Occupied | Free |
| Garage | Absent |
Costs
| Price | 39.000 € |
| Price per m2 | 371 €/m2 |
Energy efficiency
| Heating | Autonomous |
| Heating Power Type | Diesel |
| Energy rating | G |
| Energy Performance Index (IPE) | 425 kWh/m2 year |
Floor plans
Address and map
Via del Forno
50, Ortezzano
Ad without map,
try asking the advertiser for the position
try asking the advertiser for the position
Mortgage calculation
Selling price:
Advance
20,00
Mortgage
80,00
Rate: -+
Payment: 112 per month
The results are an indicative estimate based on the data entered and do not constitute a financial offer.
Advertiser

Fioravanti Agenzia Immobiliare
Piazza Garibaldi n° 8, Comunanza
Show Phone
Show Mobile
Call
CONTACT

