Villa Via Consolare Pompea 108, Messina
€ 780.000
A Messina, in via Consolare Pompea, ecco una rarissima villa sul mare.
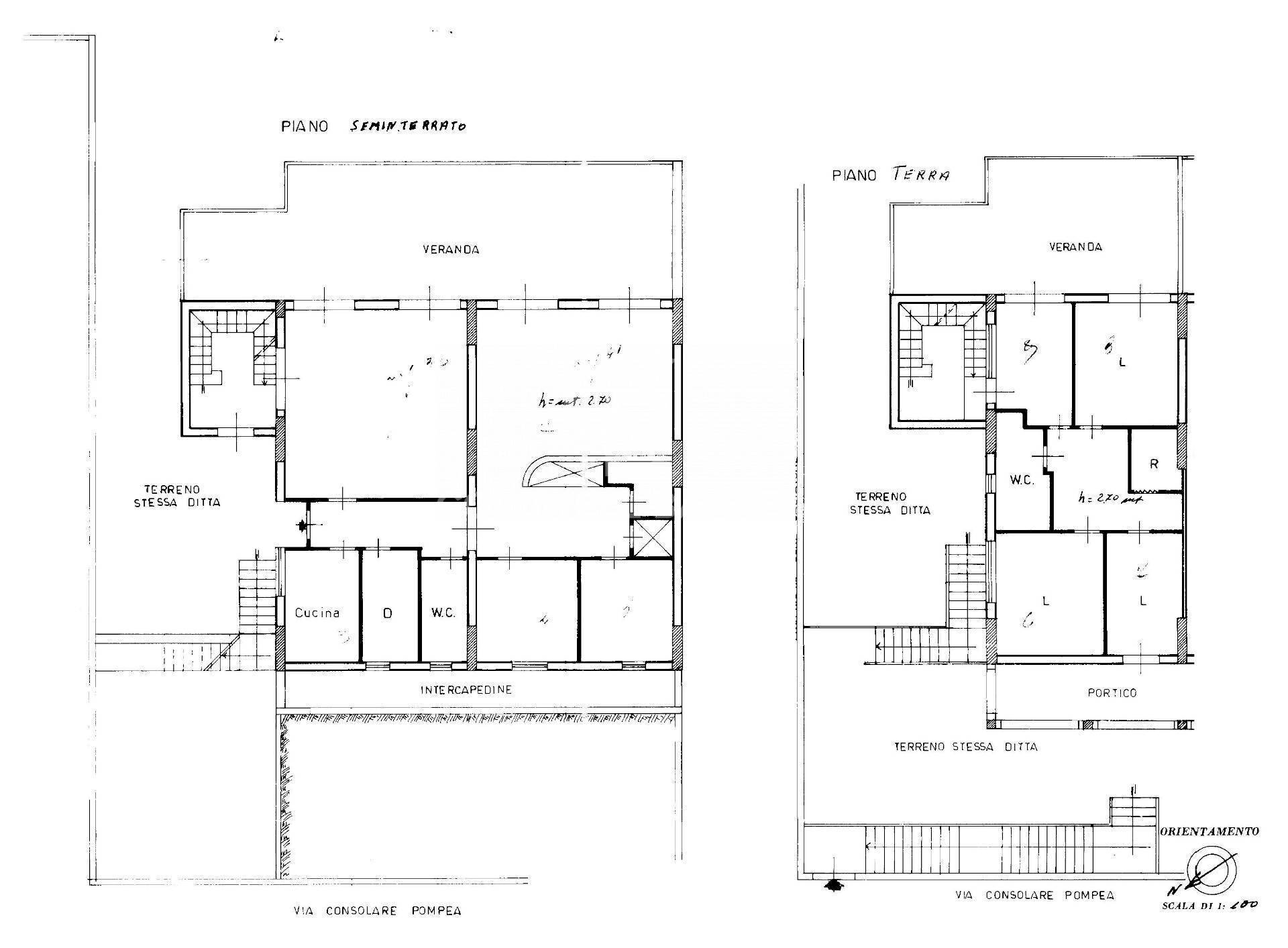
La porzione in vendita comprende il piano inferiore, affacciato sul giardino privato e dotato di un proprio accesso al mare, ed una parte del piano superiore.
Gli spazi comuni comprendono unicamente l'accesso dalla strada, un piccolo cortile e un passaggio pedonale pavimentato che permette l'accesso al mare a entrambe le unità immobiliari. L'abitazione si distribuisce su due livelli: il primo livello con due camere, cucina e servizi igienici ed un grande salone doppio che si apre su una grande terrazza coperta a portico interamente affacciata sul giardino a livello. Il piano superiore comprende la zona notte con due camere sul lato sud che accedono direttamente a una grande terrazza al livello, chiusa a veranda con vetrata scorrevole e aperta su una emozionante veduta dello stretto di Messina. La casa è dotata di un impianto fotovoltaico che la rende energeticamente autosufficiente.
Le finiture sono tradizionali ma lussuose, con pavimenti in ceramica di Santo Stefano di Camastra. Il giardino di oltre 200 mq è dotato di un secondo portoncino di uso esclusivo, dal quale si può accedere direttamente dal giardino alla spiaggia.
La villa è una delle pochissime realizzate sul lato mare della via Consolare, l'edificio non necessita di particolari interventi ed è attualmente abitato dai proprietari.
A corredo dell'abitazione vi è anche un vano deposito di pertinenza con accesso indipendente dal cortile.
La zona è dotata di tutti i principali servizi e attività commerciali, per cui nonostante sia una soluzione abitativa con le caratteristiche di una villa extraurbana, risulta comoda ed esclusiva, collocata in un contesto signorile ma con le comodità di un appartamento in centro.
La porzione in vendita comprende il piano inferiore, affacciato sul giardino privato e dotato di un proprio accesso al mare, ed una parte del piano superiore.
Gli spazi comuni comprendono unicamente l'accesso dalla strada, un piccolo cortile e un passaggio pedonale pavimentato che permette l'accesso al mare a entrambe le unità immobiliari. L'abitazione si distribuisce su due livelli: il primo livello con due camere, cucina e servizi igienici ed un grande salone doppio che si apre su una grande terrazza coperta a portico interamente affacciata sul giardino a livello. Il piano superiore comprende la zona notte con due camere sul lato sud che accedono direttamente a una grande terrazza al livello, chiusa a veranda con vetrata scorrevole e aperta su una emozionante veduta dello stretto di Messina. La casa è dotata di un impianto fotovoltaico che la rende energeticamente autosufficiente.
Le finiture sono tradizionali ma lussuose, con pavimenti in ceramica di Santo Stefano di Camastra. Il giardino di oltre 200 mq è dotato di un secondo portoncino di uso esclusivo, dal quale si può accedere direttamente dal giardino alla spiaggia.
La villa è una delle pochissime realizzate sul lato mare della via Consolare, l'edificio non necessita di particolari interventi ed è attualmente abitato dai proprietari.
A corredo dell'abitazione vi è anche un vano deposito di pertinenza con accesso indipendente dal cortile.
La zona è dotata di tutti i principali servizi e attività commerciali, per cui nonostante sia una soluzione abitativa con le caratteristiche di una villa extraurbana, risulta comoda ed esclusiva, collocata in un contesto signorile ma con le comodità di un appartamento in centro.
Main data
| Reference | CBI178-2731-998 |
| Ad date | 08/01/2026 |
| Contract | Sale |
| Typology | Villa |
| Surface | 359 m2 |
| Locals | more than 5 (6 bedrooms, 9 other), 2 bathrooms |
| Plan | On several levels, 3 totals |
| Construction type | Signorile |
| Occupied | Free |
Costs
| Price | 780.000 € |
| Price per m2 | 2.173 €/m2 |
Energy efficiency
| Status | Good |
| Heating | Autonomous |
| Heating System Type | by air |
| Heating Power Type | Photovoltaic |
| Energy rating | Property exempt from energy certification |
Floor plans
Address and map
Via Consolare Pompea
108, Messina
Ad without map,
try asking the advertiser for the position
try asking the advertiser for the position
Mortgage calculation
Selling price:
Advance
20,00
Mortgage
80,00
Rate: -+
Payment: 2.231 per month
The results are an indicative estimate based on the data entered and do not constitute a financial offer.
Advertiser
Call
CONTACT


