Three-room apartment Via Milano, Medolla
€ 99.000Trilocale in vendita
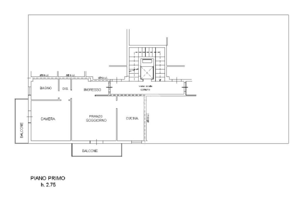
Medolla - Proponiamo trilocale al primo piano con ascensore e garage.
L'immobile si sviluppa con ingresso su soggiorno con angolo cottura.
Proseguendo troviamo una camera, un disimpegno che conduce al bagno, a un comodo angolo lavanderia e a una camera matrimoniale.
L'appartamento è stato recentemente rinnovato: pavimenti nuovi e bagno rifatto integralmente.
Completano la proprietà: una cantina piccola ed un'ulteriore cantina di 25 mq e posto auto coperto e assegnato.
Per tutelare la privacy dei nostri clienti, l'indirizzo del presente annuncio potrebbe non corrispondere in maniera precisa all'esatta ubicazione dell'immobile.
Desideri conoscere il valore della tua casa? Chiamaci allo 0535.652477 per una valutazione gratuita e senza impegno.
L'immobile si sviluppa con ingresso su soggiorno con angolo cottura.
Proseguendo troviamo una camera, un disimpegno che conduce al bagno, a un comodo angolo lavanderia e a una camera matrimoniale.
L'appartamento è stato recentemente rinnovato: pavimenti nuovi e bagno rifatto integralmente.
Completano la proprietà: una cantina piccola ed un'ulteriore cantina di 25 mq e posto auto coperto e assegnato.
Per tutelare la privacy dei nostri clienti, l'indirizzo del presente annuncio potrebbe non corrispondere in maniera precisa all'esatta ubicazione dell'immobile.
Desideri conoscere il valore della tua casa? Chiamaci allo 0535.652477 per una valutazione gratuita e senza impegno.
Main data
| Reference | 61159161 |
| Ad date | 07/01/2026 |
| Contract | Sale |
| Typology | Apartment |
| Surface | 88 m2 |
| Locals | 3 (3 other), 1 bathroom |
| Plan | 1 from 2 totals |
Costs
| Price | 99.000 € |
| Price per m2 | 1.125 €/m2 |
| Condominium fees | €100,00/month |
Energy efficiency
| Year built | 1985 |
| Heating | Autonomous |
| Heating Power Type | Methane |
| Energy rating | F |
| Energy Performance Index (IPE) | - |
Floor plans
Video
Address and map
Via Milano, Medolla
Mortgage calculation
Selling price:
Advance
20,00
Mortgage
80,00
Rate: -+
Payment: 283 per month
The results are an indicative estimate based on the data entered and do not constitute a financial offer.
Advertiser
Call
CONTACT

