Commercial Activity Via Fratelli Cervi, Reggio nell'Emilia
€ 70.000Attività in vendita
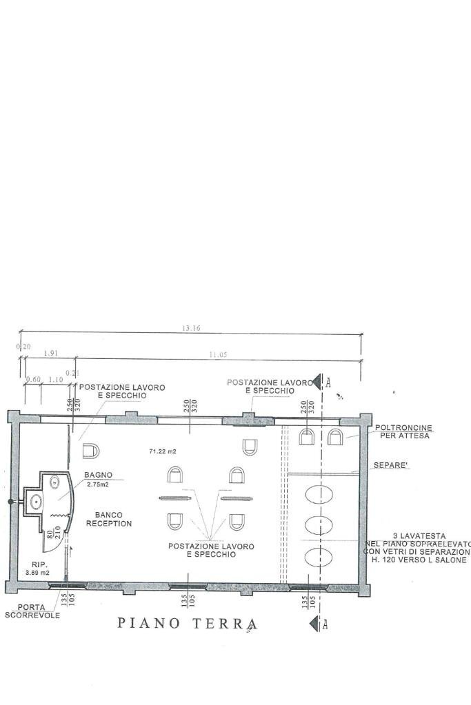
SALONE ACCONCIATURE
Immobilmedia Srl propone in vendita attività di acconciature.
Attrezzature, arredi, materiali compresi.
Subentro ai contratti di lavoro subordinato attualmente in essere.
Contattandoci, risponderemo con cortesia alle vostre domande.
Immobilmedia Srl propone in vendita attività di acconciature.
Attrezzature, arredi, materiali compresi.
Subentro ai contratti di lavoro subordinato attualmente in essere.
Contattandoci, risponderemo con cortesia alle vostre domande.
Main data
| Reference | 61158594 |
| Ad date | 05/01/2026 |
| Contract | Sale |
| Typology | Commercial Activity |
| Surface | 100 m2 |
| Locals | 1 (1 other), 1 bathroom |
| Plan | 1 totals |
Costs
| Price | 70.000 € |
| Price per m2 | 700 €/m2 |
Energy efficiency
| Heating Power Type | Other |
| Energy rating | Property exempt from energy certification |
Floor plans
Address and map
Via Fratelli Cervi, Reggio nell'Emilia
Mortgage calculation
Selling price:
Advance
20,00
Mortgage
80,00
Rate: -+
Payment: 200 per month
The results are an indicative estimate based on the data entered and do not constitute a financial offer.
Advertiser
Call
CONTACT

