Three-room apartment Via Maggini 55, Ancona
€ 129.000
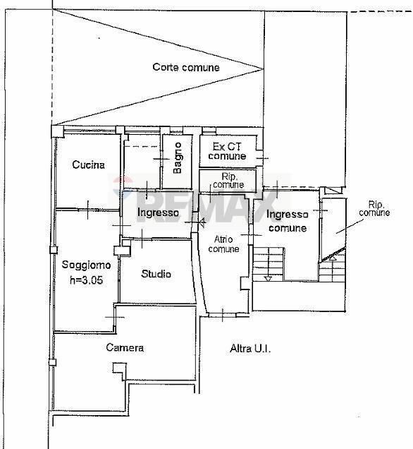
In Vendita: Trilocale 80 mq in Posizione Strategica ad Ancona Ideale per Famiglie, Senior o Investimento Descrizione: Proponiamo in vendita un'opportunità di 80 mq situata al primo piano di un contesto residenziale tranquillo e riservato ad Ancona. La zona è estremamente comoda e servita: a pochi passi troverete scuole, uffici, fermate dei mezzi pubblici, negozi e servizi di ogni necessità. La posizione strategica permette di raggiungere il centro di Ancona in pochi minuti, garantendo al contempo la massima silenziosità e privacy. Perché questo immobile è speciale? Grazie alla sua collocazione e alla distribuzione interna funzionale, questa soluzione risulta perfetta anche per persone della terza età che cercano la comodità di avere ogni servizio a portata di mano, in un contesto pianeggiante e senza barriere insormontabili, senza rinunciare alla praticità della vita cittadina. L'immobile è così composto: Ingresso accogliente; Zona giorno con cucina e soggiorno; Camera matrimoniale "Suite": una spaziosa camera che include un esclusivo salottino/studio annesso, perfetto per lo smart working o come zona relax privata; Cameretta luminosa; Bagno funzionale con doccia. Finiture e Comfort: L'appartamento si presenta in eccellenti condizioni interne, pronto per essere abitato sin da subito. Tra le dotazioni troviamo: Riscaldamento autonomo (basse spese di gestione); Aria condizionata (split in zona giorno/notte); Infissi in PVC/Doppio Vetro per un ottimo isolamento termo-acustico; Porta blindata; Pavimentazione in prefinito di alta qualità. Perché acquistarlo? Praticità e Centralità: Una base sicura per chi cerca spazi comodi in una zona vitale e strategica di Ancona. Versatilità: Perfetto come abitazione principale, ma anche come investimento solido e redditizio (B&B o affitti brevi) data la vicinanza a uffici e servizi. Pronto all'uso: Possibilità di acquistarlo completamente arredato tramite trattativa diretta con la proprietà. Occasione Unica: Una soluzione funzionale con spazi ben distribuiti in una posizione invidiabile.
Main data
| Reference | 34681002-324 |
| Ad date | 30/12/2025 |
| Contract | Sale |
| Typology | Apartment |
| Surface | 80 m2 |
| Locals | 3 (2 bedrooms, 1 other), 1 bathroom, kitchen habitable |
| Plan | 1 from 3 totals |
| Construction type | Average |
| Occupied | Free |
| Garage | Absent |
| Furniture | Absent |
Costs
| Price | 129.000 € |
| Price per m2 | 1.613 €/m2 |
Energy efficiency
| Status | Excellent |
| Heating | Autonomous |
| Energy rating | C |
| Energy Performance Index (IPE) | 206 kWh/m2 year |
Floor plans
Address and map
Via Maggini
55, Ancona
Ad without map,
try asking the advertiser for the position
try asking the advertiser for the position
Mortgage calculation
Selling price:
Advance
20,00
Mortgage
80,00
Rate: -+
Payment: 369 per month
The results are an indicative estimate based on the data entered and do not constitute a financial offer.
Advertiser

RE/MAX Centro Casa
Via Martiri della Resistenza, 25, Ancona
Show Phone
Show Mobile
Call
CONTACT

