Attic Contrada San Martino snc, Capo d'Orlando
€ 260.000
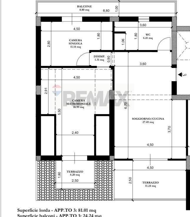
Capo d'Orlando - Attico nuova costruzione terrazzo vista Eolie In una delle zone residenziali più belle e ricercate di Capo dOrlando, immersa nella quiete e vista sul porto di Capo d'Orlando, sorge questo elegante attico di nuova costruzione, perfetto per chi sogna una casa moderna, comoda e con una vista che lascia senza fiato. Ci troviamo in Contrada San Martino, unarea apprezzata per la sua posizione strategica: tranquilla e riservata, ma a pochi minuti dal centro, dal mare e da tutti i servizi. Qui, il paesaggio regala scorci di rara bellezza e latmosfera è quella di un vivere rilassato, senza rinunciare alla qualità ed alla splendida vista Eolie . Lattico si trova al secondo piano, servito da ascensore, e si sviluppa su una superficie di circa 80 mq. Gli ambienti sono luminosi e ben distribuiti: una zona giorno accogliente con cucina a vista, camere da letto, un bagno e, soprattutto, terrazzo che rappresenta il cuore della casa. - Possibilità di ampliamento dell'altro attico attiguo - Posto auto assegnato - Possibilità acquisto piano cantinato a 1500 mq. DATI TECNICI : - Strutture in cemento armato con solai in latero-cemento - Murature esterne ad alta efficienza energetica con cappotto termico da 6 cm - Infissi in alluminio a taglio termico, vetrocamera e tapparelle elettriche - Impianto di climatizzazione con pompa di calore e produzione acqua calda sanitaria - Impianto fotovoltaico privato (3 kWp in base al piano) - Videocitofono e impianto elettrico completo con serie Ticino o Vimar - Rivestimenti e pavimenti di prima scelta, in gres porcellanato o ceramica - Bagni completi di sanitari, piatto doccia, rubinetterie monocomando - Porte interne in legno tanganica, portoncino blindato - Parapetti e scale in ferro e marmo/granito - Predisposizione per lavastoviglie, lavatrice, gas e antenna TV - Aree esterne con pavimentazione antisdrucciolo e zone carrabili in asfalto Progettazione attenta al risparmio energetico e allarmonia architettonica Contattaci per planimetrie, visite in cantiere e scelta delle finiture! Coefficiente energetico: A4
Main data
| Reference | 32461522-3329 |
| Ad date | 30/12/2025 |
| Contract | Sale |
| Typology | Attic |
| Surface | 80 m2 |
| Locals | 3 (2 bedrooms, 1 other), 1 bathroom, kitchen on sight |
| Plan | 2 from 2 totals |
| Construction type | Signorile |
| Occupied | Free |
| Garage | Absent |
| Number of parking spaces | 1 |
Costs
| Price | 260.000 € |
| Price per m2 | 3.250 €/m2 |
Energy efficiency
| Heating | Autonomous |
| Heating Power Type | Photovoltaic |
| Energy rating | G |
| Energy Performance Index (IPE) | - |
Floor plans
Video
Address and map
Contrada San Martino
snc, Capo d'Orlando
Ad without map,
try asking the advertiser for the position
try asking the advertiser for the position
Mortgage calculation
Selling price:
Advance
20,00
Mortgage
80,00
Rate: -+
Payment: 744 per month
The results are an indicative estimate based on the data entered and do not constitute a financial offer.
Advertiser
Call
CONTACT


