Semi-detached house VIA DELLA COLLACCHIA 61, Roccastrada
€ 250.000
PRONTA SUBITO, SPAZIOSA DAVVERO: LA VILLA CHE TIENE UNITE DUE FAMIGLIE SENZA TOGLIERE SPAZIO A NESSUNO
VIVERE VICINI SENZA PESTARSI I PIEDI
In Via della Collacchia 6163, a pochi minuti dal centro di Ribolla (GR), cè una casa che mette ordine alle esigenze di due generazioni. Qui la vicinanza non diventa invadenza e lautonomia non si traduce in distanza: si entra, si chiude il cancello, e ognuno trova il proprio ritmo dentro spazi pensati per convivere senza conflitti.
MAREMMA PRATICA, SERVIZI VICINI
La quotidianità scorre facile: strada asfaltata, mezzi a portata, paese raggiungibile in un attimo. Davanti il respiro del borgo, dietro labbraccio del verde maremmano. Il terreno di circa 1.860 mq circonda la casa e porta con sé cinquantasei olivi in produzione, irrigati da un pozzo condonato: una piccola filiera domestica che rende concreta lidea di qualità di vita. Lindipendenza è reale, la gestione è semplice.
LE CASE CHE OBBLIGANO A SCEGLIERE
Quasi ovunque ti viene chiesto di decidere subito: o ununica famiglia in grande, o due appartamenti nettamente separati con compromessi che tolgono respiro. Qui, no. Questa villa su due livelli ti offre lopzione più intelligente: tenere tutto unito oggi e, quando serve, rendere autonomi gli ambienti senza strappi, senza cantieri invasivi, senza cambiare indirizzo.
LE FASI DELLA VITA CAMBIANO, LA CASA DEVE SEGUIRE
I bambini crescono, i nonni oggi sono indipendenti e domani forse avranno bisogno di qualche attenzione in più, uno dei figli vuole uno studio serio per lavorare da casa. Quando la casa non si adatta, arrivano stanze sprecate, rumori che viaggiano tra i piani, il solito fate piano che spegne le serate. Serve una struttura duttile, non rigida.
DUE PIANI CHE SI CAPISCONO AL VOLO
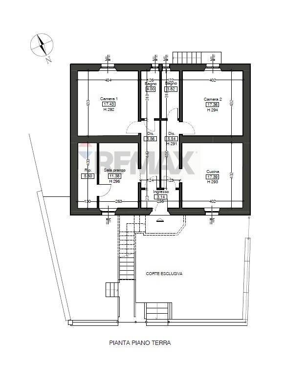
Il piano terra, 115 mq con soffitti alti tre metri, è una casa vera: zona giorno con cucina abitabile, camera matrimoniale e bagno, con la cantina pertinenziale a portata di mano. Limpianto è già pronto per essere modulato in due unità indipendenti quando lo vorrai, non quando la casa te lo impone. Al primo piano, 121 mq con ingresso indipendente accolgono tre camere, un bagno e due cucine già operative; la predisposizione per unulteriore zona cottura ti permette di separare funzioni e abitudini con naturalezza. In alto, la soffitta pertinenziale e non convertibile è il luogo ordinato dei cambi di stagione. È una casa nata negli anni 60, mantenuta con cura, pronta subito: niente lavori da avviare, solo scegliere gli arredi e decidere come distribuire le funzioni.
QUOTIDIANO PIÙ SEMPLICE, FAMIGLIA PIÙ SERENA
Quando gli spazi si organizzano intorno alle persone, la giornata scorre meglio. I nonni scendono per un caffè senza invadere, i bambini corrono in un giardino recintato e protetto dal cancello, luliveto diventa il pretesto per stare insieme senza calpestarsi. Oggi vivi tutti sotto lo stesso tetto con ordine; domani, se decidi di mettere a reddito una parte o di separare i nuclei, lo fai senza rivoluzioni.
DAL FASTIDIO ALLA NOSTALGIA, FINO ALLESPERIENZA CONCRETA
Quel fastidio silenzioso di rumori che passano tra i piani e di spazi che non tornano lascia il posto a una nostalgia buona: i pranzi della domenica che si allungano, lolio di casa, i saluti dalla finestra che affaccia sul paese. Poi arriva lesperienza: entri, accendi il riscaldamento autonomo a metano con termosifoni in alluminio, regoli laria condizionata dove serve, chiudi le persiane degli infissi in alluminio con doppio vetro, e la casa fa quello che deve fare funziona.
DETTAGLI CHE CONTANO, RACCONTATI SENZA TECNICISMI
Non servono promesse vaghe: qui ci sono quattro bagni con doccia per evitare code al mattino, tre cucine già attive con la predisposizione per la quarta al primo piano per gestire pranzi separati quando conviene, fognatura pubblica per semplificare la gestione, annessi di 48 mq e 14 mq per attrezzi e hobby, recinzione...
VIVERE VICINI SENZA PESTARSI I PIEDI
In Via della Collacchia 6163, a pochi minuti dal centro di Ribolla (GR), cè una casa che mette ordine alle esigenze di due generazioni. Qui la vicinanza non diventa invadenza e lautonomia non si traduce in distanza: si entra, si chiude il cancello, e ognuno trova il proprio ritmo dentro spazi pensati per convivere senza conflitti.
MAREMMA PRATICA, SERVIZI VICINI
La quotidianità scorre facile: strada asfaltata, mezzi a portata, paese raggiungibile in un attimo. Davanti il respiro del borgo, dietro labbraccio del verde maremmano. Il terreno di circa 1.860 mq circonda la casa e porta con sé cinquantasei olivi in produzione, irrigati da un pozzo condonato: una piccola filiera domestica che rende concreta lidea di qualità di vita. Lindipendenza è reale, la gestione è semplice.
LE CASE CHE OBBLIGANO A SCEGLIERE
Quasi ovunque ti viene chiesto di decidere subito: o ununica famiglia in grande, o due appartamenti nettamente separati con compromessi che tolgono respiro. Qui, no. Questa villa su due livelli ti offre lopzione più intelligente: tenere tutto unito oggi e, quando serve, rendere autonomi gli ambienti senza strappi, senza cantieri invasivi, senza cambiare indirizzo.
LE FASI DELLA VITA CAMBIANO, LA CASA DEVE SEGUIRE
I bambini crescono, i nonni oggi sono indipendenti e domani forse avranno bisogno di qualche attenzione in più, uno dei figli vuole uno studio serio per lavorare da casa. Quando la casa non si adatta, arrivano stanze sprecate, rumori che viaggiano tra i piani, il solito fate piano che spegne le serate. Serve una struttura duttile, non rigida.
DUE PIANI CHE SI CAPISCONO AL VOLO
Il piano terra, 115 mq con soffitti alti tre metri, è una casa vera: zona giorno con cucina abitabile, camera matrimoniale e bagno, con la cantina pertinenziale a portata di mano. Limpianto è già pronto per essere modulato in due unità indipendenti quando lo vorrai, non quando la casa te lo impone. Al primo piano, 121 mq con ingresso indipendente accolgono tre camere, un bagno e due cucine già operative; la predisposizione per unulteriore zona cottura ti permette di separare funzioni e abitudini con naturalezza. In alto, la soffitta pertinenziale e non convertibile è il luogo ordinato dei cambi di stagione. È una casa nata negli anni 60, mantenuta con cura, pronta subito: niente lavori da avviare, solo scegliere gli arredi e decidere come distribuire le funzioni.
QUOTIDIANO PIÙ SEMPLICE, FAMIGLIA PIÙ SERENA
Quando gli spazi si organizzano intorno alle persone, la giornata scorre meglio. I nonni scendono per un caffè senza invadere, i bambini corrono in un giardino recintato e protetto dal cancello, luliveto diventa il pretesto per stare insieme senza calpestarsi. Oggi vivi tutti sotto lo stesso tetto con ordine; domani, se decidi di mettere a reddito una parte o di separare i nuclei, lo fai senza rivoluzioni.
DAL FASTIDIO ALLA NOSTALGIA, FINO ALLESPERIENZA CONCRETA
Quel fastidio silenzioso di rumori che passano tra i piani e di spazi che non tornano lascia il posto a una nostalgia buona: i pranzi della domenica che si allungano, lolio di casa, i saluti dalla finestra che affaccia sul paese. Poi arriva lesperienza: entri, accendi il riscaldamento autonomo a metano con termosifoni in alluminio, regoli laria condizionata dove serve, chiudi le persiane degli infissi in alluminio con doppio vetro, e la casa fa quello che deve fare funziona.
DETTAGLI CHE CONTANO, RACCONTATI SENZA TECNICISMI
Non servono promesse vaghe: qui ci sono quattro bagni con doccia per evitare code al mattino, tre cucine già attive con la predisposizione per la quarta al primo piano per gestire pranzi separati quando conviene, fognatura pubblica per semplificare la gestione, annessi di 48 mq e 14 mq per attrezzi e hobby, recinzione...
Main data
| Reference | 41741006-178 |
| Ad date | 20/12/2025 |
| Contract | Sale |
| Typology | Semi-detached house |
| Surface | 236 m2 |
| Locals | more than 5 (5 bedrooms, 6 other), 3 bathrooms, kitchen small kitchen |
| Plan | On several levels, 2 totals |
| Construction type | Average |
| Occupied | Free |
| Garage | Absent |
| Furniture | Partial |
Costs
| Price | 250.000 € |
| Price per m2 | 1.059 €/m2 |
Energy efficiency
| Status | Good |
| Heating | Autonomous |
| Energy rating | G |
| Energy Performance Index (IPE) | 386 kWh/m2 year |
Floor plans
Virtual tour
Address and map
VIA DELLA COLLACCHIA
61, Roccastrada
Ad without map,
try asking the advertiser for the position
try asking the advertiser for the position
Mortgage calculation
Selling price:
Advance
20,00
Mortgage
80,00
Rate: -+
Payment: 715 per month
The results are an indicative estimate based on the data entered and do not constitute a financial offer.
Advertiser

RE/MAX VerdeOro
Via Roma 1, Roccastrada
Show Mobile
Call
CONTACT

