Three-room apartment Via del tulipano, Rimini
€ 179.000Trilocale in vendita
Rimini, zona via Praga
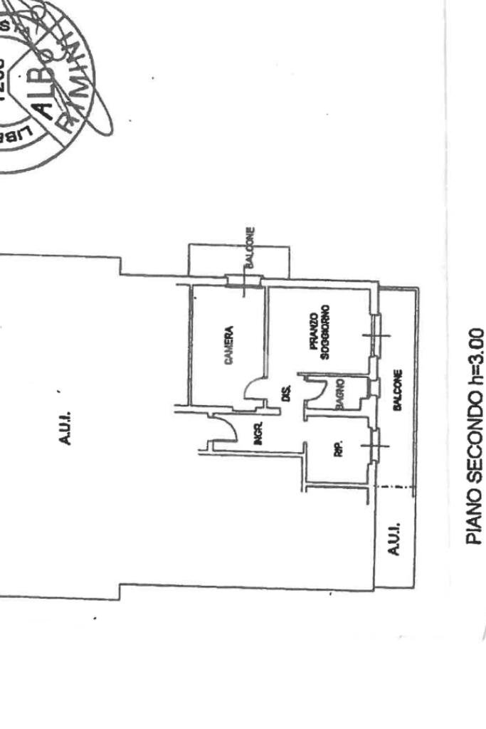
Proponiamo in vendita un appartamento di 50 mq situato al secondo piano di un edificio senza ascensore. L'immobile, costruito negli anni '70, offre una disposizione funzionale degli spazi.
All'ingresso si accede a un luminoso soggiorno con cucina a vista, ideale per momenti di convivialità.
La zona notte comprende una spaziosa camera matrimoniale e uno studio, perfetto per chi lavora da casa o necessita di uno spazio aggiuntivo.
Il bagno è finestrato, garantendo luce naturale e ventilazione.
Due terrazzi completano la proprietà, offrendo spazi esterni per il relax.
La posizione è strategica, a soli 5 minuti a piedi dal mare, permettendo di godere appieno delle bellezze della costa riminese. Un ulteriore vantaggio è l'assenza di spese condominiali, rendendo questa soluzione particolarmente interessante.
Proponiamo in vendita un appartamento di 50 mq situato al secondo piano di un edificio senza ascensore. L'immobile, costruito negli anni '70, offre una disposizione funzionale degli spazi.
All'ingresso si accede a un luminoso soggiorno con cucina a vista, ideale per momenti di convivialità.
La zona notte comprende una spaziosa camera matrimoniale e uno studio, perfetto per chi lavora da casa o necessita di uno spazio aggiuntivo.
Il bagno è finestrato, garantendo luce naturale e ventilazione.
Due terrazzi completano la proprietà, offrendo spazi esterni per il relax.
La posizione è strategica, a soli 5 minuti a piedi dal mare, permettendo di godere appieno delle bellezze della costa riminese. Un ulteriore vantaggio è l'assenza di spese condominiali, rendendo questa soluzione particolarmente interessante.
Main data
| Reference | 61153593 |
| Ad date | 17/12/2025 |
| Contract | Sale |
| Typology | Apartment |
| Surface | 50 m2 |
| Locals | 3 (3 other), 1 bathroom |
| Plan | 2 from 2 totals |
Costs
| Price | 179.000 € |
| Price per m2 | 3.580 €/m2 |
Energy efficiency
| Year built | 1970 |
| Heating | Autonomous |
| Heating Power Type | Methane |
| Energy rating | G |
| Energy performance index (EP GL, NREN ) | 250 kWh/m3 year |
Floor plans
Video
Address and map
Via del tulipano, Rimini
Mortgage calculation
Selling price:
Advance
20,00
Mortgage
80,00
Rate: -+
Payment: 512 per month
The results are an indicative estimate based on the data entered and do not constitute a financial offer.
Advertiser
Call
CONTACT

