Rustic Via Scodella, Savignano sul Rubicone
€ 270.000Rustico in vendita
Savignano sul Rubicone: a pochi minuti dai principali servizi, in posizione pianeggiante ai piedi del Castello di Ribano, proponiamo casolare colonico romagnolo dei primi ’900 su lotto di oltre 1.500 mq, sviluppato su due livelli. Il contesto è residenziale e riservato, immerso nel verde ma non isolato. Completa la proprietà un deposito trasformabile in garage.
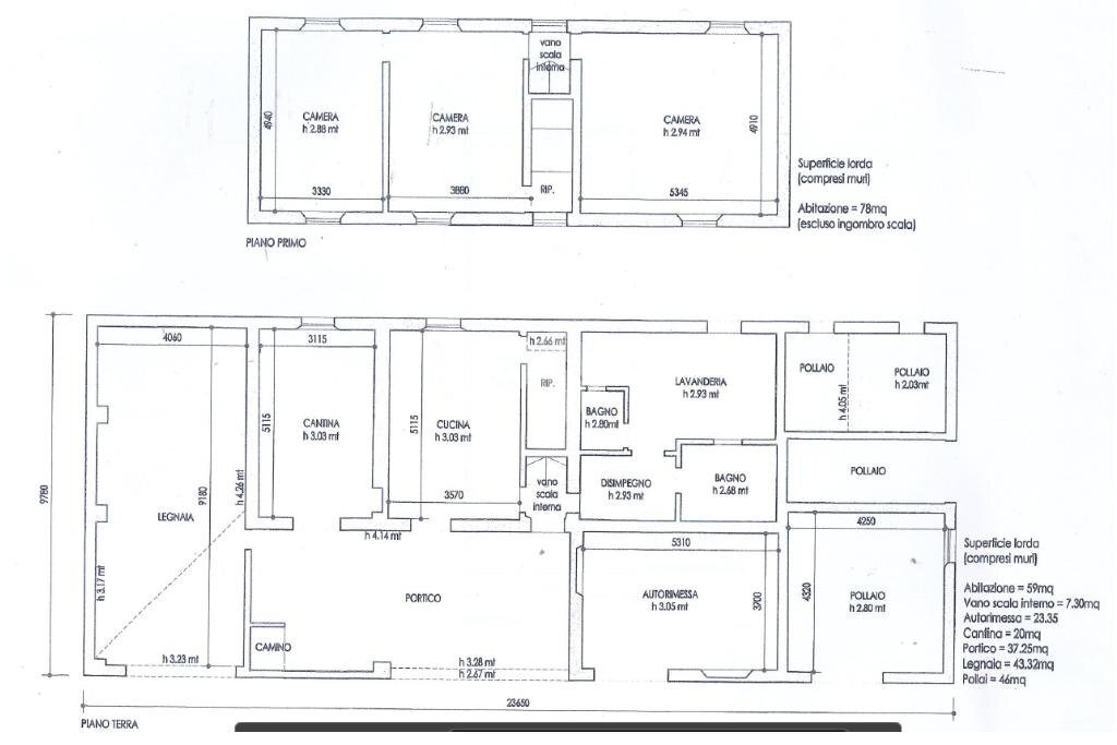
L'abitazione al piano terra ci accoglie tramite porticato con camino, in un ampia cucina con ripostiglio. Tramite disimpegno si raggiunge la camera da letto singola ed una lavanderia dedicata aggiunge comodità alla vita quotidiana. Inoltre è presente un bagno di servizio.
Tramite scale in muratura, si raggiunge la zona notte, nelle quali si può godere di una splendida vista sulle colline del Castello di Ribano ed è caratterizzata da tre camere da letto matrimoniali, una delle quali dotata di ripostiglio privato.
Conclude il piano terra una cantina e vari servizi di oltre 130 mq, tra cui un deposito trasformabile come ulteriore garage e diversi posti auto.
La soluzione può essere divisibile in due unità abitative.
Il giardino circostante offre un'oasi di tranquillità, rendendo questa dimora un'opportunità unica per chi cerca una residenza accogliente e funzionale.
Per qualsiasi informazione o per fissare un appuntamento chiama: 3938307255 o 0541942614 oppure manda un'email: fohr4
L'abitazione al piano terra ci accoglie tramite porticato con camino, in un ampia cucina con ripostiglio. Tramite disimpegno si raggiunge la camera da letto singola ed una lavanderia dedicata aggiunge comodità alla vita quotidiana. Inoltre è presente un bagno di servizio.
Tramite scale in muratura, si raggiunge la zona notte, nelle quali si può godere di una splendida vista sulle colline del Castello di Ribano ed è caratterizzata da tre camere da letto matrimoniali, una delle quali dotata di ripostiglio privato.
Conclude il piano terra una cantina e vari servizi di oltre 130 mq, tra cui un deposito trasformabile come ulteriore garage e diversi posti auto.
La soluzione può essere divisibile in due unità abitative.
Il giardino circostante offre un'oasi di tranquillità, rendendo questa dimora un'opportunità unica per chi cerca una residenza accogliente e funzionale.
Per qualsiasi informazione o per fissare un appuntamento chiama: 3938307255 o 0541942614 oppure manda un'email: fohr4
Main data
| Reference | 61153971 |
| Ad date | 17/12/2025 |
| Contract | Sale |
| Typology | Rustic |
| Surface | 255 m2 |
| Locals | 5 (5 other), 1 bathroom |
| Plan | 2 totals |
| Number of parking spaces | 5 |
Costs
| Price | 270.000 € |
| Price per m2 | 1.059 €/m2 |
Energy efficiency
| Year built | 1900 |
| Heating | Autonomous |
| Heating Power Type | Methane |
| Energy rating | Property exempt from energy certification |
Floor plans
Video
Address and map
Via Scodella, Savignano sul Rubicone
Mortgage calculation
Selling price:
Advance
20,00
Mortgage
80,00
Rate: -+
Payment: 772 per month
The results are an indicative estimate based on the data entered and do not constitute a financial offer.
Advertiser
Call
CONTACT

