Building land via Fondo Cicala, Carini
€ 180.000TERRENO EDIFICABILE CON PROGETTO APPROVATO
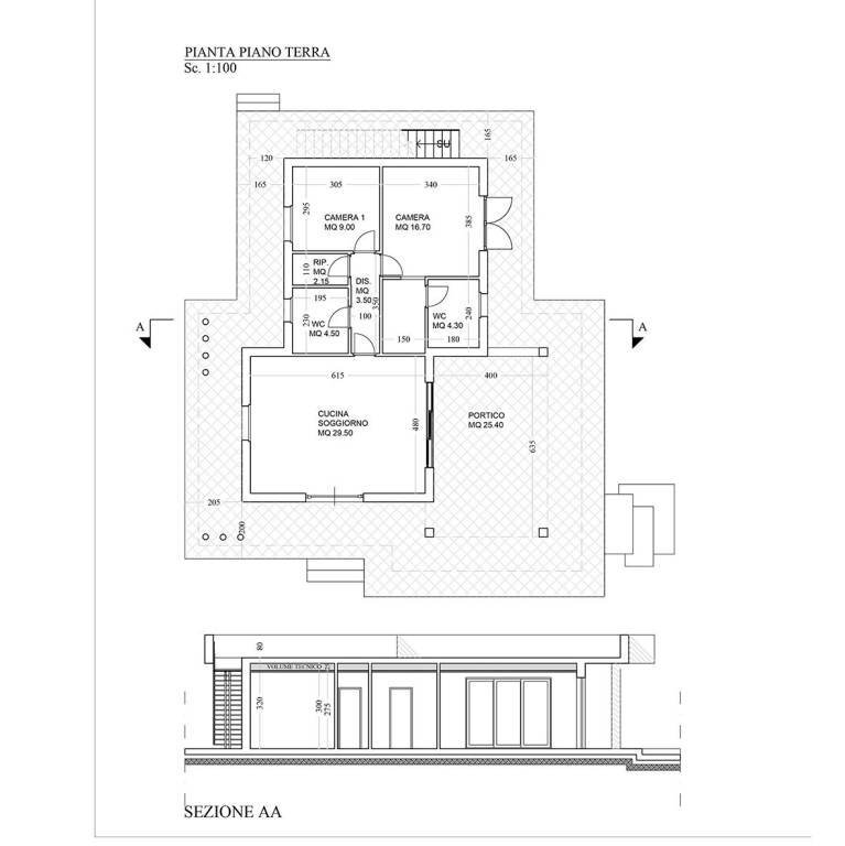
La Homework Immobiliare propone in vendita, in Via Fondo Cicala a Carini (PA), terreno edificabile di con progetto approvato per la realizzazione di una villa indipendente con piscina e terrazza panoramica, in posizione altamente strategica vicino al progetto RIMED e aeroporto di Palermo. La villa sarà composta da: - Portico di 25 mq - Cucina e soggiorno open space - Due camere da letto - Due bagni - Ripostiglio - Terrazza sul tetto estesa su tutta la superficie dell’abitazione - Piscina interrata privata - Ampio giardino circostante esclusivo L’area si trova nelle immediate vicinanze del futuro centro di eccellenza RIMED, ambizioso polo scientifico e tecnologico che ospiterà circa 600 professionisti tra ricercatori, tecnici, ingegneri e personale amministrativo. La posizione è inoltre comoda per raggiungere l’aeroporto di Palermo, rendendola ideale anche per investimento lungo o locazione di prestigio. Opportunità unica per chi desidera realizzare una villa in un contesto in forte sviluppo ed espansione. La presente descrizione/foto non costituisce vincolo contrattuale. Vai sul nostro sito internet, www.homeworkimmobiliare.com, e troverai l'immobile che fa per te. I nostri uffici seguono i seguenti orari lun-ven 9,00 - 12,30; 14,30 - 19,30 - sabato: 9,00 - 12,30. SEDE TORINO - HOMEWORK IMMOBILIARE S.R.L. Via Giacinto Collegno 10/B, 10143 Torino Tel. 011.20.70.488 E-mail: [email protected] SEDE VENARIA REALE (TO) - HOMEWORK IMMOBILIARE S.R.L. Via Pietro Rolle 2, 10078 Venaria Reale (TO) Tel. 351.53.13.651 E-mail: [email protected] SEDE CHIVASSO (TO) - HOMEWORK IMMOBILIARE S.R.L. Viale Giacomo Matteotti 4/A, 10034 Chivasso (TO) Tel. 011.19.66.7210 E-mail: [email protected]
Main data
| Reference | Via Fondo Cicala - terreno |
| Ad date | 15/12/2025 |
| Contract | Sale |
| Typology | Building land |
| Surface | 7978 m2 |
Costs
| Price | 180.000 € |
| Price per m2 | 23 €/m2 |
Energy efficiency
| Energy rating | Property exempt from energy certification |
Address and map
via Fondo Cicala, Carini
Mortgage calculation
Selling price:
Advance
20,00
Mortgage
80,00
Rate: -+
Payment: 515 per month
The results are an indicative estimate based on the data entered and do not constitute a financial offer.
Advertiser
Call
CONTACT


