Semi-detached house Località Baracchino, Gavi
€ 168.000Casa semindipendente in vendita
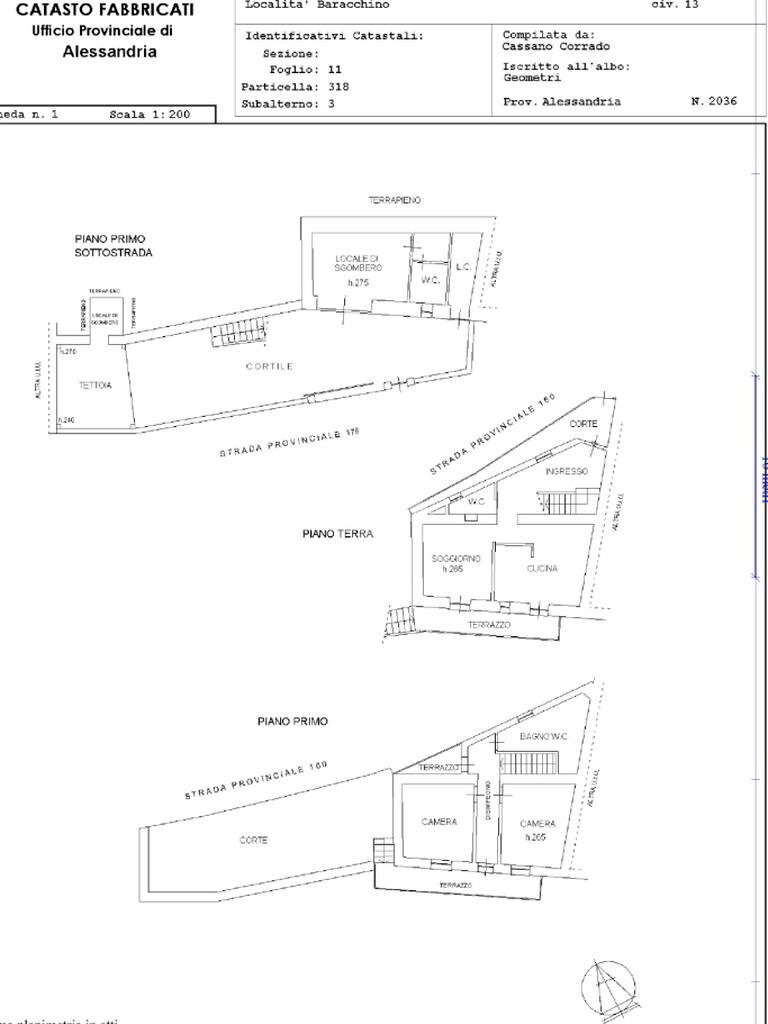
Nel comune di Gavi, proponiamo in vendita una casa semindipendente ideale per chi cerca spazio, comfort e storicità. L'immobile, costruito nei primi anni del 1900 e ristrutturato integralmente nel 2019, si sviluppa su due livelli abitativi distribuiti tra il primo piano, dove troviamo la zona giorno con la cucina abitabile, il soggiorno d'ingresso ed il bagno di servizio e il secondo piano in cui le due camere da letto sono servite dal bagno vintage moderno padronale. Al piano terra invece troviamo la taverna ricavata da quella che in orignie era una tipica cantina da vini con le volte in mattoni a vista ed un bagno di servizio aggiuntivo, anch'essa completamente ristrutturata. Sia dal piano primo della zona giorno sia dal secondo piano la proporità gode di una vista meravigliosa sulla vallata con un ottima esposizione a sud ovest. Completa la proprietà il cortile carrabile privato con accesso dal cancello automatizzato ed il giardino pensile.
Main data
| Reference | 61154387 |
| Ad date | 16/12/2025 |
| Contract | Sale |
| Typology | Semi-detached house |
| Surface | 132 m2 |
| Locals | 4 (2 bedrooms, 2 other), 3 bathrooms |
| Plan | 3 from 3 totals |
Costs
| Price | 168.000 € |
| Price per m2 | 1.273 €/m2 |
Energy efficiency
| Year built | 1980 |
| Heating | Autonomous |
| Heating Power Type | Methane |
| Energy rating | F |
| Energy performance index (EP GL, REN ) | 0.73 kWh/m3 year |
| Energy performance index (EP GL, NREN ) | 211 kWh/m3 year |
Floor plans
Video
Address and map
Località Baracchino, Gavi
Mortgage calculation
Selling price:
Advance
20,00
Mortgage
80,00
Rate: -+
Payment: 480 per month
The results are an indicative estimate based on the data entered and do not constitute a financial offer.
Advertiser
Call
CONTACT

