Three-room apartment Via Giambellino 59, Milano
€ 610.000
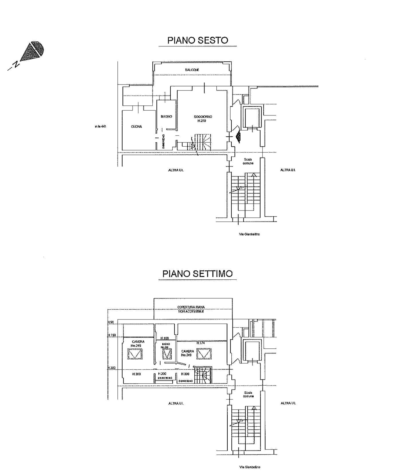
Questa bellissima proprietà in vendita si trova nella zona residenziale Giambellino, una delle aree più ricercate della città di Milano. Si tratta di un appartamento di recente costruzione, in ottime condizioni e paragonabile a un'abitazione nuova pronta per essere abitata. Situato all'ultimo piano di uno stabile moderno e dotato di ascensore, l'immobile si presenta come la soluzione ideale per chi cerca un'abitazione confortevole e moderna Si accede all'appartamento al sesto piano, accolti da un luminoso soggiorno con terrazzino, poi tramite comodo dismpegno attrezzato si accede alla cucina abitabile, anch'essa con accesso al terrazzino della zona giorno e al bagno. Una scenografica scala a vista con gradini sospesi, conduce alla zona notte mansardata, dove si trovano due ampie camere da letto e il bagno. E' possibile accedere al piano superiore tramite ingresso diretto con porta blindata dal settimo piano. Riassumendo, il trilocale è composto da una zona giorno al piano sesto, dove trovano spazio soggiorno, bagno con finestra, cucina abitabile e terrazzino con accesso sia dal soggiorno che dalla cucina e da una zona notte abitabile al piano settimo mansardato, con due camere e bagno. Insomma, un appartamento comfotevole ideale per una famiglia o per chi desidera uno spazio abitativo ampio e confortevole. Dal terrazzino attrezzato, si può godere di una splendida vista aperta, ideale per rilassarsi o per organizzare cene e aperitivi all'aperto. L' appartamento è caratterizzato da prestigiosa pavimentazione in listoni di legno e da un impianto di riscaldamento a pavimento, perfetto per garantire un comfort ottimale in ogni angolo dell'abitazione, unitamente all'impianto di condizionamento presente in ogni locale. Inoltre grazie ai modernissimi serramenti e al riscaldamento centralizzato con gestione autonoma, è possibile usufruire di un sistema abitativo comfortevole e a basso impatto ambientale, certificati dalla classe energetica"A" . La cucina abitabile, ottimamente collegata con lo spazio esterno attrezzato, offre la possibilità di godere di piacevoli momenti conviviali Questa soluzione immobiliare si distingue per la sua posizione privilegiata, la sua moderna struttura e il suo ottimo stato, paragonabile al nuovo. La cucina abitabile, ottimamente collegata con lo spazio esterno attrezzato, offre la possibilità di godere di piacevoli momenti conviviali. Con i suoi 7 piani totali, lo stabile si presenta come una soluzione moderna e ben curata, perfetta per chi cerca un ambiente tranquillo e sicuro. Non perdere l'occasione di acquistare questo splendido appartamento, libero subito, che ti permetterà di vivere la città di Milano in tutta comodità e stile Contattaci per maggiori informazioni e per prenotare una visita in esclusiva con Coldwell Banker Bodini Milano
Main data
| Reference | CBI112-3014-301445 |
| Ad date | 16/12/2025 |
| Contract | Sale |
| Typology | Apartment |
| Surface | 105 m2 |
| Locals | 3 (2 bedrooms, 1 other), 2 bathrooms, kitchen habitable |
| Plan | Top floor, 7 totals |
| Construction type | Signorile |
| Occupied | Free |
| Garage | Absent |
Costs
| Price | 610.000 € |
| Price per m2 | 5.810 €/m2 |
Energy efficiency
| Status | Excellent |
| Heating | Semi-autonomous |
| Heating System Type | on the floor |
| Energy rating | A1 |
Floor plans
Virtual tour
Video
Address and map
Via Giambellino
59, Milano
Ad without map,
try asking the advertiser for the position
try asking the advertiser for the position
Mortgage calculation
Selling price:
Advance
20,00
Mortgage
80,00
Rate: -+
Payment: 1.745 per month
The results are an indicative estimate based on the data entered and do not constitute a financial offer.
Advertiser

Coldwell Banker Gruppo Bodini
Via Passione, 7, Milano
Show Phone
Show Mobile
Cattaneo Gianmarco
Show Phone
Call
CONTACT

