Attic via San Pietro, Montemarciano
€ 68.000
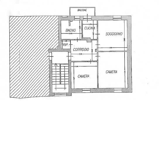
RIF. 25_26 - Montemarciano (An) - Appartamento con IMPIANTO FOTOVOLTAICO, INFISSI E CALDAIA NUOVI, CAPPOTTO ESTERNO. TERZO e ULTIMO piano. 2 CAMERE. Da qui si vede anche il MARE. Questo appartamento è per te che cerchi l'ultimo piano, una vista spettacolare e una grande luminosità. Ottimo per viverci, ma anche per investimento. L'appartamento è composto da: un ingresso, una camera matrimoniale, una camera singola, un soggiorno-cucina, un cucinino con balcone, un RIPOSTIGLIO e una CANTINA spaziosa al piano terra. L'appartamento misura 60mq reali e la cantina 10mq. L'appartamento è libero da subito. Qui hai la possibilità di acquistare l'appartamento vicino per creare un grande appartamento di 110mq oppure per mettere in affitto. Chiamaci per informazioni e vieni a vederlo subito di persona! Classe Energetica D 88,46 kwh/mqanno Per ulteriori informazioni scrivi a [email protected] o chiama il numero 0719257795 Visita il nostro sito internet: www.animacasa.net
Main data
| Reference | 25_26 |
| Ad date | 16/12/2025 |
| Contract | Sale |
| Typology | Attic |
| Surface | 70 m2 |
| Locals | 4 (2 bedrooms, 2 other), 1 bathroom |
| Plan | 3 from 3 totals |
| Construction type | Average |
| Occupied | Free |
Costs
| Price | 68.000 € |
| Price per m2 | 971 €/m2 |
Energy efficiency
| Status | Good |
| Heating | Autonomous |
| Heating Power Type | Photovoltaic |
| Energy rating | D |
| Energy Performance Index (IPE) | - |
Floor plans
Address and map
via San Pietro, Montemarciano
Ad without map,
try asking the advertiser for the position
try asking the advertiser for the position
Mortgage calculation
Selling price:
Advance
20,00
Mortgage
80,00
Rate: -+
Payment: 194 per month
The results are an indicative estimate based on the data entered and do not constitute a financial offer.
Advertiser
Call
CONTACT


