Four-room apartment via Giovan Battista Vico, 10, Mondovì
€ 119.000MONDOVI' PIAZZA VIA VICO
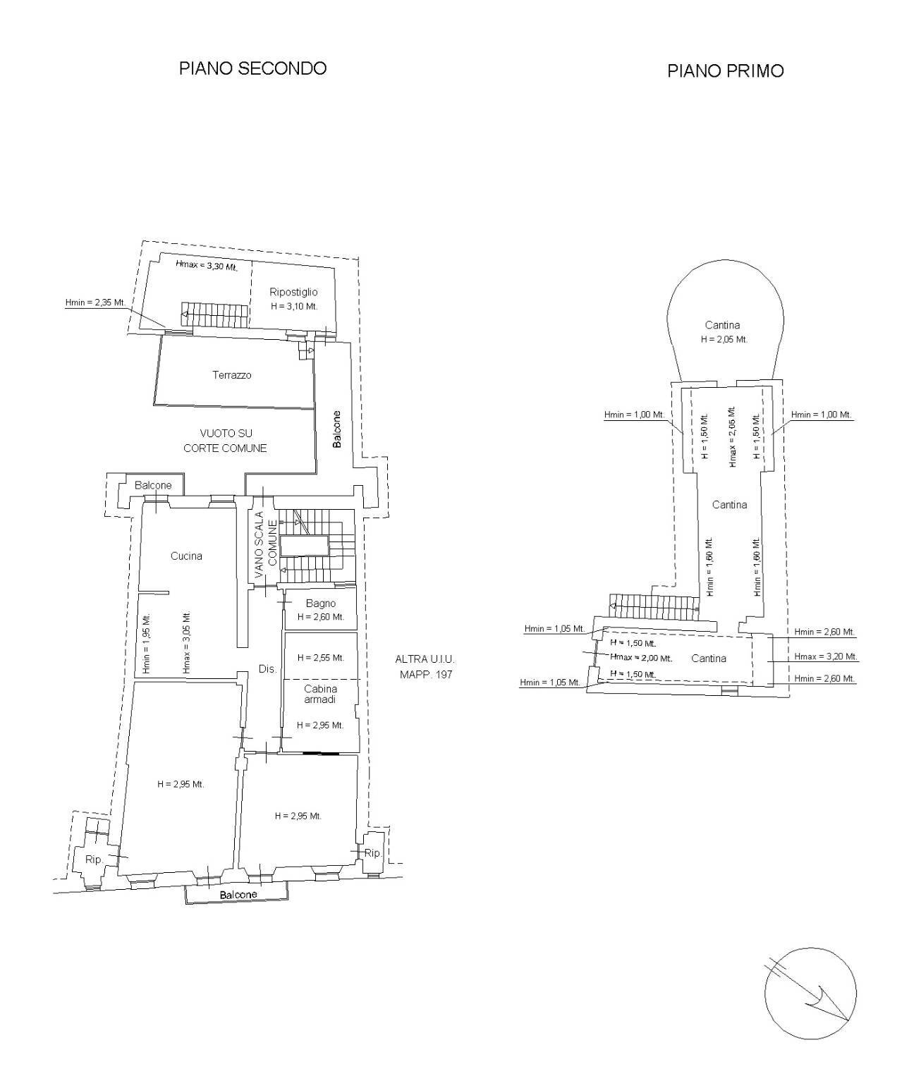
MONDOVÌ PIAZZA – Nel cuore del centro storico, a due passi da Piazza Maggiore APPARTAMENTO CON ACCESSO INDIPENDENTE NO CONDOMINIO. Si vende appartamento sito al secondo piano di stabile storico, caratterizzato da ampi spazi e da una disposizione funzionale degli ambienti. L’immobile è composto da: ingresso disimpegno grande cucina abitabile sala due camere da letto ripostigli bagno balcone collegamento da ballatoio interno a ampia terrazza ideale per momenti di relax all’aperto Completano la proprietà: taverna con forno cantina L’appartamento è termoautonomo. Tetto e facciate sono stati recentemente ristrutturati, garantendo un immobile in ottime condizioni. Soluzione ideale per chi desidera vivere in una delle zone più suggestive di Mondovì, con tutti i servizi e le comodità a portata di mano.
Main data
| Reference | ID2933586 |
| Ad date | 12/12/2025 |
| Contract | Sale |
| Typology | Apartment |
| Surface | 151 m2 |
| Locals | 4 (2 bedrooms, 2 other), 1 bathroom, kitchen habitable |
| Plan | 3 totals |
| Construction type | Average |
| Number of terraces | 1 |
| Number of balconies | 1 |
| Garage | Absent |
| Furniture | Absent |
Costs
| Price | 119.000 € |
| Price per m2 | 788 €/m2 |
| Condominium fees | €20,00/month |
Energy efficiency
| Status | Good |
| Heating | Autonomous |
| Energy rating | F |
| Energy Performance Index (IPE) | 175 kWh/m2 year |
Floor plans
Address and map
via Giovan Battista Vico, 10, Mondovì
Mortgage calculation
Selling price:
Advance
20,00
Mortgage
80,00
Rate: -+
Payment: 340 per month
The results are an indicative estimate based on the data entered and do not constitute a financial offer.
Advertiser

Baraldi Immobili
Corso Statuto 16 G, Mondovì
Show Phone
Show Mobile
Call
CONTACT

