Semi-detached house Via Giovanni Pacchioni, Cesena
€ 415.000Casa semindipendente in vendita
Cesena: nella ricercata zona Osservanza, quartiere residenziale molto amato dai cesenati, proponiamo porzione di bifamiliare sviluppata su tre livelli.
Si accede alla proprietà dalla strada principale, dove troviamo la corte che ospita sia il giardino sia lo scivolo che collega il retro della casa.
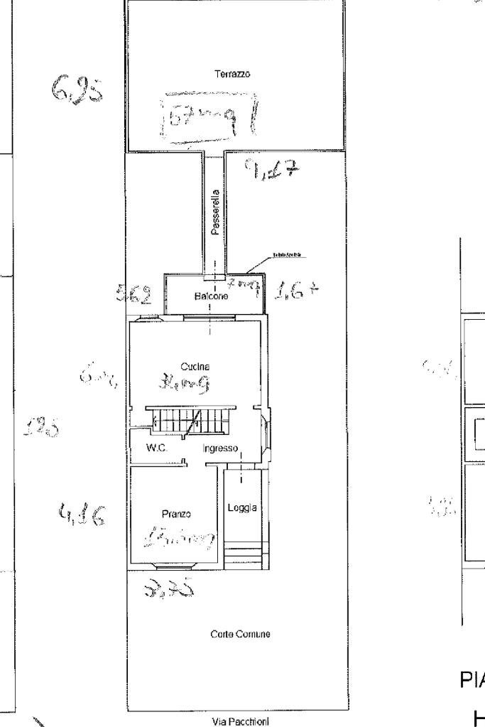
L'ingresso al piano rialzato ci accoglie al primo livello, con la cucina abitabile collegata ad un ampio terrazzo abitabile di circa 60mq, vero gioiello della dimora, perfetto per intrattenere gli ospiti nel periodo estivo e per godere appieno di uno sfogo esterno importante durante tutto l'anno. Il piano è completato dalla sala da pranzo, attualmente utilizzata come camera da letto matrimoniale, e da un bagno di servizio con doccia.
Salendo al piano primo la zona notte è composta da una camera da letto singola, una camera matrimoniale, il bagno padronale finestrato con vasca, un terrazzo e un balcone.
Al piano seminterrato, quello dei servizi, troviamo una grande taverna che allo stato attuale è adibita a bilocale, dotata quindi di cucina, bagno e camera da letto autonomi. Questa zona è resa ancora più interessante dalla possibilità di accedervi sia in maniera indipendente sia dall'interno dell'abitazione.
Fa parte della proprietà la dependance staccata dal corpo principale della dimora, già ristrutturata.
Per qualsiasi informazione o per fissare un appuntamento chiama lo 0547404341 o il 3382221610 o manda una mail a
Si accede alla proprietà dalla strada principale, dove troviamo la corte che ospita sia il giardino sia lo scivolo che collega il retro della casa.
L'ingresso al piano rialzato ci accoglie al primo livello, con la cucina abitabile collegata ad un ampio terrazzo abitabile di circa 60mq, vero gioiello della dimora, perfetto per intrattenere gli ospiti nel periodo estivo e per godere appieno di uno sfogo esterno importante durante tutto l'anno. Il piano è completato dalla sala da pranzo, attualmente utilizzata come camera da letto matrimoniale, e da un bagno di servizio con doccia.
Salendo al piano primo la zona notte è composta da una camera da letto singola, una camera matrimoniale, il bagno padronale finestrato con vasca, un terrazzo e un balcone.
Al piano seminterrato, quello dei servizi, troviamo una grande taverna che allo stato attuale è adibita a bilocale, dotata quindi di cucina, bagno e camera da letto autonomi. Questa zona è resa ancora più interessante dalla possibilità di accedervi sia in maniera indipendente sia dall'interno dell'abitazione.
Fa parte della proprietà la dependance staccata dal corpo principale della dimora, già ristrutturata.
Per qualsiasi informazione o per fissare un appuntamento chiama lo 0547404341 o il 3382221610 o manda una mail a
Main data
| Reference | 61149390 |
| Ad date | 13/12/2025 |
| Contract | Sale |
| Typology | Semi-detached house |
| Surface | 200 m2 |
| Locals | 3 (3 other), 3 bathrooms |
| Plan | 3 from 3 totals |
| Number of parking spaces | 1 |
Costs
| Price | 415.000 € |
| Price per m2 | 2.075 €/m2 |
Energy efficiency
| Year built | 1970 |
| Heating | Autonomous |
| Heating Power Type | Other |
| Energy rating | Property exempt from energy certification |
Floor plans
Video
Address and map
Via Giovanni Pacchioni, Cesena
Mortgage calculation
Selling price:
Advance
20,00
Mortgage
80,00
Rate: -+
Payment: 1.187 per month
The results are an indicative estimate based on the data entered and do not constitute a financial offer.
Advertiser
Call
CONTACT

