Independent house Via Lippi, Lastra a Signa
€ 550.000
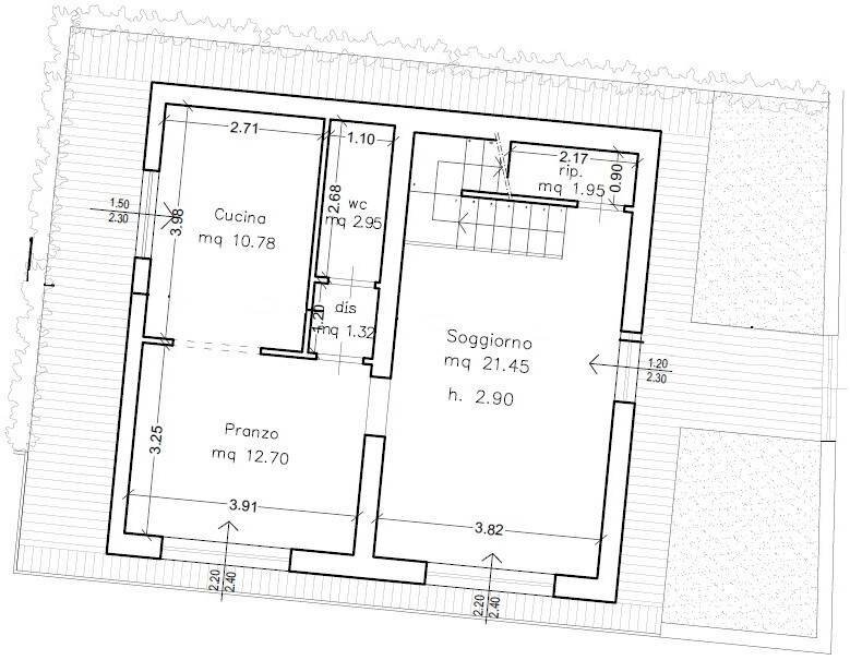
LASTRA A SIGNA, località "Malmantile", NUOVA COSTRUZIONE, inizio lavori Gennaio 2026! Nel pieno centro di Malmantile, in una strada interna, limitrofo a tutti i servizi, proponiamo questa opportunità unica per chi desidera un FIENILE da adibire a propria residenza. I lavori per il recupero integrale di questo immobile che porterà alla realizzazione di uno SPLENDIDO FIENILE disposto su due livelli per complessivi mq.140 (SUL) oltre resede esclusivo su 4 lati di complessivi mq.60 circa. Al piano terreno è prevista la realizzazione di un'ampia zona living composta da un soggiorno di mq.22, una zona pranzo di circa mq.12 ed una cucina separata di mq.10; vi sarà inoltre un ripostiglio sottoscala ed un bagno con antibagno. Al piano primo invece sono previste 3 camere, delle quali una con ampio vano guardaroba annesso, oltre disimpegno e secondo bagno. Completano la proprietà il resede esclusivo e due posti auto scoperti. La consegna è prevista per fine anno 2026 e vi è la possibilità di un pagamento dilazionato a stato avanzamento dei lavori. Naturalmente l'immobile sarà dotato di tutti i comfort, pannelli fotovoltaici compresi, e le finiture saranno tutte di prima scelta, permettendo così di avere un immobile in CLASSE A con bassissime spese di gestione. Per qualsiasi ulteriore informazione potete contattarci ai nostri recapiti e vi forniremo indicazioni anche sul capitolato delle opere previste. Rif.A0548_5, richiesta Euro 550.000,00 oltre I.V.A. 4% (prima casa) o 10% (seconda casa). www.francescoimmobiliare.it, Tel.055365812-0553249141.
Main data
| Reference | A0548_5 |
| Ad date | 13/12/2025 |
| Contract | Sale |
| Typology | Independent house |
| Surface | 140 m2 |
| Locals | more than 5 (3 bedrooms, 3 other), 2 bathrooms, kitchen habitable |
| Plan | 1 |
| Construction type | Signorile |
| Occupied | Free |
| Garage | Absent |
| Number of parking spaces | 2 |
Costs
| Price | 550.000 € |
| Price per m2 | 3.929 €/m2 |
Energy efficiency
| Heating | Autonomous |
| Heating Power Type | Photovoltaic |
| Energy rating | Property exempt from energy certification |
Floor plans
Address and map
Via Lippi, Lastra a Signa
Ad without map,
try asking the advertiser for the position
try asking the advertiser for the position
Mortgage calculation
Selling price:
Advance
20,00
Mortgage
80,00
Rate: -+
Payment: 1.573 per month
The results are an indicative estimate based on the data entered and do not constitute a financial offer.
Advertiser
Call
CONTACT


