Apartment Via delle Cappelle di Sopra, Calenzano
€ 590.000
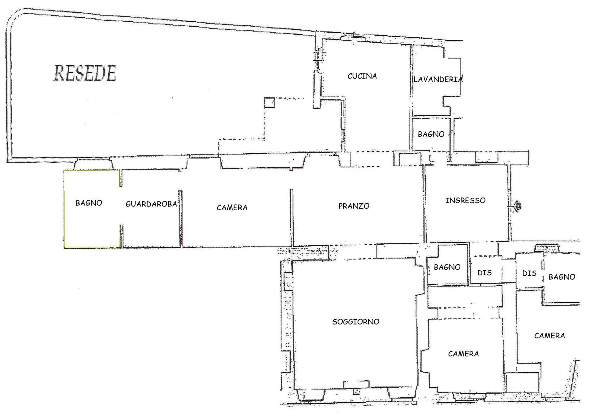
Settimello Alto, le Cappelle, in ex convento sconsacrato del 1700 proponiamo immerso nel verde in posizione dominante, caratteristico appartamento di mq.160 posto al piano terreno oltre giardino privato di mq.100, 3 posti auto esclusivi ed altri condominiali. Risulta composto da ampio soggiorno d'ingresso con accesso ad ulteriore soggiorno con affaccio sui giardini interni, cucina in muratura, soggiorno pranzo con accesso al giardino pavimentato, 3 servizi igienici, lavanderia, tre camere delle quali una padronale con guardaroba, servizio igienico esclusivo con doccia e vasca e sovrastante soppalco. Ottimamente ristrutturato, soffitti alti a volte, pavimenti in parquet. Inoltre riscaldamento singolo a pavimento, cancello elettrico, videocitofono, impianto allarme, porta blindata. Rif.A0397, richiesta euro 590.000,00 trattabili, Classe Energetica F, IPE 303,55 www.francescoimmobiliare.it tel.055365812-0553249141
Main data
| Reference | A0397 |
| Ad date | 13/12/2025 |
| Contract | Sale |
| Typology | Apartment |
| Surface | 160 m2 |
| Locals | more than 5 (3 bedrooms, 5 other), 3 bathrooms, kitchen habitable |
| Plan | Earth, 2 totals |
| Garage | Absent |
| Number of parking spaces | 3 |
| Furniture | Absent |
Costs
| Price | 590.000 € |
| Price per m2 | 3.688 €/m2 |
Energy efficiency
| Status | Excellent |
| Heating | Autonomous |
| Heating Power Type | Gpl |
| Energy rating | F |
| Energy Performance Index (IPE) | - |
Floor plans
Address and map
Via delle Cappelle di Sopra, Calenzano
Ad without map,
try asking the advertiser for the position
try asking the advertiser for the position
Mortgage calculation
Selling price:
Advance
20,00
Mortgage
80,00
Rate: -+
Payment: 1.687 per month
The results are an indicative estimate based on the data entered and do not constitute a financial offer.
Advertiser
Call
CONTACT


