Commercial Premises Via Verona, Sirmione
Private negotiation
rif. EB 035-491 Prestigioso Spazio Commerciale Fronte Strada con Ampio Parcheggio Privato Sirmione, Lago di Garda. Opportunità unica e introvabile nel cuore di una delle località più ambite del Lago di Garda. Proponiamo in vendita un importante spazio commerciale fronte strada, caratterizzato da uneccellente visibilità, accessibilità immediata e ampio parcheggio privato, elemento oggi raro e strategico per qualsiasi attività ad alto traffico. Caratteristiche principali Posizione premium a Sirmione, in area ad altissima affluenza turistica e residenziale. Immobile già strutturato ad uso commerciale con vetrine fronte strada. Parcheggio privato di ampie dimensioni, ideale per clienti e ospiti. Accessi comodi, ottima viabilità, vicinanza ai principali servizi. Plus per Investitori 1.000 mq Extra da SviluppareLimmobile rappresenta una straordinaria opportunità di sviluppo immobiliare: al primo e secondo piano sono disponibili ulteriori 1.000 m² da valorizzare con progetti ad alto rendimento. Possibili destinazioni: Residenziale di lusso Direzionale / uffici di rappresentanza Boutique Hotel o struttura ricettiva Il contesto, la superficie disponibile e la posizione strategica rendono questa proprietà ideale per operazioni immobiliari di prestigio, con un elevato potenziale di rivalutazione. Perché investire Location esclusiva in una delle mete turistiche più ricercate del Nord Italia Immobile unico sul mercato per visibilità, spazi e possibilità edificatorie Domanda crescente per strutture residenziali e ricettive di alta gamma Investimento con ottima prospettiva di rendimento e ampliamento del valore nel tempo. Disponibilità immediata Trattativa riservataPer investitori seri e qualificati. Contatto diretto su richiesta. Annuncio a carattere informativo e commerciale: i dati riportati non hanno valore contrattuale e possono essere soggetti a modifiche.
Main data
| Reference | 33091035-491 |
| Ad date | 13/12/2025 |
| Contract | Sale |
| Typology | Commercial Premises |
| Surface | 600 m2 |
| Locals | more than 5 (10 other), 3 bathrooms, kitchen not present |
| Plan | Earth, 1 totals |
| Occupied | Free |
| Garage | Single |
| Furniture | Complete |
Costs
| Price | Private negotiation |
Energy efficiency
| Status | Excellent |
| Heating | Autonomous |
| Heating Power Type | Electric |
| Energy rating | A1 |
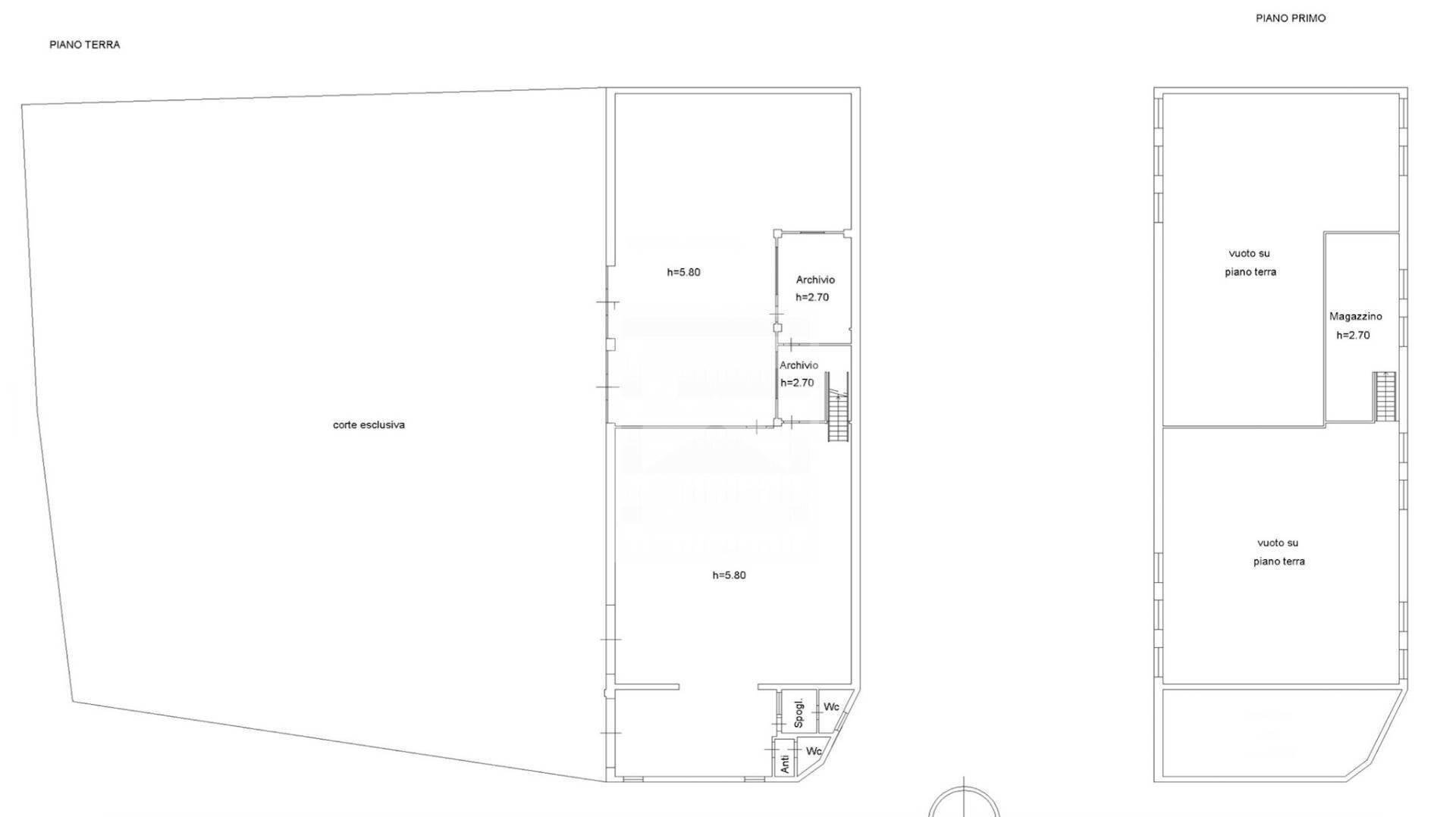
Floor plans
Virtual tour
Address and map
Via Verona, Sirmione
Ad without map,
try asking the advertiser for the position
try asking the advertiser for the position
Advertiser
Call
CONTACT


