Semi-detached house Tetti corniglia, Marentino
€ 185.000Casa semindipendente in vendita
Fra le colline di Marentino, per la precisione in località Vernone, proponiamo in vendita una porzione di casa libera su due lati. Disposta su più livelli.
L’immobile gode di una posizione dominante e di una vista panoramica su tutta la valle circostante oltre ad essere ottimamente esposta. Rimanendo non lontana dai principali servizi che offrono Chieri e Gassino.
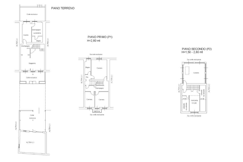
L’ingresso al piano terreno permette di accedere direttamente al luminoso soggiorno con zona pranzo che è caratterizzato da un piacevole camino a legna. Il disimpegno divide questo ambiente alla cucina abitabile. Completa il piano una comoda lavanderia utilizzabile anche come zona armadi, da cui si può accedere al patio e giardino esterno, ed un primo bagno con doccia.
La scala interna in muratura conduce al piano primo, dedicato alla zona notte, formata da tre camere da letto di ottima metratura e un secondo bagno finestrato anch’esso con doccia.
Al secondo piano dell’abitazione è presente un ulteriore camera di 26 mq. Un ambiente confortevole, adatto ad ogni utilizzo, caratterizzato da grandi finestre da cui poter ammirare la vista ed avere un ambiente luminoso. Oltre che ad ulteriori locali utilizzabili secondo le proprie esigenze.
Da questo ambiente è possibile accedere al terrazzo panoramico di circa 30 mq.
L'immobile stato oggetto di una ristrutturazione nel 2019 che ha riguardato la sostituzione della caldaia a metano e al rifacimento dell’impianto elettrico ed idraulico. Oltre che alla revisione del tetto.
I serramenti sono in PVC con doppio vetro e sono state installate le persiane alleggerite sull'ultimo piano.
All’esterno dell’abitazione troviamo dei locali di ampia metratura adatti ad essere usati come magazzino o posto auto.
La proprietà è inoltre dotata di impianto di videosorveglianza collegata anche a smartphone, impianto satellitare, allacciamento alla rete fognaria comunale.
L’immobile gode di una posizione dominante e di una vista panoramica su tutta la valle circostante oltre ad essere ottimamente esposta. Rimanendo non lontana dai principali servizi che offrono Chieri e Gassino.
L’ingresso al piano terreno permette di accedere direttamente al luminoso soggiorno con zona pranzo che è caratterizzato da un piacevole camino a legna. Il disimpegno divide questo ambiente alla cucina abitabile. Completa il piano una comoda lavanderia utilizzabile anche come zona armadi, da cui si può accedere al patio e giardino esterno, ed un primo bagno con doccia.
La scala interna in muratura conduce al piano primo, dedicato alla zona notte, formata da tre camere da letto di ottima metratura e un secondo bagno finestrato anch’esso con doccia.
Al secondo piano dell’abitazione è presente un ulteriore camera di 26 mq. Un ambiente confortevole, adatto ad ogni utilizzo, caratterizzato da grandi finestre da cui poter ammirare la vista ed avere un ambiente luminoso. Oltre che ad ulteriori locali utilizzabili secondo le proprie esigenze.
Da questo ambiente è possibile accedere al terrazzo panoramico di circa 30 mq.
L'immobile stato oggetto di una ristrutturazione nel 2019 che ha riguardato la sostituzione della caldaia a metano e al rifacimento dell’impianto elettrico ed idraulico. Oltre che alla revisione del tetto.
I serramenti sono in PVC con doppio vetro e sono state installate le persiane alleggerite sull'ultimo piano.
All’esterno dell’abitazione troviamo dei locali di ampia metratura adatti ad essere usati come magazzino o posto auto.
La proprietà è inoltre dotata di impianto di videosorveglianza collegata anche a smartphone, impianto satellitare, allacciamento alla rete fognaria comunale.
Main data
| Reference | 61151779 |
| Ad date | 10/12/2025 |
| Contract | Sale |
| Typology | Semi-detached house |
| Surface | 216 m2 |
| Locals | more than 5 (6 other), 2 bathrooms |
| Plan | 3 from 3 totals |
Costs
| Price | 185.000 € |
| Price per m2 | 856 €/m2 |
Energy efficiency
| Year built | 1950 |
| Heating | Autonomous |
| Heating Power Type | Methane |
| Energy rating | D |
| Energy Performance Index (IPE) | - |
Floor plans
Video
Address and map
Tetti corniglia, Marentino
Mortgage calculation
Selling price:
Advance
20,00
Mortgage
80,00
Rate: -+
Payment: 529 per month
The results are an indicative estimate based on the data entered and do not constitute a financial offer.
Advertiser
Call
CONTACT

