Villa via Piscinola, Spigno Saturnia
€ 230.000In vendita a Spigno Saturnia – Elegante villa immersa nel ve
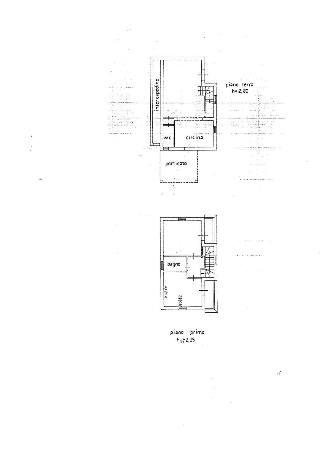
Proponiamo in vendita a Spigno Saturnia una splendida villa di 160 mq, circondata da un ampio giardino privato di 2.500 mq con uliveto, ideale per chi desidera vivere in un contesto tranquillo e a stretto contatto con la natura. L’immobile, disposto su due livelli, è così composto: Piano Terra •Ampio salone con termo-camino •Cucina rustica con forno a legna •Bagno con antibagno •Comodo porticato con area barbecue •Cantina/ripostiglio •Porticato di 20 mq Piano Primo •Ingresso •Due camere da letto •Bagno •Due terrazzini con affaccio sul verde La villa presenta ottime rifiniture, realizzate con materiali di pregio, ed è termoautonoma e dotata di termo-camino. Soluzione ideale per chi cerca privacy, relax e un’abitazione accogliente in un ambiente naturale e riservato. Agenzia Immobiliare MediocasaFormia Rif. S30 *La presente scheda non costituisce forma di contratto, le informazioni qui contenute sono da ritenersi del tutto indicative e non potranno essere utilizzate come parte integrante di un eventuale contratto di vendita o locazione della proprietà. La presente non vincola in alcun modo la società.
Main data
| Reference | S30 |
| Ad date | 05/12/2025 |
| Contract | Sale |
| Typology | Villa |
| Surface | 168 m2 |
| Locals | 5 (2 bedrooms, 3 other), 2 bathrooms, kitchen habitable |
| Plan | 2 totals |
| Number of terraces | 1 |
| Number of balconies | 1 |
| Garage | Absent |
| Furniture | Absent |
Costs
| Price | 230.000 € |
| Price per m2 | 1.369 €/m2 |
Energy efficiency
| Year built | 1991 |
| Status | Good |
| Heating | Autonomous |
| Energy rating | Property exempt from energy certification |
Floor plans
Address and map
via Piscinola, Spigno Saturnia
Mortgage calculation
Selling price:
Advance
20,00
Mortgage
80,00
Rate: -+
Payment: 658 per month
The results are an indicative estimate based on the data entered and do not constitute a financial offer.
Advertiser

Immobiliare Stefanelli
VIA Santo JANNI 6, Formia
Show Phone
Show Mobile
Call
CONTACT

