Stable - Palace via Tonale, 10, Samarate
€ 700.000FABBRICATO ARTIGIANALE CON UFFICI ED APPARTAMENTO
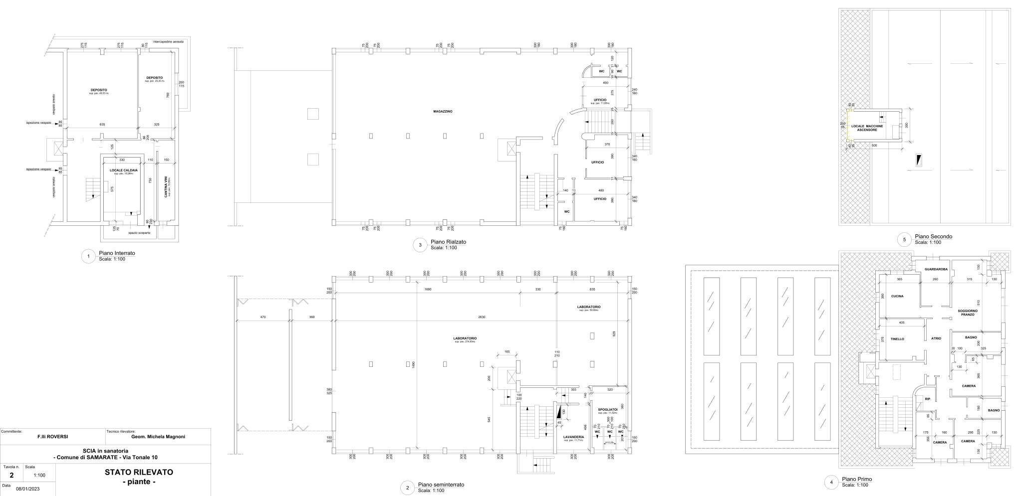
La soluzione ideale per le PMI, gli studi professionali, i centri medici oppure per le aziende familiari che intendessero scegliere di trasferirsi in una posizione eccellente sotto il profilo viabilistico e di rappresentanza! Una soluzione efficiente in cui godere di spazi funzionalmente predisposti, da personalizzare nel design e nel layout secondo le proprie peculiari esigenze! L'architettura tipica degli anni 70 concederà al nuovo proprietario, a seguito di un intervento di riqualificazione ed efficientamento energetico, di poter godere di ampi spazi, oggi, così distribuiti: - LABORATORIO al piano terra di 400 mq dotato di ampie e luminose finestrature perimetrali (Altezza utile 3,5 metri) - UFFICI al piano rialzato di 100 mq. con un MAGAZZINO di 300 mq dotato di ampi lucernari da cui deriva una straordinaria illuminazione naturale (Altezza utile: 3 metri) - APPARTAMENTO al 1° piano di 190 mq con terrazza di 100 mq, - DEPOSITO DI SERVIZIO nell'interrato di 150 mq in cui oggi troviamo: il locale impianti, l'attrezzeria, un ripostiglio ed una cantinetta vini Alla proprietà privata adibita ad uso piazzale, parcheggio auto e giardino, si accede mediante due cancelli carrabili.
Main data
| Reference | ID2925627 |
| Ad date | 28/07/2025 |
| Contract | Sale |
| Typology | Stable - Palace |
| Surface | 1220 m2 |
| Plan | 4 totals |
| Construction type | Average |
| Number of balconies | 1 |
| Number of parking spaces | 4 |
Costs
| Price | 700.000 € |
| Price per m2 | 574 €/m2 |
Energy efficiency
| Year built | 1976 |
| Status | To be restored |
| Heating | Autonomous |
| Energy rating | E |
| Energy Performance Index (IPE) | 175 kWh/m2 year |
Floor plans
Address and map
via Tonale, 10, Samarate
Ad without map,
try asking the advertiser for the position
try asking the advertiser for the position
Mortgage calculation
Selling price:
Advance
20,00
Mortgage
80,00
Rate: -+
Payment: 2.002 per month
The results are an indicative estimate based on the data entered and do not constitute a financial offer.
Advertiser

So.ge.i.com. srl
Via Feltrina, Treviso
Show Phone
Call
CONTACT

