Villa via Poggio alla Cuna snc, Londa
€ 370.000
Londa, località Rincine, vendesi villa singola libera su quattro lati in posizione panoramica.
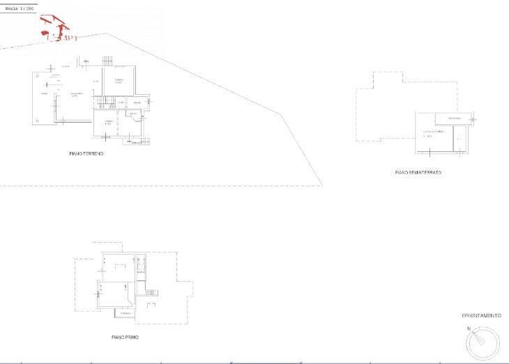
E' composta da ingresso da loggiato esterno, grande open-space dal quale si accede al piano seminterrato con locale tecnico e ripostiglio. Al piano primo si trovano due camere e due bagni. Al secondo ed ultimo piano ci sono altri due vani ed un bagno.
Completano la proprietà la piscina e il terreno circostante di circa mq.5.000
Immobile ristrutturato con ottime finiture, come l'impianto di riscaldamento a legna e biomasse, e pompe di calore in tutto l'immobile.
Euro 370.000 GA94
E' composta da ingresso da loggiato esterno, grande open-space dal quale si accede al piano seminterrato con locale tecnico e ripostiglio. Al piano primo si trovano due camere e due bagni. Al secondo ed ultimo piano ci sono altri due vani ed un bagno.
Completano la proprietà la piscina e il terreno circostante di circa mq.5.000
Immobile ristrutturato con ottime finiture, come l'impianto di riscaldamento a legna e biomasse, e pompe di calore in tutto l'immobile.
Euro 370.000 GA94
Main data
| Reference | GA94 |
| Ad date | 04/12/2025 |
| Contract | Sale |
| Typology | Villa |
| Surface | 260 m2 |
| Locals | 5 (4 bedrooms, 1 other), 3 bathrooms, kitchen on sight |
| Plan | Earth, 2 totals |
| Construction type | Popular |
| Occupied | Free |
| Garage | Absent |
| Number of parking spaces | 10 |
| Furniture | Partial |
Costs
| Price | 370.000 € |
| Price per m2 | 1.423 €/m2 |
Energy efficiency
| Status | Good |
| Heating | Autonomous |
| Heating System Type | by air |
| Heating Power Type | Pellets |
| Energy rating | D |
| Energy Performance Index (IPE) | - |
Floor plans
Address and map
via Poggio alla Cuna
snc, Londa
Ad without map,
try asking the advertiser for the position
try asking the advertiser for the position
Mortgage calculation
Selling price:
Advance
20,00
Mortgage
80,00
Rate: -+
Payment: 1.058 per month
The results are an indicative estimate based on the data entered and do not constitute a financial offer.
Advertiser
Call
CONTACT


