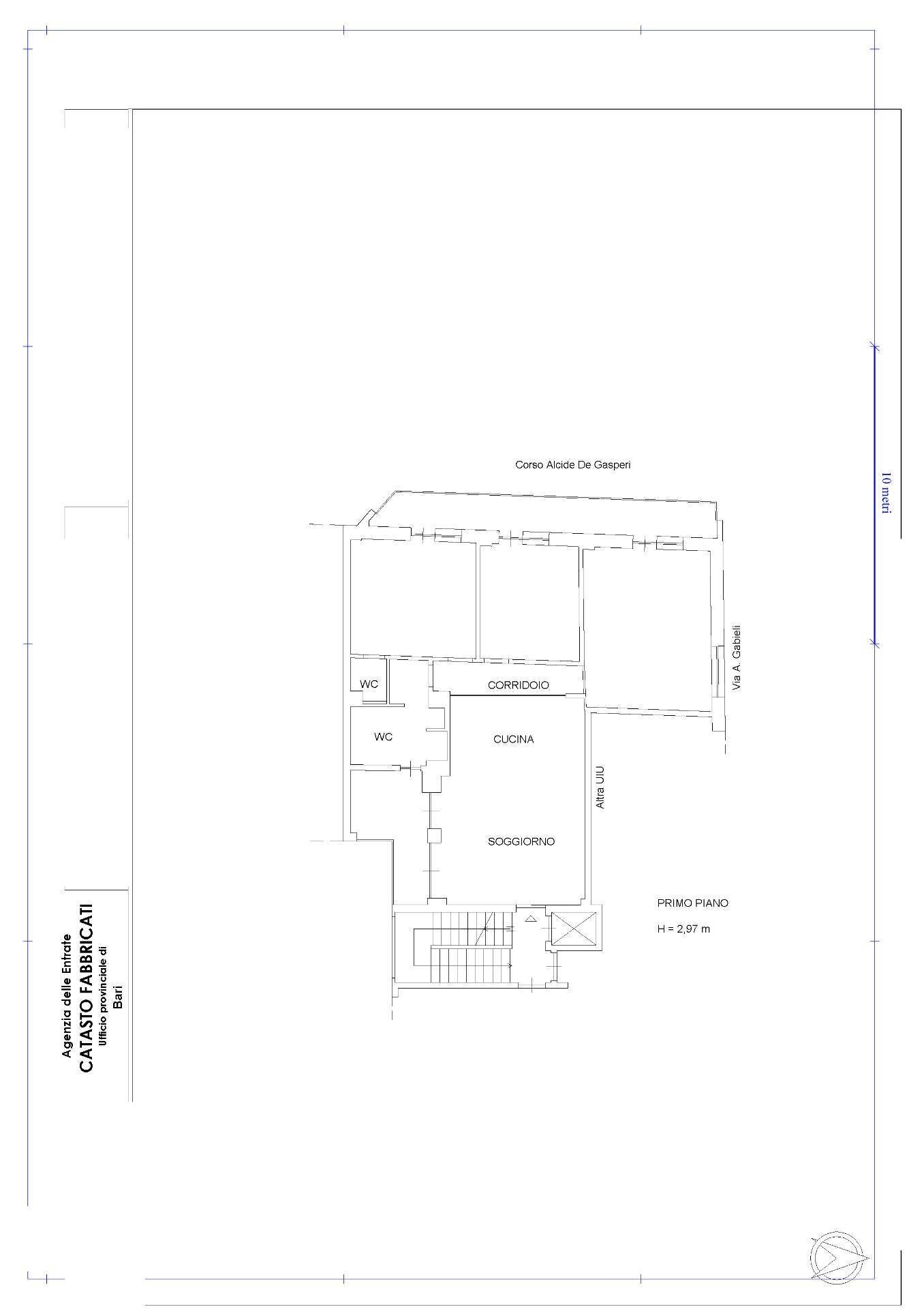
Four-room apartment Via Andrea Gabrieli 7, Bari
€ 330.000
Quadrivani ristrutturato con finiture di qualità. Vicinanze parco. Disponibile il virtual tour sul nostro sito. Contattaci per visionare l'immobile. INTERNO: Appartamento di 120 mq composto da ingresso in open space con angolo cottura; ampia camera da letto con esposizione angolare attualmente a uso studio/soggiorno; camera da letto matrimoniale con bagno di servizio privato; camera da letto singola con affaccio su balcone; bagno padronale con aerazione naturale e dotato di doccia e vasca. FINITURE: Pavimentazione in parquet rovere naturale. Infissi Oknoplast a taglio termico con doppio vetro, in alluminio antracite nella zona giorno e nei bagni, in pvc bianco nelle camere. Avvolgibili ad apertura elettrica con cassonetti coibentati a filo parete. Porta di ingresso blindata, porte interne a filo muro. Porta della Ferrero Legno in alluminio e vetro grigio per la suddivisione tra zona giorno e zona notte. Controsoffitti con illuminazione integrata, dotati sia di faretti a incasso che di strip led per ottenere diversi scenari di illuminazione. Riscaldamento autonomo con caldaia a condensazione. Termoarredi di design della Irsap. Impianto di climatizzazione caldo/freddo da 18.000 BTU. APE in fase di valutazione. L'immobile è stato completamente ristrutturato nel 2022. ESTERNO: Appartamento al primo piano in uno stabile di sei piani, dotato di ascensore. L'edificio nel 2018 è stato oggetto di interventi di ristrutturazione. Tripla esposizione con balconi per un totale di 21 mq di superficie esterna. POSIZIONE: 150 metri dal Parco 2 Giugno. In prossimità di servizi, scuole e attività commerciali. 1,5 Km dagli accessi alla tangenziale. PUNTI DI FORZA: Appartamento recentemente ristrutturato con finiture di qualità. Posizione, vicinanze parco, servizi e attività commerciali. Tripla esposizione.
Main data
| Reference | Quadrivani_Via_Gabrieli |
| Ad date | 04/12/2025 |
| Contract | Sale |
| Typology | Apartment |
| Surface | 127 m2 |
| Locals | 4 (3 bedrooms, 1 other), 2 bathrooms, kitchen kitchenette |
| Plan | 1 from 6 totals |
| Construction type | Average |
| Garage | Absent |
| Furniture | Absent |
Costs
| Price | 330.000 € |
| Price per m2 | 2.598 €/m2 |
Energy efficiency
| Status | Partially restored |
| Heating | Autonomous |
| Energy rating | D |
| Energy Performance Index (IPE) | - |
Floor plans
Virtual tour
Address and map
Via Andrea Gabrieli
7, Bari
Ad without map,
try asking the advertiser for the position
try asking the advertiser for the position
Mortgage calculation
Selling price:
Advance
20,00
Mortgage
80,00
Rate: -+
Payment: 944 per month
The results are an indicative estimate based on the data entered and do not constitute a financial offer.
Advertiser

Areachiara Immobiliare s.r.l.
Via Sparano da Bari 103, Bari
Show Phone
Show Mobile
Call
CONTACT

