Three-room apartment Quargnento
€ 65.000
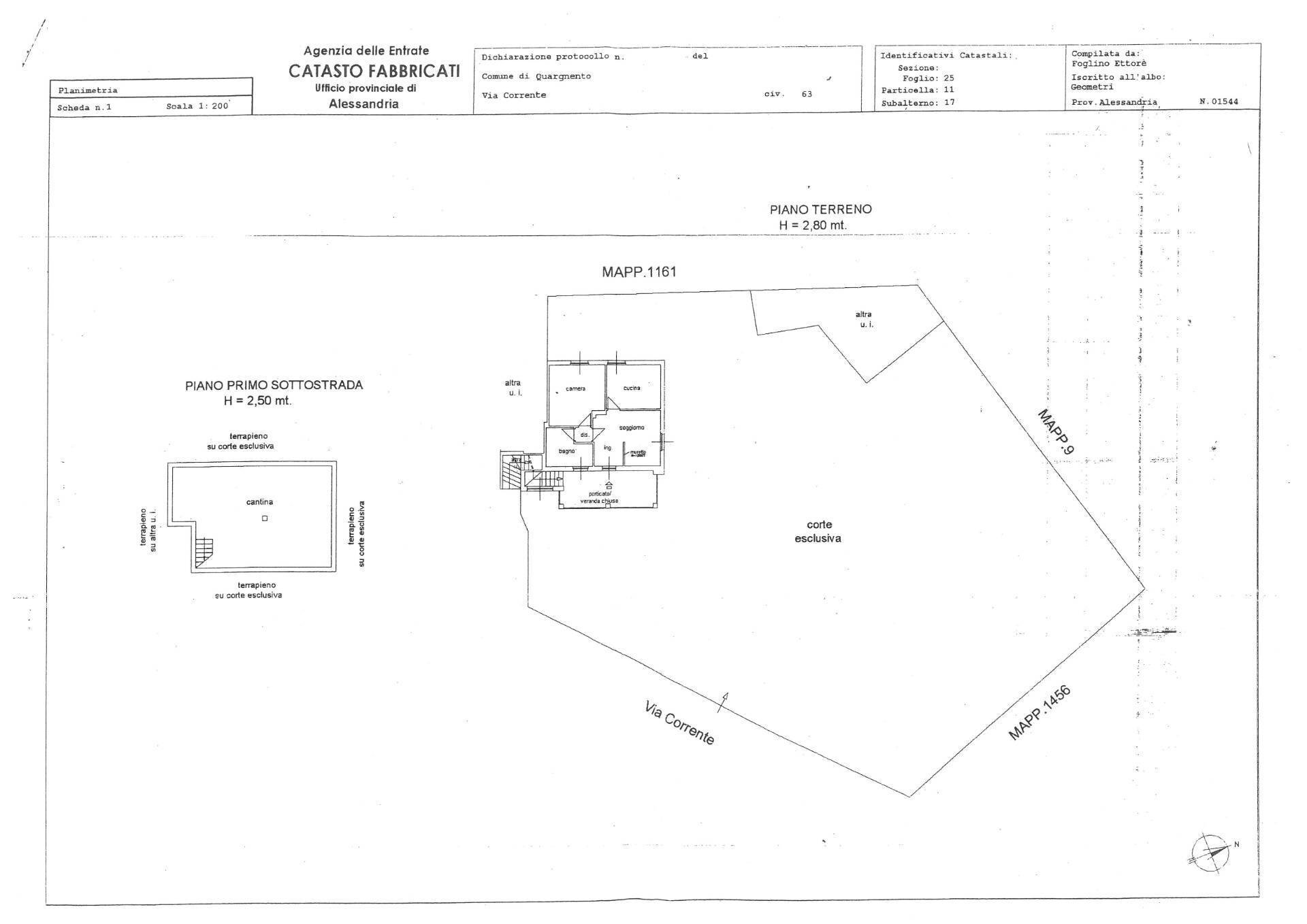
QUARGNENTO (AL): Nel bellissimo paese di Quargnento, in una zona verdeggiante ed a pochi km da Alessandria, vi si propone in un piccolo contesto di solo 3 unità abitative, Appartamento al Piano Terra. Appartamento in ottime condizioni e composto da: Ingresso, sala ampia, cucina abitabile, camera da letto matrimoniale, bagno finestrato con box doccia e ampia veranda esterna. Presente ampia cantina della stessa metratura dell'appartamento. POSSIBILITA' acquisto terreno adiacente di circa 1000 mq e comprensivo di: AMPIO BOX AUTO e TAVERNA ESTERNA sfruttabile come locale hobby per ricevere amici e parenti, presente anche un cucinino. Presenti: PANNELLI SOLARI, POZZO PRIVATO, CALDAIA A CONDENSAZIONE. NO SPESE DI CONDOMINIO. LIBERO SUBITO! CLASSE "E" 165.83 kWh/m2 . 65 MILA TRATTABILE RIF. 102 PER INFO E VISITE CONTATTARE GIERRE IMMOBILIARE 0131218521
Main data
| Reference | 102 |
| Ad date | 04/12/2025 |
| Contract | Sale |
| Typology | Apartment |
| Surface | 70 m2 |
| Locals | 3 (1 bedroom, 2 other), 1 bathroom, kitchen habitable |
| Plan | Earth |
| Construction type | Average |
| Occupied | Free |
| Garage | Single |
Costs
| Price | 65.000 € |
| Price per m2 | 929 €/m2 |
Energy efficiency
| Status | Excellent |
| Heating | Autonomous |
| Energy rating | E |
| Energy Performance Index (IPE) | 165 kWh/m2 year |
Floor plans
Address and map
Quargnento
Ad without map,
try asking the advertiser for the position
try asking the advertiser for the position
Mortgage calculation
Selling price:
Advance
20,00
Mortgage
80,00
Rate: -+
Payment: 186 per month
The results are an indicative estimate based on the data entered and do not constitute a financial offer.
Advertiser

Eurocasa Gierre Immobiliare
Corso Acqui 83, Alessandria
Show Phone
Show Mobile
Call
CONTACT

