Three-room apartment Via appalto, Soliera
€ 174.000Trilocale in vendita
Ad Appalto proponiamo appartamento al piano terra con ampio giardino privato, situato in una piccola palazzina in facciavista costruita negli anni 2000.
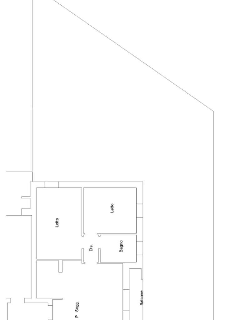
L'interno si compone di un soggiorno con angolo cottura, un bagno con doccia, un disimpegno notte e due camere da letto.
L'immobile è dotato di numerosi comfort, tra cui una caldaia autonoma, impianto di aria condizionata, cancelli di sicurezza su tutti gli infissi esterni, oltre a un’autorimessa di proprietà e un posto auto privato nell'area cortiliva della palazzina.
L'interno si compone di un soggiorno con angolo cottura, un bagno con doccia, un disimpegno notte e due camere da letto.
L'immobile è dotato di numerosi comfort, tra cui una caldaia autonoma, impianto di aria condizionata, cancelli di sicurezza su tutti gli infissi esterni, oltre a un’autorimessa di proprietà e un posto auto privato nell'area cortiliva della palazzina.
Main data
| Reference | 61148055 |
| Ad date | 29/11/2025 |
| Contract | Sale |
| Typology | Apartment |
| Surface | 105 m2 |
| Locals | 3 (3 other), 1 bathroom |
| Plan | 1 from 2 totals |
Costs
| Price | 174.000 € |
| Price per m2 | 1.657 €/m2 |
| Condominium fees | €58,00/month |
Energy efficiency
| Year built | 2008 |
| Heating | Autonomous |
| Heating Power Type | Methane |
| Energy rating | D |
| Energy Performance Index (IPE) | - |
Floor plans
Video
Address and map
Via appalto, Soliera
Mortgage calculation
Selling price:
Advance
20,00
Mortgage
80,00
Rate: -+
Payment: 498 per month
The results are an indicative estimate based on the data entered and do not constitute a financial offer.
Advertiser
Call
CONTACT

