Commercial Premises Via Alfred Bernhard Nobel, Parma
€ 750.000Capannone / Fondo - Industriale/Artigianale a Parma
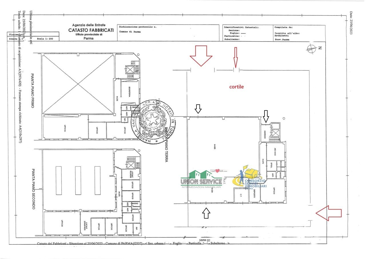
Parma all'interno del q.re industriale SPIP di via Forlanini, a due passi dal casello autostradale di Parma centro, proponiamo la vendita di un immobile industriale/artigianale in cat. D/7 costruito negli anni 2000. Attualmente in uso al proprietario, l'immobile viene venduto libero a 2 mesi. Trattasi di porzione angolare di testa libera su 3 lati , con area cortilizia recintata privata in proprietà, completamente pavimentata di circa 700 mq. con 2 ingressi carrai e uno pedonale Il plesso si trova in ottimo stato d'uso, senza barriere, con ascensore interno , ingressi distinti fra zona uffici e zona produttiva. - Piano terra, porzione ad uso magazzino/produttivo estremamente luminoso con altezza di 6,85 m per complessivi mq. 400 riscaldati e finestrature motorizzate oltre a locali deposito,laboratori,doppi servizi con spoglitoi,archivi e locale macchine per ulteriori mq 160. - Piano Primo con eleganti ed arredati uffici, di 270 mq con reception e 6 vampi vani oltre i doppi servizi - Piano secondo;ulteriori uffici dirigenziali arredati di 270 mq con ulteriori 9 ampie stanze di cui una sala riunioni e doppi servizi. Entrambi i piani uffcio sono asserviti da un elegante ingresso indipendente dal quale si accede all'ascensore, impianto caldo/freddo ad aria , cablaggi, controsoffitti,doppi vetri. Per informazioni e visite Union Service tel.3357708359
Main data
| Reference | 10903 |
| Ad date | 26/11/2025 |
| Contract | Sale |
| Typology | Commercial Premises |
| Surface | 1200 m2 |
| Locals | more than 5 (15 other), 6 bathrooms |
| Plan | 1 totals |
| Number of terraces | 1 |
| Number of parking spaces | 1 |
Costs
| Price | 750.000 € |
| Price per m2 | 625 €/m2 |
Energy efficiency
| Year built | 2002 |
| Energy rating | F |
Floor plans
Address and map
Via Alfred Bernhard Nobel, Parma
Mortgage calculation
Selling price:
Advance
20,00
Mortgage
80,00
Rate: -+
Payment: 2.145 per month
The results are an indicative estimate based on the data entered and do not constitute a financial offer.
Advertiser

Union Service srl
Via Capelluti 6/C, Parma
Show Phone
Show Mobile
Call
CONTACT

