Three-room apartment Via Giovanni Pascoli, Bra
€ 94.000Trilocale in vendita
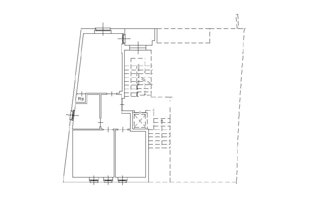
Proponiamo in vendita a Bra un trilocale completamente ristrutturato, situato al piano rialzato di una palazzina tranquilla.
L’ingresso si apre su un comodo disimpegno che conduce a tutti gli ambienti della casa.
È presente una cucina abitabile con accesso al balcone e al ripostiglio, un salotto luminoso, una spaziosa camera da letto matrimoniale, una cameretta singola e un bagno finestrato.
A completare la proprietà troviamo la cantina e il box auto ubicati al piano seminterrato.
L’alloggio è attualmente locato, caratteristica che lo rende una soluzione ideale per chi desidera effettuare un investimento già a reddito.
L’ingresso si apre su un comodo disimpegno che conduce a tutti gli ambienti della casa.
È presente una cucina abitabile con accesso al balcone e al ripostiglio, un salotto luminoso, una spaziosa camera da letto matrimoniale, una cameretta singola e un bagno finestrato.
A completare la proprietà troviamo la cantina e il box auto ubicati al piano seminterrato.
L’alloggio è attualmente locato, caratteristica che lo rende una soluzione ideale per chi desidera effettuare un investimento già a reddito.
Main data
| Reference | 61147588 |
| Ad date | 28/11/2025 |
| Contract | Sale |
| Typology | Apartment |
| Surface | 75 m2 |
| Locals | 3 (3 other), 1 bathroom |
| Plan | 1 from 5 totals |
Costs
| Price | 94.000 € |
| Price per m2 | 1.253 €/m2 |
| Condominium fees | €142,00/month |
Energy efficiency
| Year built | 1968 |
| Heating | Centralized |
| Heating Power Type | Methane |
| Energy rating | F |
| Energy performance index (EP GL, REN ) | 147.67 kWh/m3 year |
| Energy performance index (EP GL, NREN ) | 388.91 kWh/m3 year |
Floor plans
Video
Address and map
Via Giovanni Pascoli, Bra
Mortgage calculation
Selling price:
Advance
20,00
Mortgage
80,00
Rate: -+
Payment: 269 per month
The results are an indicative estimate based on the data entered and do not constitute a financial offer.
Advertiser
Call
CONTACT

