Two-room apartment Via Eugenio Montale 25, Rho
€ 170.000
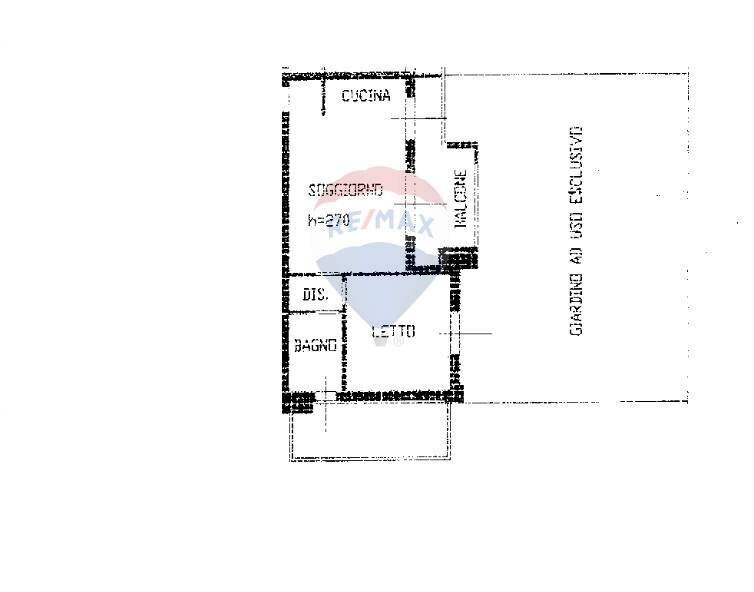
REMAX IMMOBILIARE PROPONE IN VENDITA In Via Eugenio Montale 25, nel cuore di una delle zone residenziali più tranquille e ricercate di Rho, proponiamo in vendita un elegante appartamento di 66 mq situato al piano terra di una palazzina moderna e ben tenuta. Labitazione si distingue per la perfetta combinazione tra comfort, funzionalità e spazi esterni: un ampio giardino ad uso esclusivo di oltre 100 mq regala la possibilità di vivere momenti di relax allaria aperta, organizzare pranzi con amici o creare un angolo verde riservato, lontano dal caos cittadino. Allinterno, lingresso accoglie in un luminoso soggiorno con altezza di 2,70 metri, arricchito da ampie finestre che donano luce naturale durante tutto il giorno. La cucina a vista, pratica e ben organizzata, si affaccia direttamente sul portico coperto, perfetto per cene estive o per rilassarsi ammirando il proprio giardino. La zona notte, ben separata, ospita una spaziosa camera da letto matrimoniale, un bagno finestrato e un disimpegno funzionale che garantisce privacy e ordine agli ambienti, caratterizzato da zona lavanderia nascosta in una armadiatura. A completare la proprietà troviamo una cantina e un box singolo di 16 mq situato al piano seminterrato, ideale anche per chi desidera uno spazio aggiuntivo per moto o scaffalature. La posizione è un vero punto di forza: la via è riservata e silenziosa, ma al tempo stesso vicina a tutti i principali servizi. Nelle immediate vicinanze si trovano supermercati, scuole, farmacie e il centro commerciale Rho Center, oltre a parchi pubblici e aree verdi ideali per il tempo libero. I collegamenti sono eccellenti grazie alla vicinanza della stazione ferroviaria di Rho, delle linee bus e delle principali arterie stradali come la Tangenziale Ovest e lautostrada A4, che consentono di raggiungere Milano in pochi minuti. Limmobile è libero al rogito e rappresenta la soluzione ideale per chi desidera vivere in un contesto sereno, con tutti i comfort a portata di mano e uno spazio esterno esclusivo da godere in ogni stagione. Devi vendere o affittare un immobile? Contattaci! Facciamo parte del Network Immobiliare n.1 al Mondo e con le nostre agenzie e i nostri Consulenti affiliati saremo in grado di valorizzare al massimo il tuo immobile, seguendoti con professionalità ed impegno fino alla fine alle migliori condizioni, con le migliori garanzie e le tempistiche più adatte alle tue esigenze. Ci trovi anche su Facebook e su Instagram, cerca le nostre pagine e seguici! Informazioni, immagini e video contenute in questo annuncio hanno scopo prettamente informativo e non costituiscono, in alcun caso, elemento contrattuale. APE: CLASSE ENERGETICA A 90,20
Main data
| Reference | 37821066-34 |
| Ad date | 27/11/2025 |
| Contract | Sale |
| Typology | Apartment |
| Surface | 66 m2 |
| Locals | 2 (1 bedroom, 1 other), 1 bathroom, kitchen on sight |
| Plan | Earth |
| Occupied | Free |
| Garage | Single |
| Furniture | Partial |
Costs
| Price | 170.000 € |
| Price per m2 | 2.576 €/m2 |
Energy efficiency
| Status | Excellent |
| Heating | Centralized |
| Heating Power Type | Other |
| Energy rating | A2 |
Floor plans
Address and map
Via Eugenio Montale
25, Rho
Ad without map,
try asking the advertiser for the position
try asking the advertiser for the position
Mortgage calculation
Selling price:
Advance
20,00
Mortgage
80,00
Rate: -+
Payment: 486 per month
The results are an indicative estimate based on the data entered and do not constitute a financial offer.
Advertiser

RE/MAX Next
Viale Abruzzi, 92, Milano
Show Mobile
Call
CONTACT

