

Warehouse Savona
€ 130.000
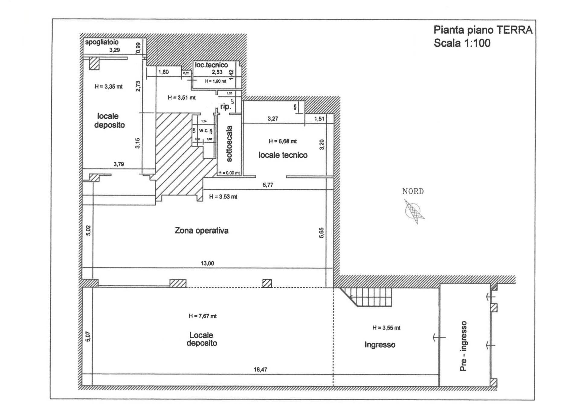
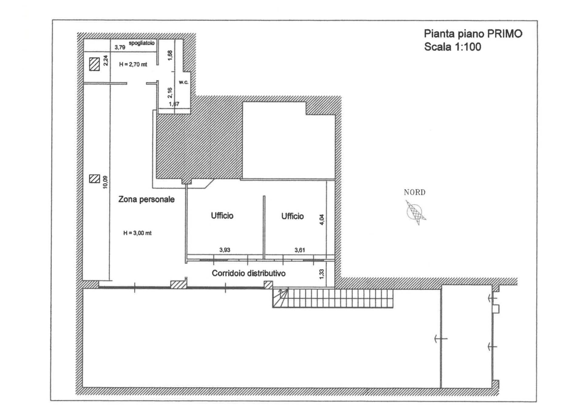
IDEALE ARTIGIANO AMPIA METRATURA 5 LOCALI Giannetto Immobiliare propone ampio magazzino soppalcato con ingresso carraio ed ingresso pedonale PIANO TERRA ___ deposito, zona operativa, altri depositi, bagno per un totale di 215 mq PIANO PRIMO ___ soppalco collegato da scala interna destinato attualmente ad uffici, zona spogliatoi e un bagno con doccia per un totale di circa 110 mq Serranda motorizzata PLANIMETRIE NELLE ULTIME FOTO POSSIBILITA' DI TRASFORMAZIONE IN AUTORIMESSA ANCHE PARZIALE Contattateci senza impegno per avere maggiori informazioni o per fissare una visita dellimmobile 019.84.29.869 - 349.67.43.593
Main data
| Reference | F16-1530 |
| Ad date | 26/11/2025 |
| Contract | Sale |
| Typology | Warehouse |
| Surface | 325 m2 |
| Locals | 2 (2 other) |
| Plan | On several levels, 5 totals |
Costs
| Price | 130.000 € |
| Price per m2 | 400 €/m2 |
Energy efficiency
| Status | Excellent |
| Heating Power Type | Other |
| Energy rating | Property exempt from energy certification |
Address and map
Savona
Ad without map,
try asking the advertiser for the position
try asking the advertiser for the position
Mortgage calculation
Selling price:
Advance
20,00
Mortgage
80,00
Rate: -+
Payment: 372 per month
The results are an indicative estimate based on the data entered and do not constitute a financial offer.
Advertiser

Studio Immobiliare Giannetto sas di Paolo Giannetto & C.
San Lorenzo, 50 E, Savona
Show Phone
Show Mobile
Call
CONTACT