Three-room apartment Via San Pio X snc, San Benedetto del Tronto
€ 385.000
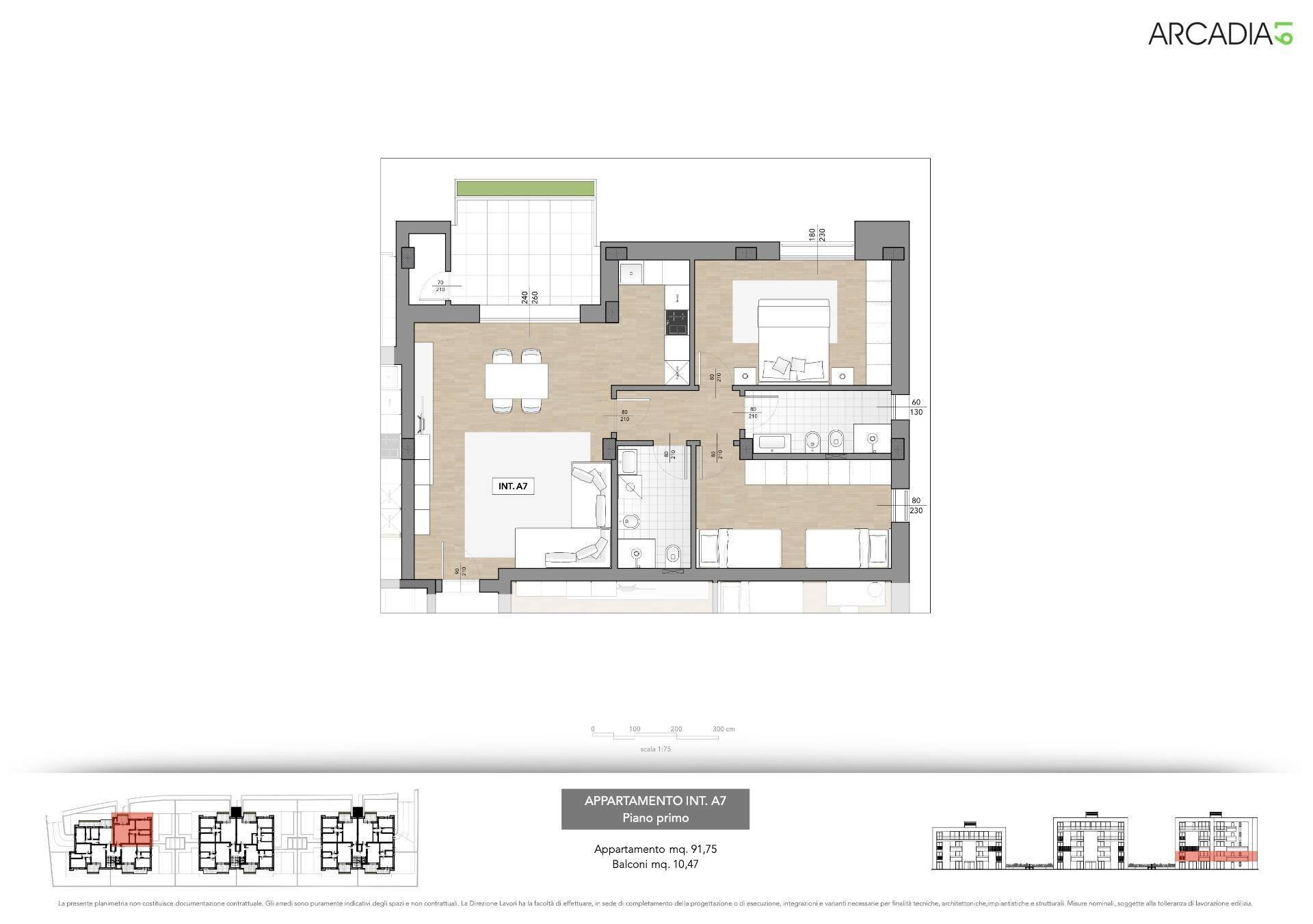
Appartamento al piano primo, delle dimensioni di 92 m² circa, composto da ingresso su ampio soggiorno con angolo cottura, due camere da letto (una matrimoniale ed una doppia), due bagni di cui uno finestrato, disimpegno nel reparto notte e ripostiglio lavanderia nella balconata. L'appartamento è inoltre fornito di una terrazza abitabile di ben 10 mq circa, fruibile nella bella stagione per poterci soggiornare. L'appartamento, in corso di costruzione, sarà terminato per Giugno 2028 con rifiniture a scelta dell'acquirente come e pavimentazioni in parquet o Grace porcellanato, infissi in alluminio certificati, impianto di riscaldamento a pavimento, impianto di climatizzazione caldo e freddo con split in ogni stanza, portoncino blindato d'ingresso, video citofono smart con risposta da smartphone, illuminazione esterna del fabbricato Guzzini, struttura antisismica. Localizzato all'interno del complesso residenziale Marina Living, posto nella servita zona di San Pio X e non distante dalla spiaggia, in un contesto di verde ed eleganza. Con prezzo da computare a parte è possibile acquistare un comodo garage al piano interrato del medesimo fabbricato con prezzi a partire da 28.000 euro. Nessuna commissione a carico dell'acquirente.
Main data
| Reference | 33778 |
| Ad date | 24/11/2025 |
| Contract | Sale |
| Typology | Apartment |
| Surface | 92 m2 |
| Locals | 3 (2 bedrooms, 1 other), 2 bathrooms, kitchen kitchenette |
| Plan | 1 from 4 totals |
| Construction type | Signorile |
| Garage | Single |
Costs
| Price | 385.000 € |
| Price per m2 | 4.185 €/m2 |
Energy efficiency
| Heating | Autonomous |
| Heating System Type | on the floor |
| Heating Power Type | Photovoltaic |
| Energy rating | A4 |
Floor plans
Address and map
Via San Pio X
snc, San Benedetto del Tronto
Ad without map,
try asking the advertiser for the position
try asking the advertiser for the position
Mortgage calculation
Selling price:
Advance
20,00
Mortgage
80,00
Rate: -+
Payment: 1.101 per month
The results are an indicative estimate based on the data entered and do not constitute a financial offer.
Advertiser

Spina & Marchei
Viale De Gasperi 113, San Benedetto del Tronto
Show Phone
Show Mobile
Spina Giovanni
Show Phone
Call
CONTACT

