Rustic Via Trotta 54, San Raffaele Cimena
€ 600.000
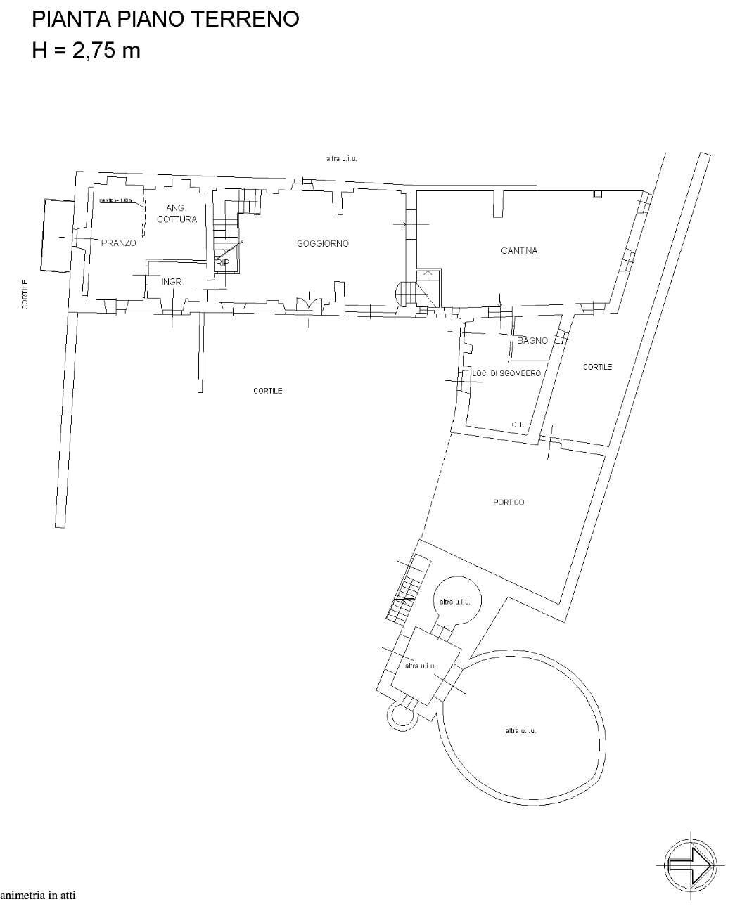
A San Raffaele Cimena, tra le curve morbide della collina torinese, sorge questa casa indipendente che profuma di quiete e di tempo ritrovato. La posizione è privilegiata: ogni finestra incornicia Torino e le Alpi, con Superga che appare come un punto di riferimento sul panorama. La dimora si sviluppa su due piani e accoglie ambienti caldi e autentici, tra volte antiche, camini in mattoni e spazi ampi dove la luce si muove libera. Allesterno, il giardino di oltre 2.500 mq abbraccia la casa con angoli verdi, scorci panoramici, un portico affacciato sulla valle e dettagli tradizionali come un forno a legna e una piccola grotta naturale che raccoglie lacqua del terreno. Accanto alla costruzione principale, un fabbricato indipendente offre ulteriori possibilità: studio, dependance o spazio creativo. Raggiungibile tramite vialetto privato, protetta dal silenzio della collina e da un microclima mite, questa proprietà è il luogo ideale per chi cerca unoasi riservata a pochi minuti dalla città. Una casa che invita a rallentare, respirare e vivere immersi nella natura senza rinunciare alla comodità.
Main data
| Reference | CBI164-2623-58 |
| Ad date | 20/11/2025 |
| Contract | Sale |
| Typology | Rustic |
| Surface | 350 m2 |
| Locals | more than 5 (4 bedrooms, 5 other), 3 bathrooms, kitchen habitable |
| Plan | On several levels |
| Occupied | Free |
| Garage | Single |
| Number of parking spaces | 4 |
| Furniture | Absent |
Costs
| Price | 600.000 € |
| Price per m2 | 1.714 €/m2 |
Energy efficiency
| Status | Good |
| Heating | Autonomous |
| Energy rating | E |
| Energy Performance Index (IPE) | 232 kWh/m2 year |
Floor plans
Address and map
Via Trotta
54, San Raffaele Cimena
Ad without map,
try asking the advertiser for the position
try asking the advertiser for the position
Mortgage calculation
Selling price:
Advance
20,00
Mortgage
80,00
Rate: -+
Payment: 1.716 per month
The results are an indicative estimate based on the data entered and do not constitute a financial offer.
Advertiser
Call
CONTACT


