Villa Strada Capo Murro di Porco, Siracusa
€ 220.000
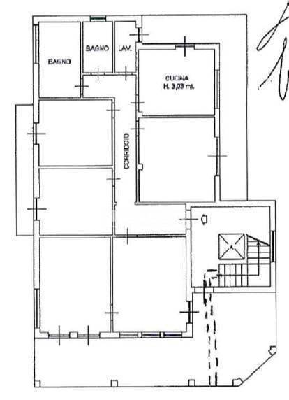
Villa indipendente con vista mare in vendita a Siracusa Piano terra di 150 mq con ampi spazi esterni e terrazza panoramica A pochi passi dal mare e a breve distanza da Siracusa e dal centro storico di Ortigia, proponiamo in vendita il solo piano terra indipendente di una splendida villa bifamiliare situata in Strada Capo Murro di Porco, nella rinomata zona dellIsola. Labitazione si sviluppa interamente al piano terra e dispone di ampie aree esterne che garantiscono privacy, comfort e tranquillità, ideali per vivere momenti di relax immersi nella natura. Allinterno, la villa offre unampia cucina abitabile, perfetta per la vita quotidiana e per chi ama cucinare, un salone doppio luminoso e accogliente, ideale per ospitare amici e familiari, oltre a tre camere da letto, due bagni moderni e una comoda lavanderia. Gli spazi esterni comprendono due ampie verande, perfette per pranzi e cene allaperto, e un terreno di circa 1.500 mq curato nei dettagli, con giardinetti e alberi ornamentali che incorniciano la proprietà. A completare limmobile, una terrazza panoramica di circa 200 mq che offre una meravigliosa vista sul mare e sul paesaggio circostante, ideale per ammirare i tramonti e godere della brezza marina. La posizione è strategica: la zona è abitata tutto lanno, ben servita e consente di raggiungere Siracusa e Ortigia in pochi minuti, mantenendo al tempo stesso la tranquillità tipica delle località costiere più esclusive. Questa villa indipendente con vista mare a Siracusa è la soluzione perfetta per chi desidera una casa spaziosa e autonoma vicino al mare, immersa nel verde ma a pochi passi dalla città. Ideale come residenza principale o casa vacanze di pregio, rappresenta un investimento immobiliare di grande valore nella splendida Sicilia orientale. Contattaci per maggiori informazioni o per prenotare una visita.
Main data
| Reference | TTR101-1820 |
| Ad date | 17/11/2025 |
| Contract | Sale |
| Typology | Villa |
| Surface | 200 m2 |
| Locals | more than 5 (3 bedrooms, 3 other), 2 bathrooms, kitchen habitable |
| Plan | Earth, 1 totals |
| Construction type | Average |
| Occupied | Free |
| Garage | Absent |
| Furniture | Complete |
Costs
| Price | 220.000 € |
| Price per m2 | 1.100 €/m2 |
Energy efficiency
| Status | Excellent |
| Heating | Autonomous |
| Heating System Type | by air |
| Heating Power Type | Electric |
| Energy rating | G |
| Energy Performance Index (IPE) | - |
Floor plans
Address and map
Strada Capo Murro di Porco, Siracusa
Ad without map,
try asking the advertiser for the position
try asking the advertiser for the position
Mortgage calculation
Selling price:
Advance
20,00
Mortgage
80,00
Rate: -+
Payment: 629 per month
The results are an indicative estimate based on the data entered and do not constitute a financial offer.
Advertiser
Think Tank Realtor
Via Antioco 10, Siracusa
Show Phone
Show Mobile
Call
CONTACT

