Independent house Via Ticino, Varallo Pombia
€ 65.000Casa indipendente in vendita
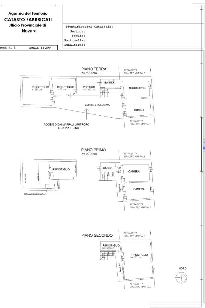
Varallo Pombia, proponiamo una casa semindipendente in vendita, risalente al 1900. Questa proprietà di 150 mq offre ampi spazi interni, ideali per chi cerca una soluzione abitativa versatile. Al piano terra troviamo una sala con una cucina ed bagno. Il piano primo collegato da una scala esterna è distribuito con due camere letto ed un bagno. Al piano sottotetto un ampio locali. Sul fronte cassero e ripostigli. La metratura è riferita a tutta la proprietà. Gli ambienti sono ben distribuiti, garantendo comfort e funzionalità. Uno dei punti di forza di questa casa è il cortile privato, un angolo di tranquillità dove poter trascorrere momenti di relax all'aperto. Inoltre, la presenza di ampi ripostigli offre pratiche soluzioni per l'organizzazione e lo stoccaggio, rendendo la gestione degli spazi ancora più agevole. La casa rappresenta una scelta interessante per chi desidera vivere in un contesto tranquillo, senza rinunciare alla comodità di ampi spazi e alla praticità di un cortile privato. Una soluzione che unisce il fascino delle costruzioni storiche con le esigenze moderne di spazio e funzionalità.
Il nostro ufficio in Varallo Pombia è vicino al comune di Castelletto Sopra Ticino che dista ca 4 km dal Lago Maggiore e da Arona, aderente al comune di Sesto Calende e Dormelletto. A pochi km l'aeroporto di Milano Malpensa e dal casello autostradale.
Il nostro ufficio in Varallo Pombia è vicino al comune di Castelletto Sopra Ticino che dista ca 4 km dal Lago Maggiore e da Arona, aderente al comune di Sesto Calende e Dormelletto. A pochi km l'aeroporto di Milano Malpensa e dal casello autostradale.
Main data
| Reference | 61141296 |
| Ad date | 14/11/2025 |
| Contract | Sale |
| Typology | Independent house |
| Surface | 150 m2 |
| Locals | 3 (3 other), 2 bathrooms |
| Plan | 3 from 3 totals |
| Number of parking spaces | 1 |
Costs
| Price | 65.000 € |
| Price per m2 | 433 €/m2 |
Energy efficiency
| Year built | 1900 |
| Heating | Autonomous |
| Heating Power Type | Methane |
| Energy rating | G |
| Energy performance index (EP GL, REN ) | 22 kWh/m3 year |
| Energy performance index (EP GL, NREN ) | 450 kWh/m3 year |
Floor plans
Video
Address and map
Via Ticino, Varallo Pombia
Mortgage calculation
Selling price:
Advance
20,00
Mortgage
80,00
Rate: -+
Payment: 186 per month
The results are an indicative estimate based on the data entered and do not constitute a financial offer.
Call
CONTACT

