Villa Via Forte Monte Guano, Genova (neighborhood Borzoli)
€ 495.000Bifamiliare in vendita
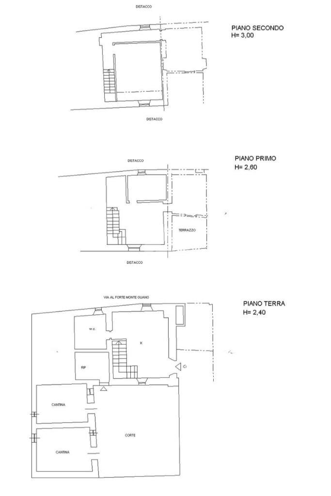
Nel cuore di Borzoli, a Genova, si propone in vendita una bifamiliare indipendente di 250 mq, distribuita su tre livelli.
Questa proprietà storica, risalente al 1600, è stata mantenuta in ottimo stato, offrendo un connubio perfetto tra fascino antico e comfort moderno. L'immobile si compone di due unità abitative distinte, entrambe disposte su più livelli.
La prima unità è così distribuita:
Piano terra: ampia cucina abitabile ed un bagno finestrato con box doccia.
Piano primo: soggiorno, una prima camera attualmente utilizzata come studio ed una camera matrimoniale, la quale gode di un bellissimo terrazzino che affaccia sulla corte e sul giardino.
Piano secondo: Camera padronale ed una cameretta singola.
Nella seconda unità al piano terra troviamo il soggiorno, il bagno finestrato con box doccia ed una zona lavanderia.
Piano Primo: cucina con annessa sala da pranzo e camera matrimoniale.
Il secondo piano offre una prima stanza d'ingresso ed una seconda sul lato ovest, attulamente tutto il sottotetto si presenta al grezzo e con travi a vista.
Alla prima unità sono annesse inoltre, due ampie cantine con accesso dal giardino.
All'esterno, uno splendido giardino con piscina ed un'ampia porzione di terreno pianeggiante rappresentano un'oasi di relax, perfetta per trascorrere momenti all'aria aperta. L'accesso carrabile facilita l'ingresso e l'uscita, rendendo la proprietà ancora più comoda.
Essendo dotata di aria condizionata, questa casa offre un ambiente confortevole in ogni stagione. Un'opportunità unica per chi desidera vivere in una residenza storica con tutti i comfort moderni.
Questa proprietà storica, risalente al 1600, è stata mantenuta in ottimo stato, offrendo un connubio perfetto tra fascino antico e comfort moderno. L'immobile si compone di due unità abitative distinte, entrambe disposte su più livelli.
La prima unità è così distribuita:
Piano terra: ampia cucina abitabile ed un bagno finestrato con box doccia.
Piano primo: soggiorno, una prima camera attualmente utilizzata come studio ed una camera matrimoniale, la quale gode di un bellissimo terrazzino che affaccia sulla corte e sul giardino.
Piano secondo: Camera padronale ed una cameretta singola.
Nella seconda unità al piano terra troviamo il soggiorno, il bagno finestrato con box doccia ed una zona lavanderia.
Piano Primo: cucina con annessa sala da pranzo e camera matrimoniale.
Il secondo piano offre una prima stanza d'ingresso ed una seconda sul lato ovest, attulamente tutto il sottotetto si presenta al grezzo e con travi a vista.
Alla prima unità sono annesse inoltre, due ampie cantine con accesso dal giardino.
All'esterno, uno splendido giardino con piscina ed un'ampia porzione di terreno pianeggiante rappresentano un'oasi di relax, perfetta per trascorrere momenti all'aria aperta. L'accesso carrabile facilita l'ingresso e l'uscita, rendendo la proprietà ancora più comoda.
Essendo dotata di aria condizionata, questa casa offre un ambiente confortevole in ogni stagione. Un'opportunità unica per chi desidera vivere in una residenza storica con tutti i comfort moderni.
Main data
| Reference | 61139724 |
| Ad date | 13/11/2025 |
| Contract | Sale |
| Typology | Villa |
| Surface | 250 m2 |
| Locals | more than 5 (12 other), 2 bathrooms |
| Plan | 3 from 3 totals |
Costs
| Price | 495.000 € |
| Price per m2 | 1.980 €/m2 |
Energy efficiency
| Year built | 1600 |
| Heating | Autonomous |
| Heating Power Type | Methane |
| Energy rating | F |
| Energy Performance Index (IPE) | - |
Floor plans
Address and map
Via Forte Monte Guano, Genova - neighborhood Borzoli
Mortgage calculation
Selling price:
Advance
20,00
Mortgage
80,00
Rate: -+
Payment: 1.416 per month
The results are an indicative estimate based on the data entered and do not constitute a financial offer.
Advertiser
Call
CONTACT

