Portion of a house Via Dei Fumanti, Malalbergo
€ 350.000Porzione di bifamiliare in vendita
MALALBERGO NUOVA COSTRUZIONE: PORZIONE DI BIFAMILIARE IN VENDITA AD ALTEDO. Il 'BORGO DEI FUMANTI' nasce sull'ultimo lotto edificabile di Thedus, verde e riservata zona residenziale di recente realizzazione, compresa tra la via Nazionale SS64 e la circonvallazione che porta all'autostrada (A13) con ingresso/uscita dedicata. Gode di una posizione strategica con facile accesso ai principali servizi come bar, tabacchi, banche, poste, uffici comunali, supermercati e negozi di alimentari, farmacie e scuole. Sono inoltre presenti numerose fermate dell'autobus di linea 356 (Tper) che ti collegherà a Bologna e Ferrara in circa 30 minuti, senza bisogno di utilizzare il tuo mezzo personale! E' ben provvisto anche di servizi secondari, ma comunque fondamentali per lo svago ed il tempo libero come ristoranti, parchi, centro sportivo e biblioteche. Situata in una zona strategica, combina design contemporaneo e tecnologie di ultima generazione, garantendo comfort ed efficienza energetica.
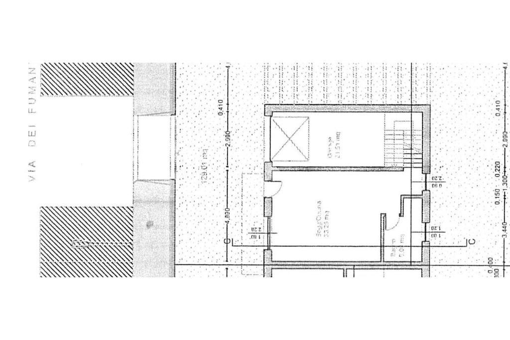
L'immobile disposto su due livelli, al piano terra ingresso su soggiorno con angolo cottura, di dimensioni generose e bagno finestrato. Con una comoda scala in muratura si accede al piano seconodo, una camera matrimoniale, due camere doppie, un bagno finestrato ed un terrazzo.
L'impianto di riscaldamento sarà realizzato con sistema radiante a pavimento a bassa temperatura, costituito dauna serpentina realizzata con tubazione continua in polietilene reticolato posati su un pannello isolante. Il generatore di calore sarà una pompa di calore, integrato con modulo idronico ad incasso da esterni, con accumulo di acqua termica da 220 litri. I serramenti esterni saranno in PVC bianco, ad alta a ribalta, dotati di doppio vetro, tapparelle in PVC motorizzate, impianto fotovoltaico 3,00KW.
Completano la proprietà, un'autorimessa collegata internamente all'abitazione e giardino privato di circa 120 mq.
Per ricevere maggiori informazioni o fissare un appuntamento contattare il numero 051.6601.042 oppure scrivere a bohb4
L'immobile disposto su due livelli, al piano terra ingresso su soggiorno con angolo cottura, di dimensioni generose e bagno finestrato. Con una comoda scala in muratura si accede al piano seconodo, una camera matrimoniale, due camere doppie, un bagno finestrato ed un terrazzo.
L'impianto di riscaldamento sarà realizzato con sistema radiante a pavimento a bassa temperatura, costituito dauna serpentina realizzata con tubazione continua in polietilene reticolato posati su un pannello isolante. Il generatore di calore sarà una pompa di calore, integrato con modulo idronico ad incasso da esterni, con accumulo di acqua termica da 220 litri. I serramenti esterni saranno in PVC bianco, ad alta a ribalta, dotati di doppio vetro, tapparelle in PVC motorizzate, impianto fotovoltaico 3,00KW.
Completano la proprietà, un'autorimessa collegata internamente all'abitazione e giardino privato di circa 120 mq.
Per ricevere maggiori informazioni o fissare un appuntamento contattare il numero 051.6601.042 oppure scrivere a bohb4
Main data
| Reference | 61140928 |
| Ad date | 13/11/2025 |
| Contract | Sale |
| Typology | Portion of a house |
| Surface | 120 m2 |
| Locals | 4 (3 bedrooms, 1 other), 2 bathrooms |
| Plan | 2 totals |
| Number of parking spaces | 1 |
Costs
| Price | 350.000 € |
| Price per m2 | 2.917 €/m2 |
Energy efficiency
| Year built | 2025 |
| Heating | Autonomous |
| Energy rating | A4 |
Floor plans
Video
Address and map
Via Dei Fumanti, Malalbergo
Mortgage calculation
Selling price:
Advance
20,00
Mortgage
80,00
Rate: -+
Payment: 1.001 per month
The results are an indicative estimate based on the data entered and do not constitute a financial offer.
Advertiser
Call
CONTACT

