Shop VIA NASSIRYA 3, Vignate
€ 98.000
Non perdere questa opportunità unica di investimento! Proponiamo in vendita un negozio a reddito situato in posizione strategica nel pieno centro di Vignate, caratterizzato da un eccellente passaggio pedonale e carrabile. L'immobile è attualmente affittato a una solida attività di lavanderia automatica, garantendo un flusso di cassa costante, con canone annuo di 7.800,00 e reddito pari all' 8%. Edificio del 2013, moderno e ben mantenuto, lo spazio commerciale ha ottima visibilità, risulta dotato di ampia vetrina che assicura massima esposizione all'attività. L'immobile è fornito di aria condizionata. 98.000,00. Tutti i documenti ufficiali risultano visionabili su richiesta. Per ulteriori informazioni contattare il seguente recapito telefonico 02/9552248 oppure scrivete a [email protected] MELPUM CASA nasce dall' entusiasmo e professionalità di CRISTIAN FAINI, GEOMETRA ed AGENTE IMMOBILIARE DA OLTRE 25 ANNI a Melzo e nell'hinterland Milanese, con particolare attenzione al mercato immobiliare della Martesana. MELPUM CASA vi aspetta in uno spazio accogliente e professionale a MELZO,IN VIA CASANOVA 9, MELPUM CASA vi offrirà consulenza qualificata ed affidabilità nel campo dell'edilizia residenziale, commerciale ed industriale. Se per comprare CASA devi anche VENDERE il TUO immobile non esitare a contattarci per una valutazione completamente gratuita e senza vincoli, chiamaci subito per una visita senza impegno.
Main data
| Reference | 11913 |
| Ad date | 11/11/2025 |
| Contract | Sale |
| Typology | Shop |
| Surface | 44 m2 |
| Locals | kitchen not present |
| Plan | Earth, 3 totals |
| Occupied | Owner Occupied |
| Garage | Absent |
Costs
| Price | 98.000 € |
| Price per m2 | 2.227 €/m2 |
Energy efficiency
| Status | Good |
| Heating | Semi-autonomous |
| Heating Power Type | Other |
| Energy rating | Property exempt from energy certification |
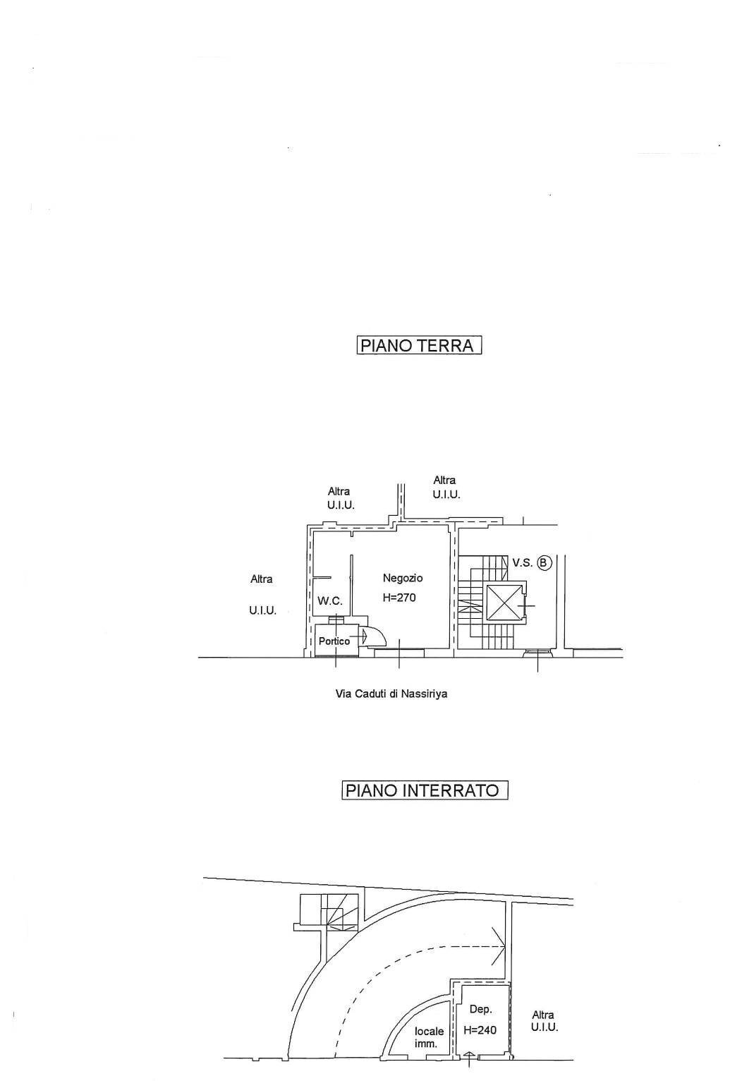
Floor plans
Address and map
VIA NASSIRYA
3, Vignate
Ad without map,
try asking the advertiser for the position
try asking the advertiser for the position
Mortgage calculation
Selling price:
Advance
20,00
Mortgage
80,00
Rate: -+
Payment: 280 per month
The results are an indicative estimate based on the data entered and do not constitute a financial offer.
Advertiser

MELPUMCASA
Casanova,9, Melzo
Show Phone
Call
CONTACT

