Two-room apartment Tremestieri Etneo
€ 145.000Appartamento a Tremestieri Etneo
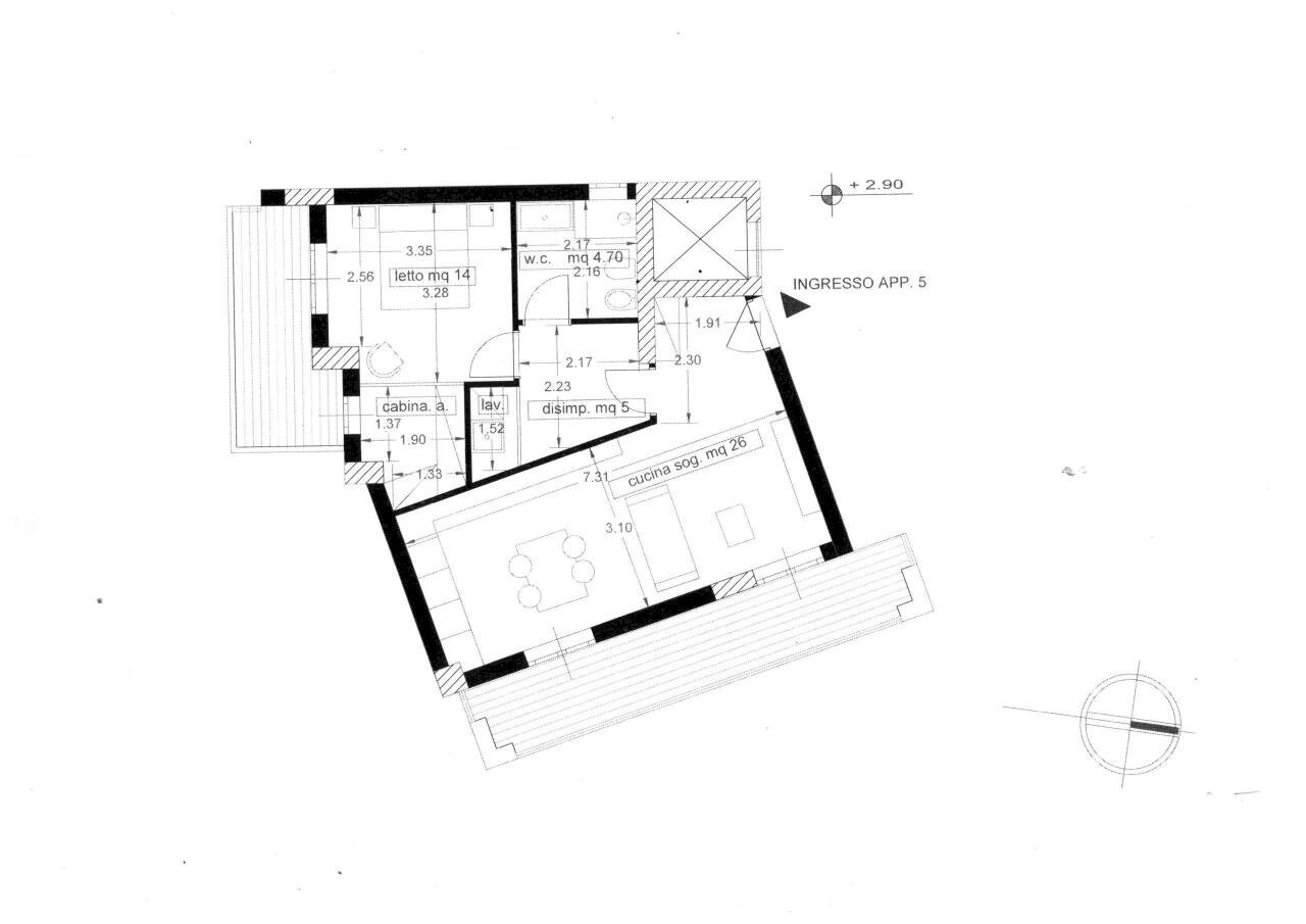
Tremestieri Etneo – Nuova costruzione in residence esclusivo In una zona servita e tranquilla, proponiamo in vendita appartamenti di nuova costruzione inseriti in un elegante residence dal design moderno e dalle prestazioni energetiche di ultima generazione. Ogni unità abitativa è progettata con grande attenzione al comfort e all’efficienza, con rifiniture di altissimo livello e capitolato di qualità superiore, tra cui impianto di climatizzazione caldo/freddo centralizzato e canalizzato, videocitofono e infissi a taglio termico,sanitari "Flaminia", impianto fotovoltaico condominiale, il tutto fa rientrare la classificazione energetica in A+. La palazzina sarà dotate di ascensore di tipo Schindler di ultima generazione. L'appartamento di 60 mq, composto da: Ingresso su cucina-soggiorno di 26 mq circa he affaccia su un ampio balcone di 20 mq circa, disimpegno, camera da letto con cabina armadio, bagno e lavanderia. da Possibilità di acquistare il garage. Consegna prevista fine 2026. Euro 145.000
Main data
| Reference | 850/C |
| Ad date | 07/11/2025 |
| Contract | Sale |
| Typology | Apartment |
| Surface | 60 m2 |
| Locals | 2 (1 bedroom, 1 other), 1 bathroom |
| Plan | 1 totals |
| Number of balconies | 1 |
Costs
| Price | 145.000 € |
| Price per m2 | 2.417 €/m2 |
Energy efficiency
| Year built | 2025 |
| Energy rating | A+ |
| Energy Performance Index (IPE) | - |
Address and map
Tremestieri Etneo
Ad without map,
try asking the advertiser for the position
try asking the advertiser for the position
Mortgage calculation
Selling price:
Advance
20,00
Mortgage
80,00
Rate: -+
Payment: 415 per month
The results are an indicative estimate based on the data entered and do not constitute a financial offer.
Advertiser
Call
CONTACT


