Four-room apartment Via Acquette, Treviso
€ 248.000
Appartamento 2 camere con giardino a Treviso, zona Santa Maria del Rovere.
Proponiamo in vendita un accogliente appartamento, situato al piano terra di una piccola palazzina in zona tranquilla e ben servita, a pochi passi dalla città, in zona Acquette.
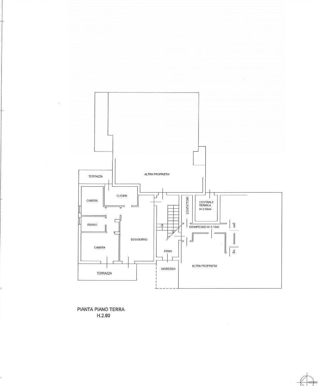
Dispone di un ingresso nell'ampio soggiorno con terrazza abitabile e con accesso diretto al giardino ad uso esclusivo, la cucina è separata e gode anch'essa di un terrazzino funzionale come piccolo disbrigo e/o per coltivare le piante aromatiche. Proseguendo, la zona notte è contraddistinta da una camera matrimoniale con porta finestra comunicante con la terrazza, una camera singola, un bagno finestrato con vasca oltre ad un comodo armadio a muro nel disimpegno.
A completamento della proprietà troviamo un ampio garage al piano terra con angolo lavanderia oltre a posti auto scoperti all'interno della proprietà condominiale.
Le finiture, se pur dell'epoca, sono in ottimo stato: i pavimenti sono in legno sia in zona giorno che nella zona notte, portoncino blindato, videocitofono, infissi in vetrocamera. Il riscaldamento è centralizzato con il contabilizzatore di calorie.
Una bella sensazione di pace e armonia avvolge questa proprietà, contraddistinta da ampio scoperto condominiale sempre ben manutentato, ad un passo dalla città e da tutti i principali servizi.
Per maggiori informazioni o per fissare un appuntamento per visionare questo appartamento in vendita a Treviso, potete contattare impREsa, sede al Quartiere latino telefonando allo 0422 1784050 citando il riferimento I/PD083
Proponiamo in vendita un accogliente appartamento, situato al piano terra di una piccola palazzina in zona tranquilla e ben servita, a pochi passi dalla città, in zona Acquette.
Dispone di un ingresso nell'ampio soggiorno con terrazza abitabile e con accesso diretto al giardino ad uso esclusivo, la cucina è separata e gode anch'essa di un terrazzino funzionale come piccolo disbrigo e/o per coltivare le piante aromatiche. Proseguendo, la zona notte è contraddistinta da una camera matrimoniale con porta finestra comunicante con la terrazza, una camera singola, un bagno finestrato con vasca oltre ad un comodo armadio a muro nel disimpegno.
A completamento della proprietà troviamo un ampio garage al piano terra con angolo lavanderia oltre a posti auto scoperti all'interno della proprietà condominiale.
Le finiture, se pur dell'epoca, sono in ottimo stato: i pavimenti sono in legno sia in zona giorno che nella zona notte, portoncino blindato, videocitofono, infissi in vetrocamera. Il riscaldamento è centralizzato con il contabilizzatore di calorie.
Una bella sensazione di pace e armonia avvolge questa proprietà, contraddistinta da ampio scoperto condominiale sempre ben manutentato, ad un passo dalla città e da tutti i principali servizi.
Per maggiori informazioni o per fissare un appuntamento per visionare questo appartamento in vendita a Treviso, potete contattare impREsa, sede al Quartiere latino telefonando allo 0422 1784050 citando il riferimento I/PD083
Main data
| Reference | I/PD083 |
| Ad date | 08/11/2025 |
| Contract | Sale |
| Typology | Apartment |
| Surface | 110 m2 |
| Locals | 4 (2 bedrooms, 2 other), 1 bathroom, kitchen habitable |
| Plan | Mezzanine, 2 totals |
| Construction type | Average |
| Occupied | Free |
| Garage | Single |
| Number of parking spaces | 2 |
| Furniture | Complete |
Costs
| Price | 248.000 € |
| Price per m2 | 2.255 €/m2 |
Energy efficiency
| Status | Good |
| Heating | Semi-autonomous |
| Energy rating | E |
| Energy Performance Index (IPE) | 160 kWh/m2 year |
Floor plans
Virtual tour
Address and map
Via Acquette, Treviso
Ad without map,
try asking the advertiser for the position
try asking the advertiser for the position
Mortgage calculation
Selling price:
Advance
20,00
Mortgage
80,00
Rate: -+
Payment: 709 per month
The results are an indicative estimate based on the data entered and do not constitute a financial offer.
Advertiser

impREsa Treviso Quartiere Latino
Piazza del Quartiere Latino, 14, Treviso
Show Phone
De Pellegrin Patrizia
Show Phone
Call
CONTACT

