Shed via dei confini, Prato
Private negotiation
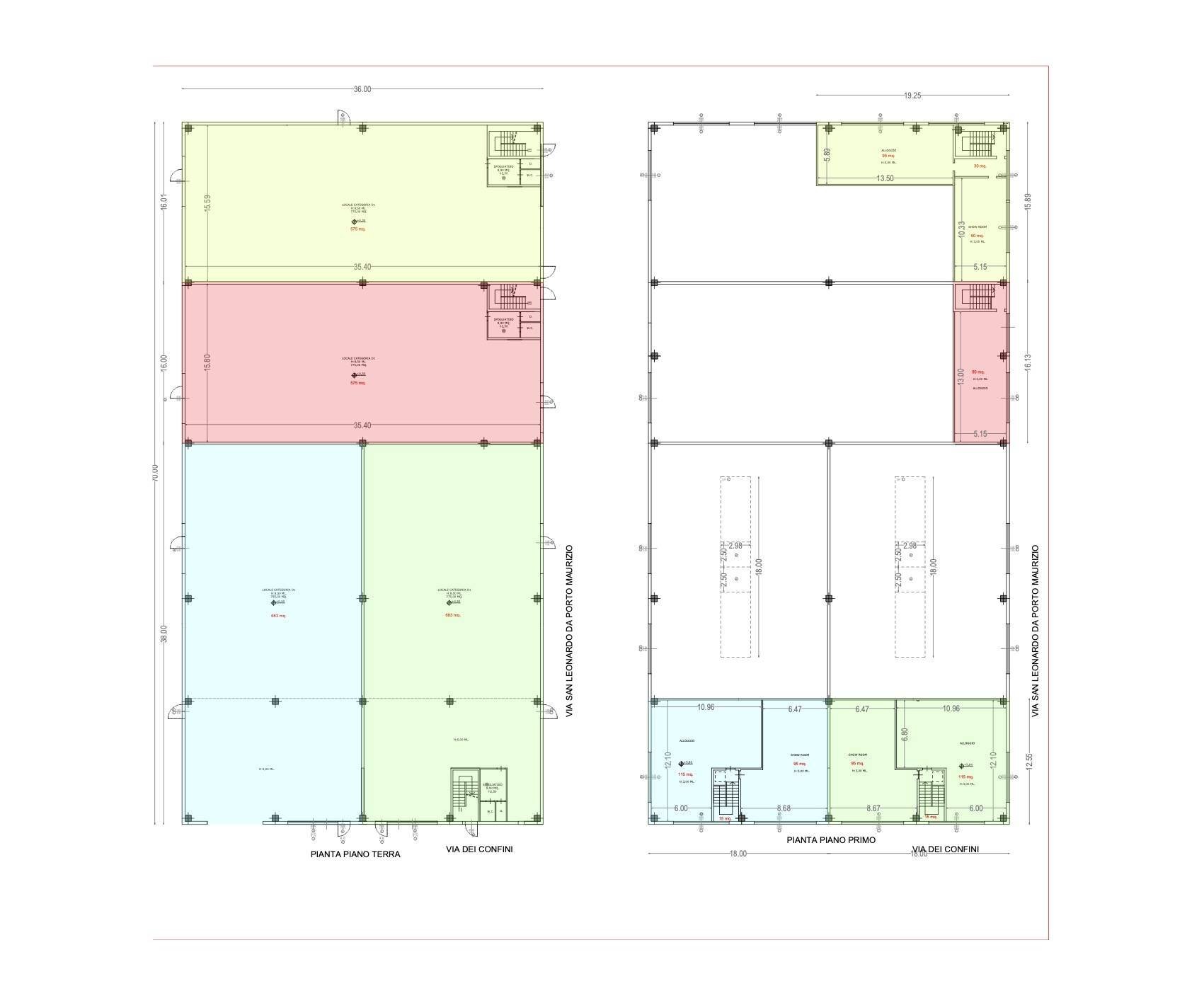
In contesto produttivo di nuova realizzazione, proponiamo capannone indipendente su due livelli, caratterizzato da ampie metrature e finiture moderne.
Limmobile, attualmente in fase di costruzione, sarà pronto per dicembre 2026 e offre al piano terra una superficie di circa 1260 mq, dotata di servizi igienici e spogliatoi, ideale per attività artigianali, produttive o di deposito.
Al primo piano troviamo invece 340 mq ad uso ufficio, perfetti per creare una zona direzionale o amministrativa funzionale e ben collegata allarea operativa.
Lintervento prevede diverse soluzioni disponibili, personalizzabili in base alle esigenze dellattività.
Ottima accessibilità, contesto di nuova edificazione e impianti di ultima generazione completano la proposta.
Consegna prevista: Dicembre 2026
NOTA BENE:
L'intervento prevede la realizzazione di due unità come quella pubblicizzata, ma dal momento che l'immobile è in fase di costruzioni sono possibili varie personalizzazioni come l'acquisto di una, tre o quattro unità collegabili fra loro.
Il prezzo richiesto è 1.650 mq.
RITMO MAISON REAL ESTATE
Via Guglielmo Marconi, 13r Firenze
Telefono/Whatsapp: (+39) 3519573199
Email: [email protected]
Per garantire la privacy dei proprietari, la mappa e l'indirizzo possono non rispecchiare esattamente l'ubicazione precisa dell'immobile. Le immagini hanno il solo scopo illustrativo, non hanno alcun carattere contrattuale. Ape in fase di definizione. La presente scheda non costituisce forma di contratto, le informazioni qui contenute sono da ritenersi del tutto indicative e non potranno essere utilizzate come parte integrante in un eventuale contratto di vendita o locazione della proprietà. La presente non vincola in alcun modo la società.
Limmobile, attualmente in fase di costruzione, sarà pronto per dicembre 2026 e offre al piano terra una superficie di circa 1260 mq, dotata di servizi igienici e spogliatoi, ideale per attività artigianali, produttive o di deposito.
Al primo piano troviamo invece 340 mq ad uso ufficio, perfetti per creare una zona direzionale o amministrativa funzionale e ben collegata allarea operativa.
Lintervento prevede diverse soluzioni disponibili, personalizzabili in base alle esigenze dellattività.
Ottima accessibilità, contesto di nuova edificazione e impianti di ultima generazione completano la proposta.
Consegna prevista: Dicembre 2026
NOTA BENE:
L'intervento prevede la realizzazione di due unità come quella pubblicizzata, ma dal momento che l'immobile è in fase di costruzioni sono possibili varie personalizzazioni come l'acquisto di una, tre o quattro unità collegabili fra loro.
Il prezzo richiesto è 1.650 mq.
RITMO MAISON REAL ESTATE
Via Guglielmo Marconi, 13r Firenze
Telefono/Whatsapp: (+39) 3519573199
Email: [email protected]
Per garantire la privacy dei proprietari, la mappa e l'indirizzo possono non rispecchiare esattamente l'ubicazione precisa dell'immobile. Le immagini hanno il solo scopo illustrativo, non hanno alcun carattere contrattuale. Ape in fase di definizione. La presente scheda non costituisce forma di contratto, le informazioni qui contenute sono da ritenersi del tutto indicative e non potranno essere utilizzate come parte integrante in un eventuale contratto di vendita o locazione della proprietà. La presente non vincola in alcun modo la società.
Main data
| Reference | 004- Nextlab |
| Ad date | 08/11/2025 |
| Contract | Sale |
| Typology | Shed |
| Surface | 1600 m2 |
| Occupied | Free |
Costs
| Price | Private negotiation |
Energy efficiency
| Heating Power Type | Other |
| Energy rating | A1 |
Floor plans
Address and map
via dei confini, Prato
Ad without map,
try asking the advertiser for the position
try asking the advertiser for the position
Advertiser

Ritmo Maison
Via G. Marconi, 13Rosso, Firenze
Show Mobile
Call
CONTACT

