Office Via leonilde Iotti, Forlì
€ 175.000Ufficio in vendita
RONCO – VIA LEONILDE IOTTI 6
UFFICIO ATTUALMENTE LOCATO CON OTTIMA REDDITIVITA' ANNUALE!
Tecnocasa propone in vendita una splendida soluzione ideale per professionisti e imprese che cercano un ufficio moderno, funzionale e con ampi spazi nella zona di Ronco, a pochi minuti dal centro di Forlì.
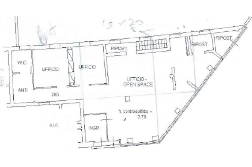
L’immobile, inserito in uno stabile a destinazione mista residenziale e terziaria, si sviluppa su due livelli per una superficie complessiva di 143 mq.
PIANO TERRA:
Spazio ampio, luminoso e ben distribuito, ideale come ufficio, studio professionale o sede operativa. Le ampie vetrate garantiscono visibilità e luce naturale durante tutto il giorno, creando un ambiente accogliente e rappresentativo per clienti e collaboratori.
PIANO INTERRATO:
Collegato internamente, offre un locale ideale come autorimessa, archivio o magazzino. La comodità di accesso e la presenza di un vano tecnico consentono un utilizzo estremamente versatile in base alle esigenze lavorative.
All’esterno, la proprietà dispone di 8 posti auto scoperti esclusivi, che garantiscono un grande vantaggio per clienti e dipendenti.
La posizione, in una zona tranquilla e ben servita, rende l’immobile perfetto per studi professionali, uffici di rappresentanza o attività di servizi.
Punti di forza:
Ingresso indipendente e accesso comodo dal piano strada
Impiantistica autonoma e a norma
Ottima visibilità e facilità di parcheggio
Ambienti personalizzabili in base all’attività
Un’ottima opportunità per chi cerca uno spazio pronto all’uso, con grande comodità di accesso e dotazioni rare nel mercato di oggi.
Ideale anche come forma di investimento!
Per informazioni e visite contattateci al numero 0543 481334 oppure al 338 933664 – Rif. Franco Landini
UFFICIO ATTUALMENTE LOCATO CON OTTIMA REDDITIVITA' ANNUALE!
Tecnocasa propone in vendita una splendida soluzione ideale per professionisti e imprese che cercano un ufficio moderno, funzionale e con ampi spazi nella zona di Ronco, a pochi minuti dal centro di Forlì.
L’immobile, inserito in uno stabile a destinazione mista residenziale e terziaria, si sviluppa su due livelli per una superficie complessiva di 143 mq.
PIANO TERRA:
Spazio ampio, luminoso e ben distribuito, ideale come ufficio, studio professionale o sede operativa. Le ampie vetrate garantiscono visibilità e luce naturale durante tutto il giorno, creando un ambiente accogliente e rappresentativo per clienti e collaboratori.
PIANO INTERRATO:
Collegato internamente, offre un locale ideale come autorimessa, archivio o magazzino. La comodità di accesso e la presenza di un vano tecnico consentono un utilizzo estremamente versatile in base alle esigenze lavorative.
All’esterno, la proprietà dispone di 8 posti auto scoperti esclusivi, che garantiscono un grande vantaggio per clienti e dipendenti.
La posizione, in una zona tranquilla e ben servita, rende l’immobile perfetto per studi professionali, uffici di rappresentanza o attività di servizi.
Punti di forza:
Ingresso indipendente e accesso comodo dal piano strada
Impiantistica autonoma e a norma
Ottima visibilità e facilità di parcheggio
Ambienti personalizzabili in base all’attività
Un’ottima opportunità per chi cerca uno spazio pronto all’uso, con grande comodità di accesso e dotazioni rare nel mercato di oggi.
Ideale anche come forma di investimento!
Per informazioni e visite contattateci al numero 0543 481334 oppure al 338 933664 – Rif. Franco Landini
Main data
| Reference | 61137821 |
| Ad date | 06/11/2025 |
| Contract | Sale |
| Typology | Office |
| Surface | 143 m2 |
| Locals | 1 bathroom |
| Number of parking spaces | 8 |
Costs
| Price | 175.000 € |
| Price per m2 | 1.224 €/m2 |
Energy efficiency
| Energy rating | E |
| Energy Performance Index (IPE) | - |
Floor plans
Address and map
Via leonilde Iotti, Forlì
Mortgage calculation
Selling price:
Advance
20,00
Mortgage
80,00
Rate: -+
Payment: 500 per month
The results are an indicative estimate based on the data entered and do not constitute a financial offer.
Advertiser
Call
CONTACT

