Shed Via De Giudei, Argelato
€ 790.000Capannone a Funo di Argelato, Bologna (BO)
Funo di Argelato - Ampio capannone in vendita. Già libero e pronto per essere acquistato e utilizzato da un nuovo proprietario.
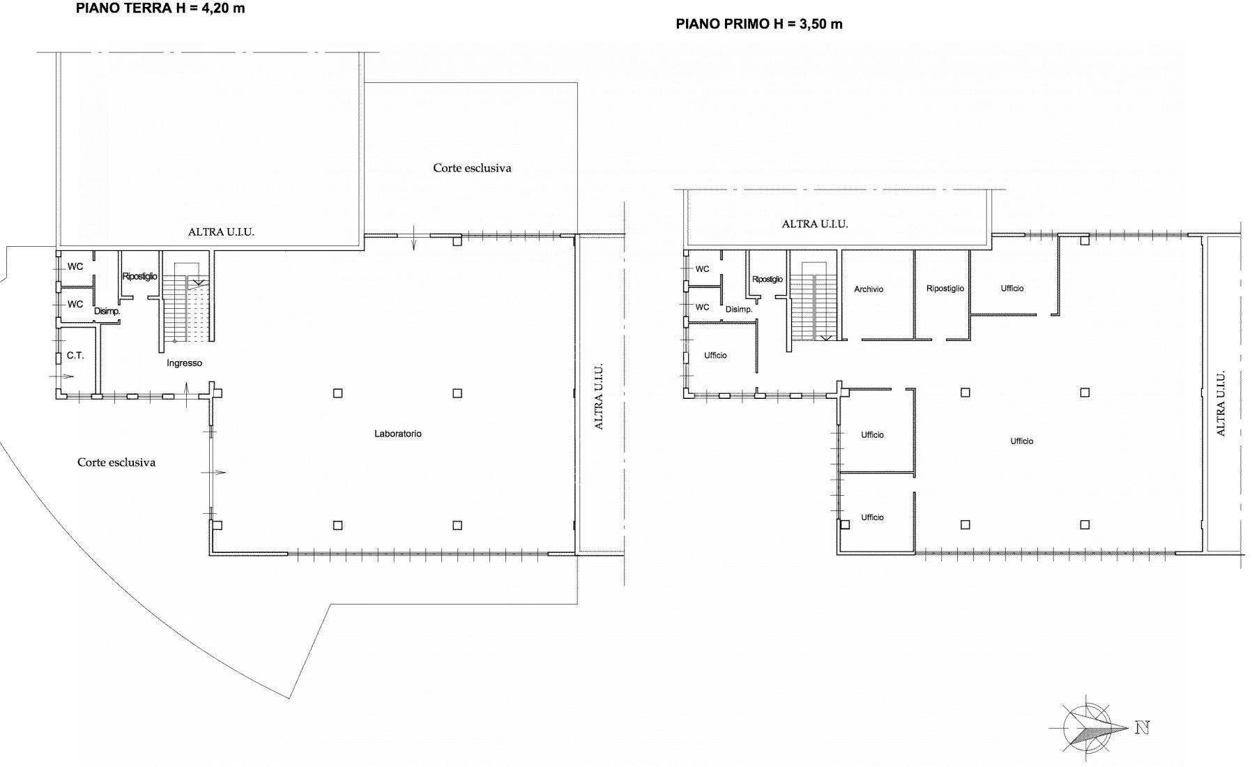
La metratura complessiva è di 1452 mq, distribuiti su due piani. Laboratorio di mq 533 al piano terra con altezza 4,20 mt. e mq 533 di uffici al primo piano con altezza 3,5 mt..
Inoltre, è dotato di 386 metri quadrati di spazi scoperti, ideali per il parcheggio o per eventuali attività all'aperto.
Lo stato di conservazione è buono, grazie alla manutenzione costante e accurata che è stata effettuata nel corso degli anni. Il capannone dispone di due ingressi, che permettono un facile accesso sia per i veicoli che per il personale.
La zona dedicata agli uffici, di 533 mq, è dotata di tutti i comfort necessari per il lavoro, come impianto di riscaldamento e aria condizionata.
Gli uffici possono essere utilizzati per svolgere attività amministrative o come spazio per riunioni e incontri. L'ampio capannone, grazie alle sue caratteristiche e alla sua posizione strategica, si adatta perfettamente ad attività industriali, artigianali o commerciali.
Inoltre, la sua metratura consente di suddividerlo in diverse aree, offrendo così la possibilità di svolgere più attività contemporaneamente. In sintesi, si tratta di una solida e funzionale struttura, ideale per chi cerca un ampio spazio per la propria attività, in una zona ben collegata e facilmente accessibile.
L'immobile può essere venduto completo dell'arredo, comprese le interpareti divisorie attrezzate (come in foto), oppure senza.
L'immobile fa parte di un più ampio fabbricato in condominio, e le spese condominiali per la gestione di servizi comuni ammontano ad € 1.100 annuali.
"IPI è un gruppo specializzato nella consulenza e nei servizi immobiliari a investitori e operatori istituzionali, aziende e privati. Attraverso le diverse linee di business delle società controllate, IPI copre a 360 gradi i servizi al real-estate: gestione, valorizzazione, promozione e sviluppo immobiliare, consulenza, intermediazione, valutazioni, due diligence e analisi di mercato. IPI è anche una investment company con un rilevante patrimonio immobiliare proprio.
IPI Agency è presente sul territorio nazionale, con filiali a Torino, Milano, Genova, Bologna, Padova, Firenze, Roma, Napoli e Bari."
La metratura complessiva è di 1452 mq, distribuiti su due piani. Laboratorio di mq 533 al piano terra con altezza 4,20 mt. e mq 533 di uffici al primo piano con altezza 3,5 mt..
Inoltre, è dotato di 386 metri quadrati di spazi scoperti, ideali per il parcheggio o per eventuali attività all'aperto.
Lo stato di conservazione è buono, grazie alla manutenzione costante e accurata che è stata effettuata nel corso degli anni. Il capannone dispone di due ingressi, che permettono un facile accesso sia per i veicoli che per il personale.
La zona dedicata agli uffici, di 533 mq, è dotata di tutti i comfort necessari per il lavoro, come impianto di riscaldamento e aria condizionata.
Gli uffici possono essere utilizzati per svolgere attività amministrative o come spazio per riunioni e incontri. L'ampio capannone, grazie alle sue caratteristiche e alla sua posizione strategica, si adatta perfettamente ad attività industriali, artigianali o commerciali.
Inoltre, la sua metratura consente di suddividerlo in diverse aree, offrendo così la possibilità di svolgere più attività contemporaneamente. In sintesi, si tratta di una solida e funzionale struttura, ideale per chi cerca un ampio spazio per la propria attività, in una zona ben collegata e facilmente accessibile.
L'immobile può essere venduto completo dell'arredo, comprese le interpareti divisorie attrezzate (come in foto), oppure senza.
L'immobile fa parte di un più ampio fabbricato in condominio, e le spese condominiali per la gestione di servizi comuni ammontano ad € 1.100 annuali.
"IPI è un gruppo specializzato nella consulenza e nei servizi immobiliari a investitori e operatori istituzionali, aziende e privati. Attraverso le diverse linee di business delle società controllate, IPI copre a 360 gradi i servizi al real-estate: gestione, valorizzazione, promozione e sviluppo immobiliare, consulenza, intermediazione, valutazioni, due diligence e analisi di mercato. IPI è anche una investment company con un rilevante patrimonio immobiliare proprio.
IPI Agency è presente sul territorio nazionale, con filiali a Torino, Milano, Genova, Bologna, Padova, Firenze, Roma, Napoli e Bari."
Main data
| Reference | BO-00333 |
| Ad date | 06/11/2025 |
| Contract | Sale |
| Typology | Shed |
| Surface | 1452 m2 |
Costs
| Price | 790.000 € |
| Price per m2 | 544 €/m2 |
Energy efficiency
| Energy rating | Property exempt from energy certification |
Floor plans
Address and map
Via De Giudei, Argelato
Mortgage calculation
Selling price:
Advance
20,00
Mortgage
80,00
Rate: -+
Payment: 2.259 per month
The results are an indicative estimate based on the data entered and do not constitute a financial offer.
Advertiser
Call
CONTACT


